查看完整案例


收藏

下载
每个人对待生活都有自己的方式,设计师对空间的设计似乎更像是对生活的探究,主人的爱好、情绪、作息、社交、习惯……都将和这片空间亲密无隙地贴合在一起,某种程度上,空间便是屋主的“真我表达。
Everyone has his own way of dealing with life. The design of space seems to be more like the exploration of life. The host’s hobbies, emotions, work and rest, social activities, habits. All of them will be closely attached to this space. To some extent, space is the expression of the homeowner’s "true self".
闲时煮一咖啡,捧读一本书,知已畅谈,快节奏里最好的礼遇。
Make a cup of coffee in your spare time,Reading a Book,Have a good talk,The best courtesy in the fast pace。
1
LIVINGROOM
客厅
2 DININGROOM
餐厅
3. BEDROOM 主卧室
4
SECOND BEDROOM
次卧室
5 BATHROOM 卫生间
6
STAIRS
楼梯
6 ENTERTAINMENT ROOM 娱乐室
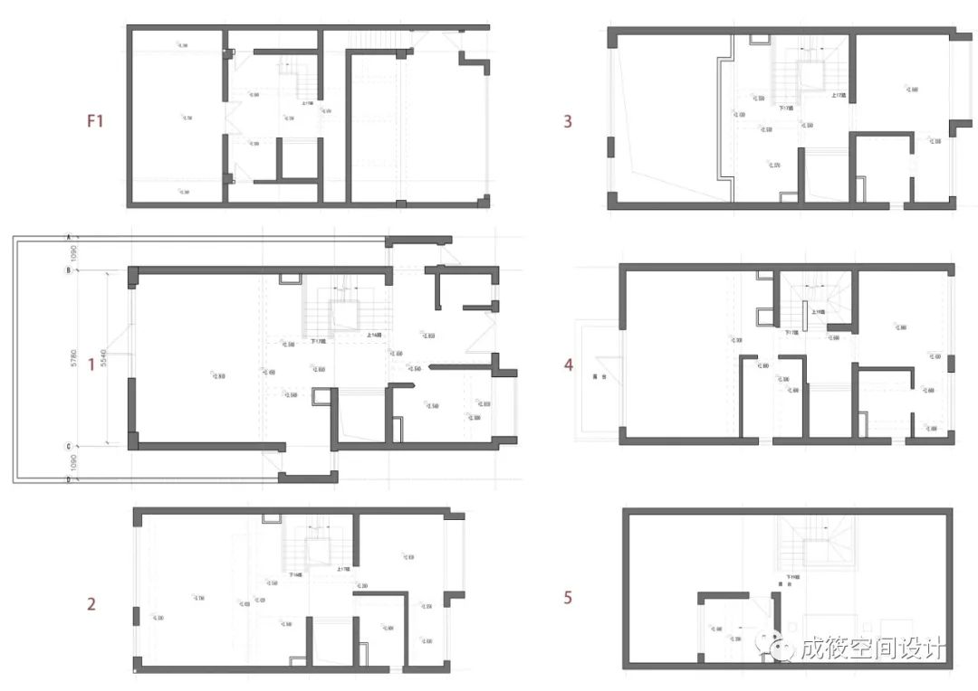
附户型图
项目面积 | 460㎡
项目户型 | 别墅
项目地址 | 上海
项目设计 | 成筱设计
客服
消息
收藏
下载
最近
















































