查看完整案例

收藏

下载

翻译
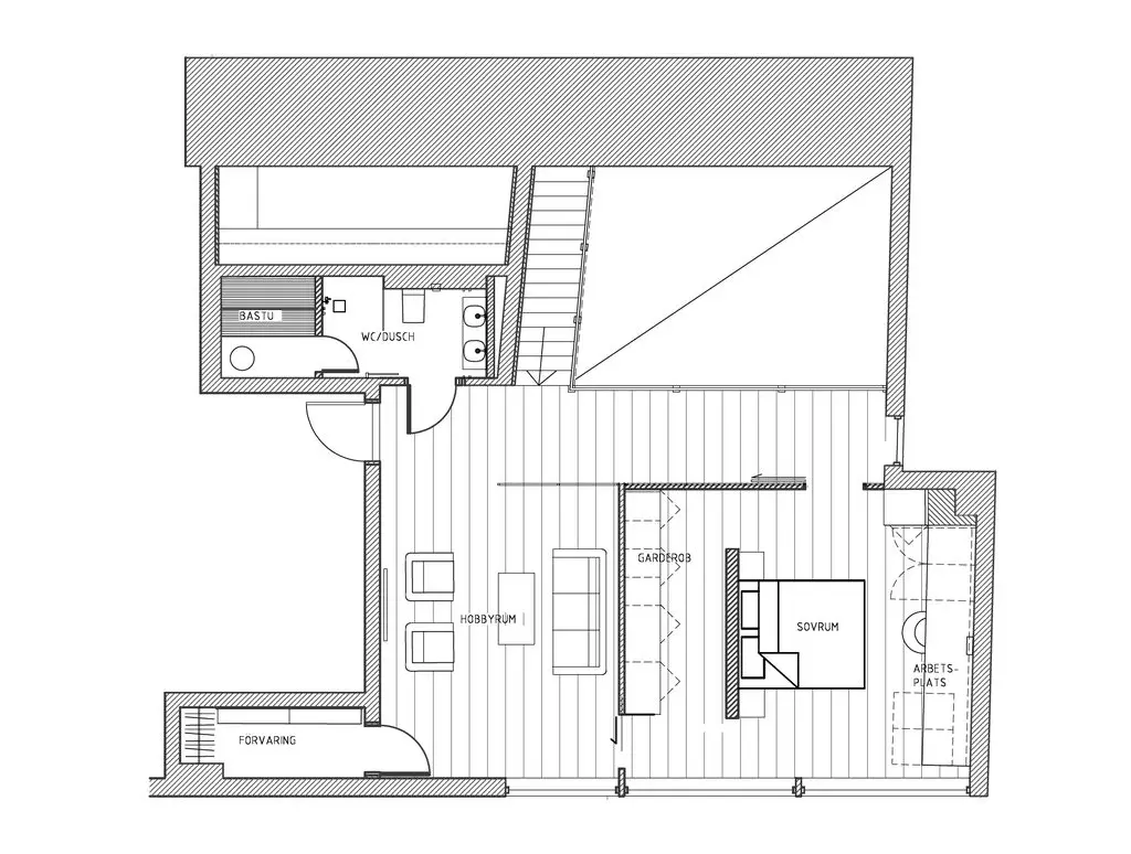
Cet appartement suédois en duplex joue sur la transparence et un aménagement épuré au mobilier design, avec ses nombreuses surfaces vitrées, verrières s’ouvrant de façon originale, garde-corps de l’escalier menant aux chambres, cloisons vitrées remplaçant des murs pleins.An apartment with a transparent designThis Swedish duplex apartment plays with transparency and refined design furniture, with its many glass surfaces, glass doors opening in an original way, stair railings leading to the bedrooms, glass partitions replacing solid walls.201m²
客服
消息
收藏
下载
最近


































