查看完整案例


收藏

下载
高傲冷艳的气质
自由时尚的气息
是第一眼见到业主时的感受
让我们不禁联想到坐在巴黎街角咖啡馆
小憩的那个阳光闪闪的秋日午后
如何从纷繁和纯粹中去平衡表达的方式
打破常规 勾勒迂回的流动线
接受空间所引领我们的生活型态
接受不被束缚的生活
设计解析
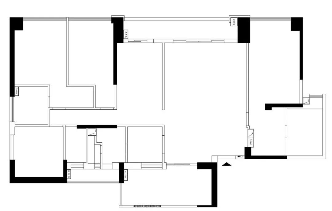
▲
原始结构体图
客户需求:
1:入户玄关
2:丰富的社交会客功能
3:两房+工人房
4:拥有独立衣帽间
5:拥有浴缸
6
:拥有中西厨房
7:西式吧台
8:全屋智能家居
空间
户型
”
+
“
客户需求
”
+
“功能
设计
”
=
“加班狗”
N轮奋战之后
超级变变变变
▲
丨
平面方案布置图
Layout Plan丨
▲
丨
轴测图
Stereogram丨
▲
丨
动态图
Dynamic Graph丨
▲ 手绘空间构想图
▲
丨
玄关
E
ntrance Hall
丨
▲
丨 客厅 Living Room 丨
当阳光透过玻璃纱窗洒进室内
很自然地生成了一派岁月静好的景象
优雅的气场与极简的态度兼顾
这便是对灵魂深处所求的家的细心反馈
▲
丨
书房
Study
丨
▲
书柜动态图
栅格推拉门
暖白色烤漆
深浅对比的配色
因开窗泄流而下的光线
刚中带柔
▲丨 餐厅 D
ining Room
丨
▲
西厨动态图
▲丨 厨房 Kitchen 丨
▲
丨
主人房
Master Bedroom
丨
▲
主人房动态图
似分非分
似隔非隔的空间关系
取得围中有透
空间中有空间中的趣味
丰富空间层次感
▲
丨
衣帽间
Cloakroom
丨
▲
丨 主卫 Master Bath 丨
▲
卫生间
动态图
▲丨 客卧 Bedroom 丨
软装概念
物料选材
项目介绍
项目名称
| 知 秋
主案设计
|
王华汉
设计执行
|
李耀明
|
陈冠
参与设计
| 黄红淼
|
林志坚
|
卢静桦
设计机构
| 土禾空间设计
事务所
项目坐标
| 中国惠州
项目类型
| 私宅
项目信息
| 华贸铂金府267平方
主要材料
| 涂装板 | 钢板 | 石材|玻璃 | 布料
About Us:
土禾空间设计事务所:以实景落地作为核心竞争力,立志打造全案服务高端住宅设计型的设计事务所。
▲ 土禾设计团队
设计&商务
合作请联系
Architecture
建筑
Urban
规划
Landscape
景观
Interior
室内
土禾空间
设计
事务所
Tuhe Space Design Office
M:
13691796285
T :
0752-3103736
E:
670729080
惠州市演达大道 恒和金谷1单元1302-1303室
Huizhou Yanda avenue Henghejingu unit 1 1302-1303
▼
代表作品
▲
净 · 时光
| 江湾一品私宅
▲
初语 | 珑湖湾私宅
▲
喵宅 | 龙惠华御园私宅
▲
安放 | 龙惠华御园私宅
客服
消息
收藏
下载
最近














































