查看完整案例


收藏

下载
动及静·静致远
项目地址|浙江杭州
空间性质|商业空间
项目面积|227㎡
落地时间|2022 年 2 月
项目花费|30 万
设计团队|李越、徐亨俊、兰茜
摄影团队|O2 氧气视觉
主要材料|乳胶漆、地坪漆等
前言 / Preface
在现代世界快节奏的工作生活中奔波劳碌后,身体上需要休息放松之外,心灵上的休憩也显得尤为重要。
瑜伽作为一种流行的健身运动,因对身心健康的双重调节被人们推崇,吸引了越来越多的人加入到瑜伽练习的行列中来。
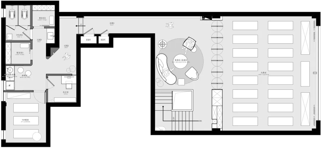
一层 / First floor
▲一层平面布局
在熙熙攘攘的城市街道上,我们想要通过与众不同的门头给予来往的路人眼前一亮的感觉。曲线的设计形式贴合瑜伽的“流动”凸显其特征。入户的玄关设计像是回到了家中,亲切感与仪式感油然而生。
入口的吧台位置的设计,不同于传统常见的接待方式在进门的两侧或正前方,突破了小空间的空间限制,将公共空间尺度最大化,开阔的空间提升人们在等待或休息时的舒适度。
瑜伽习练室内留给设计发挥的空间不多,遂采用贴近自然的材质来营造宜人的内部环境。
在整体格局规整方正的空间里,为了打破常规性,设计几何线性等元素,增加丰富性和层次感,在楼梯和公共休息区域做重点突破。考虑到层高,面对不便隐藏的原建筑结构梁体,我们将其包裹成圆柱形,加之灯槽内柔和灯光的映照下,带来了空间柔美的感受。
块面方式的楼梯极具形式感,无边框玻璃扶手在保证安全的前提下保留了通透感。
二层/ Second floor
▲二层平面布局
楼梯上方的二层顶面像是引入了室外光线的天井,绿植在下点缀,蚕丝吊灯自带东方意境感。
羊羔绒沙发与实木家具等软装围合出温馨放松的区域,从通透的木质旋转移门向其望去,整个空间散发出若隐若现的禅意气息。
水波纹灯投射到墙面上,传递水流动的感觉,营造出别致自然的效果,与品牌理念相呼应。
在更衣空间的设计上,我们采用了窗帘作为软隔断分隔空间,满足课前课后更换瑜伽服的功能,使得有限空间最大化利用起来。
结语 /Conclusion
在 227㎡的空间里,除了满足功能性基础上,我们希望在服务与空间设计提高客户在这里的体验感。除了增强品牌效应外,我们想要更深层地表现空间的品质和精神质地。动及静,静致远。最好的境界,是丰富的安静。在动与静之间,个体可寻求一个适合自身的节奏。在瑜伽习练间,寻找生命最原始的面貌,为我们的身体、思想和精神做最灵性和深刻的锻炼。
设计过程/ Design process
▲一层分析图
▲二层分析图
▲门头效果图
▲一层效果图
▲一层软装方案
▲二层效果图
▲二层效果图
施工过程/Construction process
▲落地拍摄
李越
物里空间设计事务所创始人/设计总监
WL.DESIGN|物里空间设计事务所
创办于 2018 年,是一家以设计为核心驱动力,集室内设计、软装设计、工程管理、产品采购于一体的全案设计定制服务公司。
我们一直致力于高品质住宅空间、办公空间、精品商业空间等设计项目,坚持以“营造空间价值”的理念,追求创作的质感,享受设计所带来的创新与乐趣,注重高效的设计管理,为客户提供高优质全案设计落地服务,让生活与工作和人本身共融于空间之中有更多的可能性。
设计作品及以上内容皆为物里原创,版权皆为 WL.DESIGN 物里空间设计事务所所有。
///
悄悄关注我们吧
T:15858100394
公司地址
杭州市拱墅区运河财富中心 8 幢 1001 室
往期案例
客服
消息
收藏
下载
最近




















































