查看完整案例

收藏

下载
AAI 人居
01场地与文脉
FIELD & ENVIRONMENT
“绍兴柯桥,文脉历史”
明张元忭《三江考》说:“今山阴三十里有柯桥,其下为柯水。”
柯桥区素有“东方威尼斯”之美称,是中国著名的水乡、桥乡、酒乡、书法之乡、戏曲之乡和名士之乡。
古老的京杭大运河穿流而过,乌篷摇曳,流水潺潺,自然景观优美人文景观丰富。
回归自然,打造诗意的栖居场所
坐拥千年文化古城,绽放一座水畔华著
项目区位图
项目位于绍兴柯桥西郊位置,地块北侧紧邻钱陶公路,东侧邻水,西侧和南侧分别为规划道路;地块南侧 500m 处未来设有城际铁路线稽山路站,未来地块交通更加便捷。
基地紧邻水系,基地状况良好,交通方便,居住氛围也较为良好。
02 矛盾与策略
DIFFICULT & STRATEGY
项目所属区域未来规划看好,但现有的资源不足;土地成本较高,与相邻地块 R15 形成直接竞争关系,如何趋利避害,增加项目的竞争力,是本项目的核心矛盾点。
设计团队和业主充分沟通之后从如下几个点展开应对策略:
01:价值最大化,洋房产品数量排布多,拉高整体售价,提高货值
02:规划格局感要好,体现社区整体品质,拉开与相邻社区(拒绝兵营式排布)的价值感差距
03:在出货量最多的前提规划下尽可能释放更多的公共空间场地,提高居住生活品质
04:立面设计要体现品质感但要严控成本,两厢矛盾中得出最优解。
从最后的设计完成效果看,我们基本在现有资源下做到了最优的方案。鱼和熊掌在一定的设计平衡后兼得。
03 规划与格局
DIFFICULT & STRATEGY
规划总图在这个项目中是最能体现设计质量的一环,设计团队在现有任务条件输入和对场地不断深入研究之后,基本确定南低北高的大的天际线规划控制,以及在略显狭长地块中根据 150 米半径划分三个大的组团。然后一条贯穿三个组团的纵向主轴贯穿其中,这条空间意义上的中轴同时也是作为社区内公共开放空间的场地,是居民生活娱乐交流共享的舞台。另外,沿河一侧景观资源较好的位置规划若干颗独栋的高价值平层产品,在最南侧沿河是布置社区配套楼,该建筑在前期是作为示范区售楼功能使用,一座集传统印迹和现代审美完美结合的示范区(点击此处阅读示范区设计)建筑体量已在 19 年建成投入使用。这些概念和设想均能从早期的概念手绘总图可以看出来。
概念阶段规划草图
在总图的深化过程中,产品和规划都在相互有序的调整,但很早定下的总图大逻辑一直没有变。概念草图中通畅的主轴中央景观插入了两栋建筑,为了不破坏原先的设想,设计强烈建议底部做架空处理,以及推敲两楼摆放的位置在间距和空间关系上是合适的。这样的规划调整带来的好处是主空间轴上有收有放,各个分割以后的庭院都有各自的空间特性,围合度更好,也有更好的安定感。
方案落定总图
规划生成
规划资源与产品逻辑
——规划格局的资源分配和产品梯级分布都是息息相关的,设计要做的就是在原有天然河景景观资源面的同时尽可能的多创造好的内部景观面资源,让更多的楼宇享受资源带来的价值提升。
资源分配逻辑决定产品梯级方位
沿主要景观轴分配资源
向左滑动查看更多
鸟瞰图
04公共空间塑造
DIFFICULT & STRATEGY
在现如今的地产设计领域,极致化的压榨土地资源是最主流的提高货值的方式,很直接也很暴力,诞生了无数个因为极致的低密追求从而导致社区没有可供舒适生活的公共场地,人们的生活只能被迫退在房子内,无法更多的探到一墙之隔的户外,久而久之,居民之间也因此会产生更加冷漠的邻里关系。
作为城市建设领域的设计一份子,建筑师有责任根据自己的经验和能力去引导开放商共同创造更加人性化,更有温情感的居住家园。在本案当中,满足业主的需求之外,更多精力关注在社区内的公共空间上,也就是说更多的站在使用者层面去考虑问题,践行设计让生活更美好的理想使命。
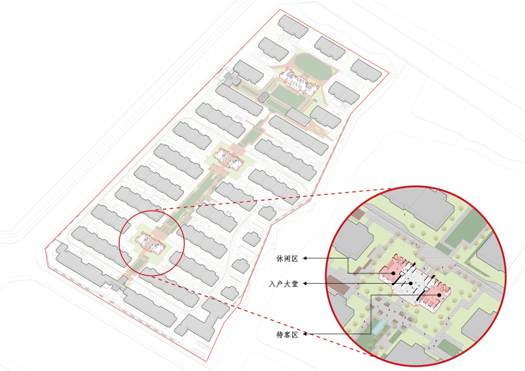
在本案规划设计时,就已经预埋了许多生活场景的设想,主要围绕两个主要的入口区域和中轴景观花园以及住宅底部架空空间展开,各个由规范日照间距等错动出来的空间正好形成了多样化的场地,通过空间设定和营造可以提供不同人群的各种活动需求,例如儿童童玩学习空间,老人休闲棋牌交流空间,草坪分享集市,健康乐跑跑道,滨河景观漫步等场景。
概念阶段功能分区图
设计概念空间场景设想,具体以实际交付为准 向左滑动查看更多
05立面逻辑
PLANNING & ARCHITECTURE
本案规划因地制宜,充分利用资源和创造资源的同时,也因此产生了较多不同的单体建筑种类。项目团队摒弃只从单一建筑造型出发的传统设计思路,而是选择更加宏观的上位规划角度,从大区整体考虑造型的逻辑一致性出发,根据资源片区、单体体型和建筑高度三个不同角度,总结归纳,设计大致将大区分为三片领域,即北侧高层区、中轴洋房区和沿河片区。
三个大的片区:
1、沿中轴洋房片区;
2、沿河独栋片区;
3、北侧高层片区;
沿中轴洋房片区:沿景观中轴对称分布,靠近主轴景观的建筑部位为虚的体量,偏离主轴景观的建筑部位(临马路一侧)为实的体量;虚实结合,对比强烈,呼应资源的分配;
沿河片区:建筑亲水一侧的立面,强调横向,转折处为转角阳台,保证资源的最大化利用;
北侧高层片区:建筑排布沿中轴完全对称;
建成效果
具体到单一建筑体量,住宅单体楼栋和社区配套(前期美学展示中心,详见之前发表推文)采用了相似的设计语言逻辑——古与新的融合。建筑的基本形体是遵循古典的三段式比例划分,细节处理是去风格化的现代简约的造型,南侧屋顶设计深色的挑板暗合传统江南民居的屋顶飘檐,南侧大面积的开窗也更符合室内功能的开窗需求。通体立面采用两种主要的颜色——中灰与米白来区分形体和构图,通过不同造型框的范围来归拢不同尺寸窗户的零散感,从而达到有序统一的立面美感。
在创造美感的立面形体之时,如何节约成本也是设计主要考虑的问题,一定的设计细节加入会提升建筑近看维度的价值感。
近人尺度基座二层之内采用干挂石材+铝板体系,以上部分是真石漆+EPS 装饰线条。
立面生成-洋房楼王
在建筑单体层面,主要从立面风格、形体演变、材质与构造多个维度进行解构分析。
立面生成-洋房
效果图 / 建成照片对比 向左滑动查看
效果图 / 建成照片对比 向左滑动查看
建筑在严控成本的前提下,对建筑的细节严格把控。尺寸大于 30mm 的界面,增加线脚细节。标准层细节采用 EPS 线脚与金属漆结合的方式,降低成本低同时保证线脚的细节可控。
头部构造
标准段构造
基座构造
立面材质
立面材质
06实景呈现
PLANNING & ARCHITECTURE
实景图
绍兴元垄华著社区的设计,在满足业主正常开发的价值操盘之外,设计更多关注真正的用户需求,站在用户角度去分析如何才是宜居家园。我们希望能通过设计创造更多的定制化空间为使用者提供更好的生活场所,从而提高生活品质,促进邻里之间交流,激活社区活力,继而创造更有人性,更有温情,更有归属感的宜居生活家园。
名称:绍兴元垄中南·华著
业主:绍兴垄越房地产开发有限公司
地址:浙江省绍兴市
用地面积:97574.1㎡
建筑面积:243935.25㎡
建筑方案:AAI 国际建筑师事务所
合作设计:华汇工程设计集团股份有限公司
景观设计:DDON 笛东
摄影:傑意建筑摄影工作室
甲方设计团队:宋海良、顾永林、何金强
建筑方案设计团队:Bill Fang、Jordan Jiang、Eric Lv、Ted Han、Mia Ji、Jie Wang、Kaibing Kuang、Dechuan Yang、Marvin Chen、Daisy Xu、Shaolong Xue、Minghui Li、Tiansheng Du、Yuejiao Xu
专注设计 | 超越建筑
Beyond Architecture
微 信:AAI 国际建筑
※本文仅作为本企业宣传推文,项目信息为设计理念示意,不作为销售物料和要约,亦不代表本项目相关企业的任何承诺。
往期精彩
客服
消息
收藏
下载
最近
































































