查看完整案例


收藏

下载
海碧台 · 悅舍
THE WAVE HABITAT
项目地点﹕中国秦皇岛
项目名称﹕海碧台 - 大平层室内设计项目
项目业主﹕嘉里集团
室内设计﹕扩道建筑设计事务所
设计团队:梁广苏、王芷媛、叶紫蓓、苏家富、袁森
在扩道室内设计团队接到嘉里集团在海碧台的大平层设计项目后,我们先与业主的设计及市场部团队进行了多次深入的交流探讨,先了解有关的要求再来配合整个的空间思考,利用现有的自然环境元素配合建筑概念,以设计手法带融入到整个空间里。
对我们来说是这一个很有挑战性和趣味性的项目,无论他的建筑外立面或者结构上的造型,这都带给我们一个机会把空间布局的更加有趣味性及有独特性。在不同功能的区分下可以穿插于这些结构造型中,仿佛让人感觉置身于室内室外而又像走进艺术廊的状态一样。
这是一个非一般的空间。如果你不在当中真正的走动感受的话,你是无法体会到当中的趣味所在。
特别是如果您从大型开放式厨房走进过道,然后再到客厅看到一望无际的大海,那时候你的心情是多么的舒畅多么的开朗。
悅舍 雅致恬静 享受醉人海景
悅舍位于海边渡假胜地秦皇岛,在这大平层单位中我们着意将秦皇岛怡人景色,融入到当代轻奢设计之中,为忙碌的城市生活打造出旅游渡假胜地。拥有绝佳海景和时尚生活空间,能举办亲朋小聚,提供玩乐和品味交流
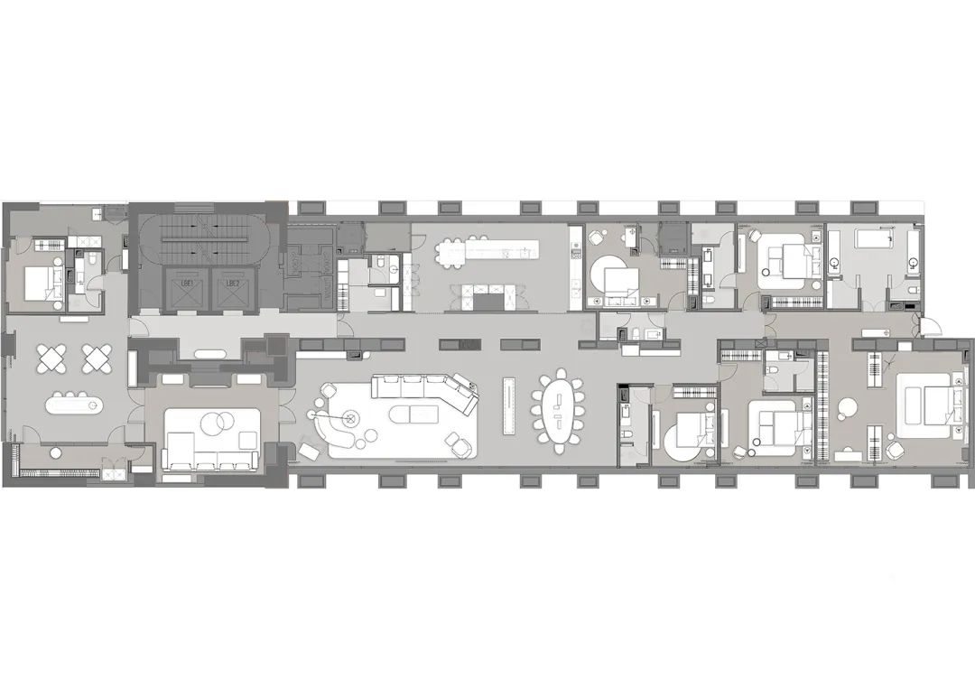
玄关
进入玄关,眼帘内是呼应建筑设计的艺术语言,及仿照秦皇岛沙滩的景致,墙身采用磨沙材质。沉色云石的长椅,配搭浅色的大理石地板,营造出时尚大气的氛围。
门厅和走廊
走廊继续是玄关的伸延,米白色的磨沙墙身与浅色云石纹地板,并利用金属线条与其他区域作区间。门厅的衣橱采用了木材质,可放置衣物。设计上延续简约线条的风格,让在踏入单位内能感受到和谐恬静。
厨房
为了应付不同宴请,在厨房采用了半开方的设计,当中摆放了一张长型岛台,让多人一同享受烹饪的乐趣。右边设有陈列架,可放置展示品,亦可放置厨具,拥有功能性,亦可展现个人品味。料理台上设有金属吊架放置绿色植物,为现代的设计增添温馨。
客厅
利用了结构造型呼应客厅与建筑设计,正对落地大窗在室内亦能感受秦皇岛海岸的风景。为了设计出让亲朋好友舒适放松闲聊的空间,用上了深浅的布艺沙发及大理石茶几,并配上米白色的地毯及墙身,令空间看上去更加明亮优雅。
饭厅
大理石火炉分隔了饭厅与客厅,为整体空间增添观赏性。饭厅中间放置了特色大理石餐桌,呼应浅灰色的石材地板,配以浅色皮革椅子,令饭厅感觉更加格调。而金属扣环吊灯添加时尚现代感。
主卧
延续统一米白色色调,一进入主卧中间放置浅色布艺沙发,紧靠着双人床,两侧设置了木制床头柜,可放置睡前读物。环形金属扣线条吊灯,与右边床头灯呼应。在墙体亦藏有储物空间。
主卫生间
卫生间用上了大理石打造出高贵优雅的气氛,加上金属简约线条的设计,统一现代化的设计风格。在独立式浴缸的旁边设计了金属的配架,放置手机及平板电脑,可一边沐浴一边享受娱乐影片。
次卧室
卧室采用了不同深浅度的床具及长椅,营造整洁和谐的气氛。衣柜选择了半透明的移门。在浅色的木墙身内嵌了电视,下方摆放了特色透明矮柜,增添海岛感觉
。
电影室
让用家可以投入在电影当中,采用了深灰色的长沙发,配搭着黑色的软垫及单人椅,整体色调沉实而大气。而米白色暗条纹地毯及白色云石圆形茶几,带来明亮的气氛。在米白色的墙身嵌入大电视,能与亲朋一同舒适地享受时光。
娱乐室
推开在电影室半透明的移门,看见深色椭圆形的多功能调酒台,桌面是一块绿色大理石,与吊灯上的绿植呼应。同样延续简约和谐的设计风格,并利用直条纹半透明玻璃柜门,将用品整洁收纳。在娱乐室除了与亲朋一同品酒聊天外,亦摆放了桌球设施,享受相聚的时光。
酒窖
酒窖的墙身用上了仿石纹的材质,及木材质的展示架放置名酒,营造稳重大气的感觉。亦配备专业酒柜,让住客可以更好地收藏名酒。
客服
消息
收藏
下载
最近















