查看完整案例

收藏

下载
素有「北上海」之称的海门,位处江海门户之界的地理条件使其同样具有揉杂中西文化的殖民地风貌,它的建筑、生活器物与上海一样带着20世纪不同时代讲究的时髦华贵,却推演得更缓慢,更容易触及连结过去的时代牵绊。
一动一静 亦窗亦景
而江南建筑受古代诗画薰陶酝酿的园林艺术,穿透百年的朝代更迭与现代化浪潮,持续影响海门人对建筑、对居所、对生活的观赏与回味。本案以海门独特的地域及历代建筑风格演变为背景,试图融合老上海遗留的西洋风韵,以及江南园林追求以画为本、以诗为题的空间深远意境。
负责设计的水相设计擅长以现代的语言说有年岁的故事,在占地有限的接待中心,利用中式建筑惯用的动线及视角,例如飞檐、庭园廊道、作为路径顿点的穿堂水井,设计出有端景为底的迂回,去欣赏不同窗体、落柱、屏风所带入的庭园景观并与室内行为产生联系,借此扩大空间所能产生步移景易的恬淡享受。
在中国建筑习惯的脉络中,我们刻意再以现代主义去改变它的含蓄与静默。除了简化窗柱线条剥除雕饰细节,也以大面积阵列的落地开窗尺度,突破传统窗景幽微的采光样貌,搭配廊道中央茶席上方的长型天窗,引入不同角度自然光以丰富室内一景一物的立体性。
沐浴
在天光下,多了与环境互动的坦然,以素静的白色石质墙面为底,修长简洁的茶席像慢慢展开的一幅长卷,古老的美学在追求纯粹的现代建筑中卸下了包袱。
或浓或淡 漫开一室的静谧
但当人们走到空间末端的VIP室与洗手间,需要多一些隐私与沈静性质的区域,我们缩小门窗尺度降低自然光源,同时改以深色墙面反衬其他区域的明亮、开阔性,一道漆黑的木墙像浓烈的墨,安静有力地座落在尾端,透过深浅墙面错位的动线律动,以及光影强弱的戏剧节奏,于感官转化使用者对空间气氛的体验。
其
中,
材质表面的肌理更容易在天光中展现天然而纯粹的美感力道,不需要过多漆饰雕琢,让立面的量感自然烘托出材质本色。
自然光影之下,物的表面呈现的触感往往能引发更多想像。
尤其在光洁的空间里,带着粗犷凿面的原石更易重点式吸引目光,它们安静盘据在水井旁、桌下,没有缤纷的颜色炫耀,在经年累月的洪荒变迁与城市盛宴面前不为所动,纹理中藏着不说的心事,别人不知道,但自己默默纪念着。
概念立面
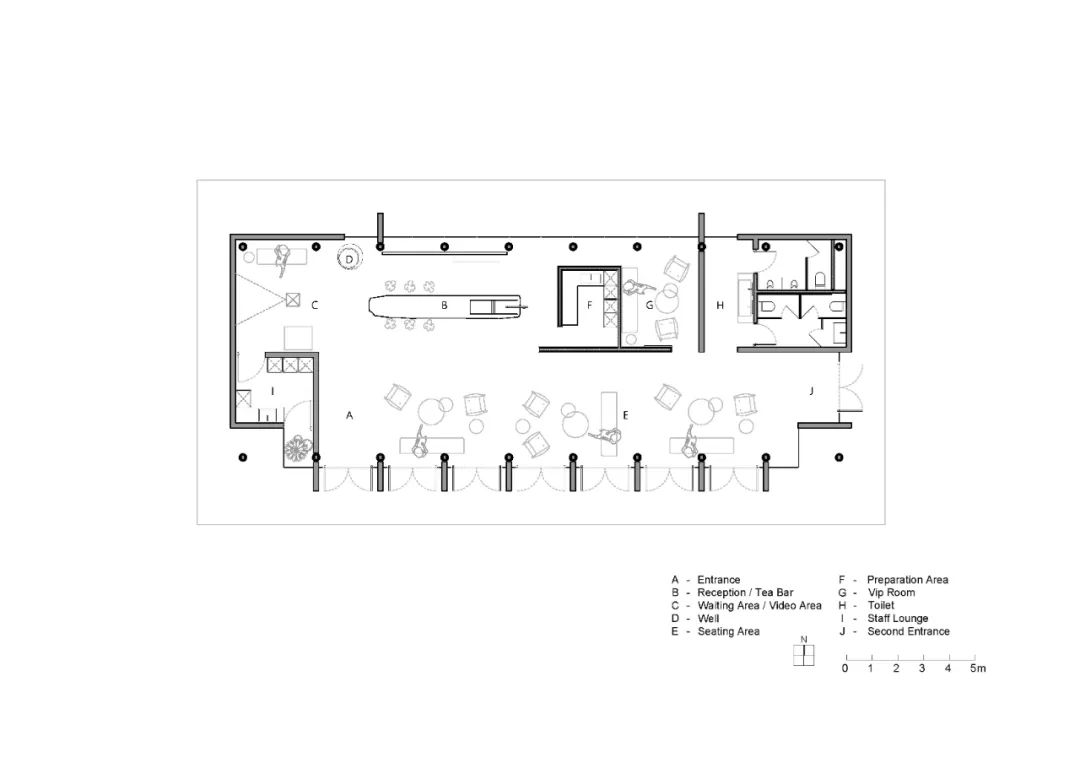
Plan
空间设计:李智翔. 郭瑞文. 池佰镇. 林亭妤 /水相设计
业主:中南置地
空间性质:接待中心
座落位置:海门市
室内面积:230 平方米
空间格局:接待区、影音室、品茗区、VIP休息区、卫生区
设计时间:2019.05-2019.08
施工时间:2019.11-2020.03
主要材料:双色手工漆、天然实木、花岗石、大理石、毛丝不锈钢
摄影:鲁芬芳
客服
消息
收藏
下载
最近






















