查看完整案例

收藏

下载
瑞府
是华润置地的高端系列,每一座瑞府都传承了瑞系产品的贵气与精巧。
金沙瑞府是华润置地近年在广州的重点项目,拥有背山面湖的独特山水格局,绝佳的生态景观令人充满期待。
广府传统源远流长,俗语云“食在广州”,广州美食集各菜系之精华,融会贯通自成一家,菜式精致味道鲜美。人们对美食都如此挑剔,对居家堪舆自然极为重视。
广州城自古就是山环水抱、九龙入州、四水聚堂的大都会格局。金沙洲位于广佛同城核心区,为白云山西脉所结,喝形为飞凤展翅;项目地块形似麒麟角,与浔峰山犬牙相错,相依相融,南边毗邻凤凰湖。视野开阔,有着大隐于市的绝佳环境。
▽项目区位
▽场地的脉络
地段与环境决定了豪宅的上限,在广州寸土寸金的核心区,瑞府独特的山水格局奠定了独一无二的豪宅基调。▽周边现状环境
景观设计利用场地背山面水的格局,顺山势而为之,层层递进,园区与山体融为一体,拥山而居,宁静悠然,向外居高临下,湖景一览无余,项目的稀缺性与唯一性充分展现。
▽
依山就势,层层递进
酒店式入口-
Entrance space
入口空间由于高差、进深的原因,难以用传统的“退隐”、层层递进的方式来处理,建筑、景观和室内如何融合,“隐”与“亮”之间如何平衡,就成了入口的设计关键点。
方案经过反复推演,最终多专业充分融合,一体化设计,半围合式的院落前场,既充分展示建筑晶莹通透的大立面,又不失仪式感。功能上形成酒店式港湾落客区,突出尊贵感。两侧延展的意大利石材景墙、轻盈的飘带形不锈钢顶棚,巧妙的统一了建筑与景观的立面并化解两侧不对称的难题。
▽
入口方案演变
建筑立面选用“苹果店”式通高玻璃设计,将一层大堂、二层会所、三层游泳完美的一体化结合。▽酒店式落客区带来尊贵归家体验
▽取名为“麒麟星座”的雕塑,象征纳福、聚财、吉祥之意
一方镜水-Clubhouse courtyard
二层庭院通过回廊空间,巧妙地完成归家场景转换,这里既是交通转换空间,又是社区会所,涵盖展示酒店式配套服务的功能。景观通过纯粹的镜面水统一空间,室内通透的玻璃幕墙延伸空间,室内外相互渗透,共同营造充满品质酒店大堂感的归家院落。
▽
酒店式配套服务传递尊享生活方式
©立方设计
▽庭院里随着时间变化的祥瑞之光
经过酒店式形象入口、尊贵社区会所,进入三层,空间由内而外,由尊贵奢享转为精致的自然。干净的绿篱,简明的收边,细腻的铺地,归家变得清新明快又充满浪漫。
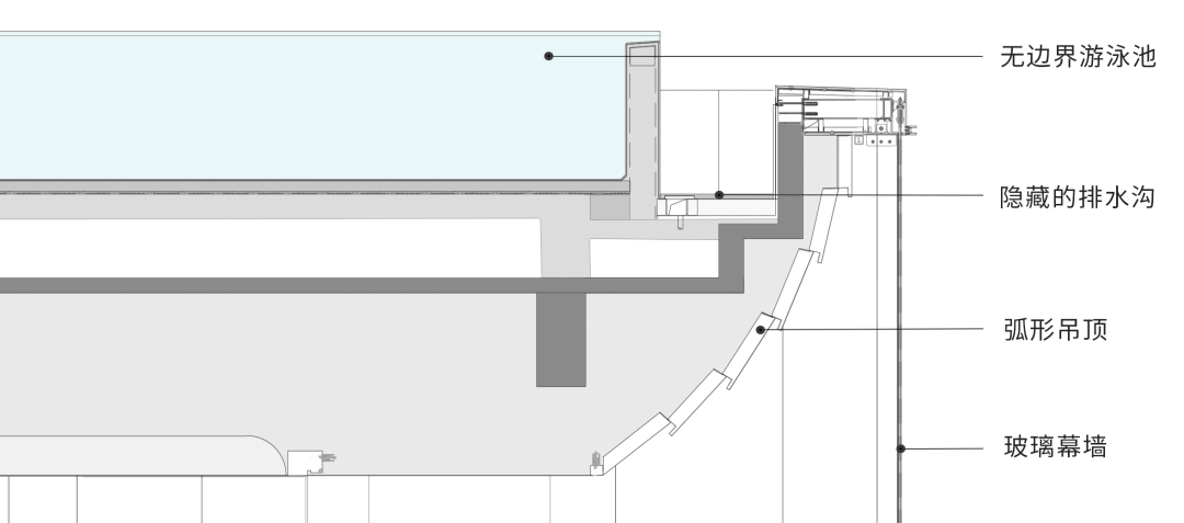
无边之境-Infinity pool
屋顶游泳池是项目的难中之难,如何在方寸之间,达到完备功能与纯粹效果的平衡。设计中采入“嵌入”式手法,泳池与建筑立面、室内吊顶完美的结合。最终既实现建筑立面与室内效果的纯粹,又让泳池成为绝佳的观景及体验打卡点。▽泳池巧妙镶入建筑。
▽压于一角的精品冬青
▽泳池材料采用浅色系进口石材,高贵典雅。
▽ 湖水与泳池融为一色,朦胧高远
▽居于城中,又远离喧嚣
©近境制作
▽迎着朝阳,沐浴第一缕阳光
逸趣花园
- Model Garden
叠墅入户花园,小中处处见精巧,一石一池一树,都融入了客厅,爬上了前墙,这里更多的是留给自己独享的惬意与浪漫。
叠墅天台花园视野开阔,山湖美景尽收眼底。平时一家享受自在的亲子时光、品茶读书,或周末邀上亲朋,赏佳肴美景,话人生快意。
▽
亭台间山林湖景一览无余
滨湖公园与园区一路之隔,沿湖面展开。场地原生植被丰富,我们秉承尊重原貌的理念,通过梳理激活场地,营造一条充满活力的湖滨公园,既重塑成为城市活力“碧道”,同时也成为项目的“湖滨后花园“。
滨湖区域现状植被虽茂密但杂乱破旧,场地缺乏功能性,作为提升改造区域,我们最大程度利用现有资源,不做过多的挖填,在有限的成本下让公园焕然一新。设计中我们顺应地势进行造景,更新、梳理利用现有的植被资源,设置滨水步道、活力运动场、疏林草地等场地,赋予场地新的活力与生机。
▽
绿地原貌
公园核心区仿佛一枚充满生机的绿色宝石,流淌蜿蜒的线条围绕宝石徐徐展开,形成一条亲水飘带,活力明艳的色彩、舒展自由的植物,“凤鸣水岸”的画卷就这样展现在我们眼前。在林下舒展筋骨,在湖边悠闲散步,在台地沐浴阳光……人们以自己喜欢的方式融入场地,感受自然之美。
▽市政人行道更新铺地,梳理后的植物面目一新。
▽
保留的原生相思树与构树
▽利用原地貌高差,顺势成坡
▽“凤眼”—被激活的林下核心活动区
▽利用地势高差形成的看护区
▽场地改造前后对比
凤鸣金沙,麟起浔峰。
金沙瑞府前拥无敌湖景,后依层叠山林,依山就势,充分利用台地高差营造层层递进的空间。开阔的视野,酒店仪式归家空间,精致细腻的花园,为客户带来尊贵品质、私享自然的都市中酒店式山水森居。
▽
总平面图
项目名称:广州华润·金沙瑞府
委托业主:广州市润尚房地产开发有限公司
景观设计:深圳沃亚景观规划设计有限公司
施工单位:广州华苑园林股份有限公司
建成时间:2022 年 9 月
项目面积:示范区:6662㎡;公园:10010㎡
项目地址:广东省广州市白云区浔峰山东路
摄 影:三棱镜建筑景观摄影
客服
消息
收藏
下载
最近


































































