查看完整案例

收藏

下载
紫薇越秀·馨樾府展示中心
ZiweiYuexiu Xinyue Mansion Exhibition Center
在古都西安的紫薇越秀馨樾府展示中心的项目上,联创设计集团创新设计中心的西木工作室,作为源于洛杉矶的设计团队,梳理洛杉矶豪宅的发展脉络与空间类型,实现了一个原汁原味的,西好莱坞式的,向外打开的中庭。为整个项目注入“由内而外,打开建筑”的顶级豪宅基因。
01 极乐源头
▲stahl house 面向夜色的洛杉矶
没有哪个城市如洛杉矶一样被大量的影片所塑造。比尔埃尔,比弗利山,西好莱坞地区的豪宅内金迷纸醉的生活从 60 年代的电影里时常以背景出现,而这一切的源头就是伟大的 Case Study House 系列。
更有趣的是:Case Study House 是美国二战以后兴起的重新定义战后新生活的住宅项目,由南加州洛杉矶地区 36 个委托项目构成,以非常实用主义的应用了很多战时技术来表达战后新生活的状态,重新定义了美国现代主义住宅并延申到了全世界。
从战时萧条的低成本住宅开始,预见战后婴儿潮必然兴起并且需要大量的低造价住宅,因此希望能运用工业化捐赠的低成本材料来建造。但事实上这批房子并没有真的为普通人服务,而是完全变成了资本的收藏品,豪宅中的翘楚们,至今影响了一批批的豪宅设计师。而平民中受欢迎的还是 30 年代西班牙殖民风格 Spanish Colonial,也就是前几年国内所流行的土黄的南加州风格。更巧的是当年因为好莱坞电影的传播,上世纪 30 年代的上海也是 Spanish Colonial 的发源地之一。
正因为如此,如果需要给居住一个最高的品质,绝对不是学习土黄南加风。Case Study House 才是当今西好莱坞的豪宅们源头。虽说这些豪宅们打着低造价的旗号,但没一个建筑师不因地制宜的夹带私货。几十年以后,这些私货也就慢慢形成当代洛杉矶豪宅建筑师的共识:夜色下,平躺泳池边,看山下芸芸众生的点点灯光。简单的讲即是:面向景观,打开建筑。
▲Mirror House
近十年的豪宅翘楚团队,Xten Architecture,设计的 Mirror House,倒影洛杉矶夜景的水面。
▲Nakahouse
他们还设计了 Nakahouse,在陡峭的山坡之上,面对山景打开庭院。
02打开建筑
今年团队在古都西安,实现了这样一个西好莱坞式的,向外打开的展示中心设计。设计将一个本应属于内部的中庭空间,向外部打开,室内室外化(inside out),营造一个室外的中庭作为公共活动的场所。
▲入口空间
这一点正如戈登.马塔.克拉克的,剖开建筑的操作一样,有选择地将内部空间呈现到外部环境之中,同时遮盖住未必想展现的东西,即以一种建构的方式打开建筑。整个建筑由两个错动的盒子构成,盒子下的空间也自然成为住区的出入口,而必经之路旁的交接之处即是空间打开的重点。
▲庭院空间,面对进出路径
03 具体操作
首先,并非希望以片墙交错的形式来表达某种空间自主性,而是整个建筑由两个错动的盒子构成。盒子下的空间也自然成为住区的出入口,而必经之路旁的交接之处即是空间打开的重点;其次,结构的设计与之相互呼应,以大跨度挑梁的方式完成体量悬空的效果;然后,材料的表达刻意避开收边与细节的雕琢,以尽可能的大块石材拼接为主,体现体量的巨石感;最后,景观的打造以路径引入,上望外廊,内观庭院为主。
▲操作图解
▲场地鸟瞰
以后展示中心作为社区活动中心运营,三五成群的老人在庭院内下棋、在通道内乘凉;刚刚健身的年轻人在二楼露台上聊天休憩。当日常的生活充满整个院子,才是这个设计真正接地气的时候。
▲庭院空间,面对进出路径
▲侧看庭院
▲入口向内延申路径
▲沙盘与天光
04细节控制
既是源于工业化愿景的现代风格,体现精工细作的细部处理很重要。比如大面积表皮的平整度,收边的挺括都,在节点构造中都进行仔细的推敲。为达到理想效果,大面积的干挂外墙面的分缝纹理,也经过多方案的比较。
▲外墙接缝推敲
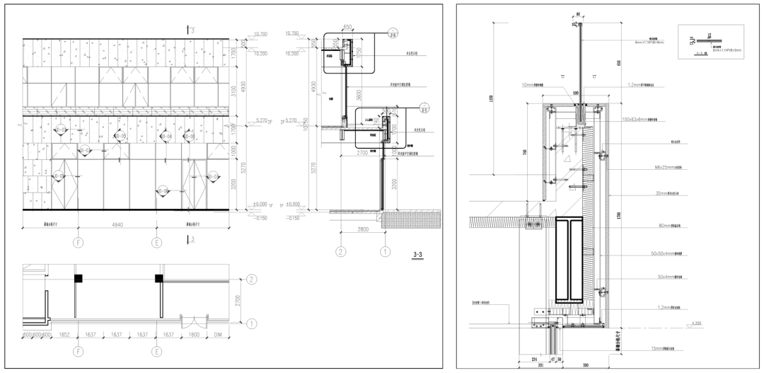
▲节点详图
05技术图纸
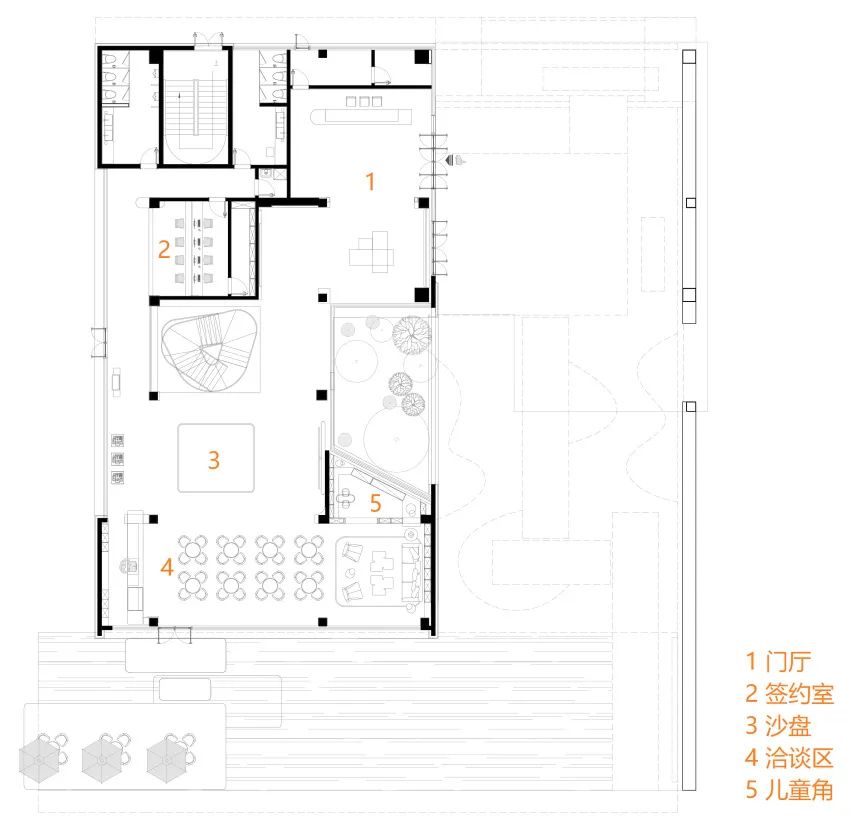
▲一层平面图
▲二层平面图
▲东立面图
▲南立面图
▲剖面图
END
项目名称:紫薇越秀·馨樾府展示中心
项目地点:陕西 西安
建成时间:2022 年
业主单位:紫薇地产 越秀地产
设计单位:上海联创设计集团股份有限公司
建筑团队:联创集团 创新设计中心 西木工作室
施工图:ECADI
室内设计:优联设计
景观设计:麦微景观
建筑摄影:存在建筑
相 关 阅 读
客服
消息
收藏
下载
最近




























