查看完整案例

收藏

下载
华侨城空港小镇社区中心与幼儿园
OCT Airport Town Community Center & Kindergarten
项目概况:
用地面积:13659 ㎡
总建筑面积:9788 ㎡
容积率:0.72
在该项目中,联创设计集团创新设计中心 UDG 中国,延续了一直以来的探索实践:研究幼儿园这一类型的教育建筑,如何作为一个积极的,更具公共性与开放性的空间,来回应城市空间与城市生活,融入所处社区环境,给社区公共空间增添活力,甚至辐射至更远的范围。
设计在有限的用地和建筑体量下,将社区中心和幼儿园作为一个整体来考虑,采用集约、复合的布局模式。还通过引入社区生活场景,将两个建筑,以及限定出的社区公共空间,统一塑造为可承载社区公共活动、激发交往互动的“复合式”公共空间。
01项目背景
Project Background
项目位于合肥西北部的空港新城,上位规划要将空港新城打造成拥有“国际平台”、“特色发展”、“产业空间”三大组团的国际空港小镇。
▲区域环境
该幼儿园与社区中心是空港小镇 5#地块配套设施之一,项目作为空港新城滨湖重要的启动区工程,需要起到创新和示范作用。在各用地指标和功能面积被控制在极限的条件下,如何创造高品质的建筑与社区空间?
▲鸟瞰图
幼儿园和社区中心应以怎样的空间形态来回应基地?又以怎样的形式来提升区域的整体品质?如何满足各项指标下,提升公共性,创造丰富又有活力的社区公共空间?是本设计的关注点。
02 公共性 / 社区空间形式 Publicity / Community Space Form
基地的北侧是一片住宅区,南侧是一条城市干道,场地中轴部分自然就承载了居民日常出入。建筑师没有采用内向性较强的布局,而是相对外向的设计,强调与公共空间发生对话。
▲建筑生成
幼儿园建筑面积只有 3100㎡,通常情况下,会布置 9 个班级。但在该项目中,要求为 12 个班级。为了更有效率地利用基地,设计将班级单元成组布置,并且根据场地的形状,错落布置。由于绿化率要求高达 40%,一部分高年级的活动场地放到了二层屋顶上。
▲建筑生成
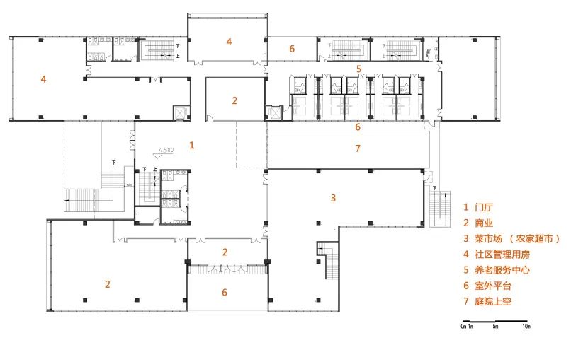
社区中心具有多种复合功能,一层平面布置了商业和超市,二三层则是养老服务中心和文体活动中心。多种功能既能做到系统相互独立,又可以通过公共空间联系在一起。
▲建筑生成
社区中心的使用者从小区的入口进入场地以后,可以直接通过大楼梯到二层的活动中心,也可以直接到达底层的商业和超市。而养老活动中心的入口单独布置在了建筑的北侧。
▲总平面图
设计将两个建筑的活力空间对中轴开敞,为人们提供一个可生发多种日常活动的场所。通过景观、小品的布置,强化这个轴线空间形成的中心广场,将两个建筑更好地联接起来。
03 情景化 / 社区空间使用
Scenarios/Community Space Using
建筑轮廓的凸凹变化,使体量之间围合出大小不一的小广场,与中心广场一起,相互渗透、交织,形成较好的关联性,在有限的场地内营造丰富多变的空间场所。设计进一步放大使用者对这个空间的感知,置入绿化、小品、景观构架,去塑造集市广场,打造一个界面丰富,充满活力,富有人情味的集市广场。
▲日常活动场景
为营造这个活力场所,设计引入了多种使用场景:在平时,西侧是幼儿园,接送孩子的家长可以在广场上等待的时候舒适地停留、交流互动。旁边的社区中心一层设置了休闲商业和超市,也可供他们使用。这个场所还可以承载居民们日常的休息散步,以及一些表演娱乐活动。
▲集市/特殊活动场景
有特殊活动的时候,在这中心广场里,结合场地内部的景观构架,布置临时性的架子,可限定空间,形成富有表现力的场所,为举办集市、节、商业促销、庆祝等活动提供多种可能性。
▲幼儿园鸟瞰
建筑造型响应当地政府提倡的欧洲小镇风格。设计对建筑的功能空间进行梳理,有秩序地置入了坡屋顶元素,形成了鸟瞰上具有韵律的坡屋顶节奏。
▲幼儿园立面
设计将传统坡顶与现代感的体量穿插,虚实对比等手法融合起来。通过体块的水平与竖向错落,创造丰富的建筑形式和内、外部空间。同时,注重建筑的秩序与细部设计,外立面应用了金属直立锁边,来提升建筑的品质感。
04 技术图纸 Technical Drawings
▲社区中心一层平面
▲社区中心二层平面
▲社区中心南立面
▲社区中心剖面
▲幼儿园一层平面
▲幼儿园二层平面
▲幼儿园南立面
▲幼儿园剖面
END
项目名称:华侨城空港小镇社区中心与幼儿园
项目地点:安徽省合肥市
业主单位:华侨城集团有限公司
设计单位:上海联创设计集团股份有限公司
设计团队:创新设计中心 UDG 中国 / 大家建筑工作室
客服
消息
收藏
下载
最近























