查看完整案例

收藏

下载
铁狮门上海尚浦汇一期
Shanghai Shangpu Hui Phase I
“我们需要的是一种健康的生活方式。懂得如何舒服地行立坐卧。享受阳光、阴影、淋到身上的水、土地和所有难以清晰定义的感受。”
——约翰·伍重(Jørn Utzon)
项目位于上海杨浦区,一个发展迅速的繁华区域。地块内有地铁 10 号线和 12 号线的站点。设计积极回应复杂的城市环境,协调各方矛盾,力求建立起与周围的和谐关系。
同时,设计师以自然界“山谷”的型态为模板,在高密度,高容积率的城市环境中,创造出山谷般舒适、宜人的内向环境。层层叠叠的露台,布满郁郁葱葱的景观绿化,也如自然山谷般拥有丰富多样的植物,以及更多的阳光雨水。
LEED 金奖
中国绿建三星
除了型态上向自然学习,设计师通过对风、日照、噪音等环境因素的研究,调整出合理的建筑布局与型态,来创造宜人的微环境。同时,积极减少建筑对供暖、制冷、通风和人工照明的需求。项目还采用装配式建造,以及诸多达到绿色建筑标准的措施。项目获得中国绿建三星,以及 LEED 金奖。
项目概况
基地面积: 28781 ㎡
总建筑面积: 157491.62 ㎡
地上建筑面积:114731.94㎡
其中商业面积:11399.57 ㎡
其中办公面积:102458.57 ㎡
其中社会公共服务设施面积:404.52㎡
背景/愿景 Background / Vision
项目距上海市中心仅 8 公里;距虹桥国际机场 30 公里;距浦东国际机场 40 公里;距商业中心五角场北 1 公里;距上海自由贸易区 6-8 公里,有望成为整个杨浦区的新中心。
▲ F1 地块总体平面布置图
F1 地块是北部知识商务中心构建的核心区域,是副中心公共活动中心和空间景观的标志性区域,重点发展商务、商业、酒店等功能。
▲F1C 地块总平面图
本项目所在地块,F1C 是 F1 地块的一部分,为商办地块。希望打造成江湾区的城市地标。规划设计提出国际化、智能化、生态化商务中心的定位。结合已经开发投入使用的 F2/F3 地块,形成宜办、宜商、宜居的生态圈。
▲ 建筑群鸟瞰
项目希望在这个城市副中心,建立一个有活力、创造力的新社区环境,为这个极具发展潜力的区域做出贡献,让它成为创造和引领城市公共生活的新地标。
▲建筑群形象
链接城市 / 交通策略
Link City / Transportation Strategies
项目所在的大地块是由 3 条斜交的城市主干道围成的三角形地块。其中的几个地块都为不规则形状,且建筑密度,容积率都较高。设计首先要考虑的,是处理和周围建筑的关系,让建筑能有机地融入城市肌理中。作为有两条地铁线站点的高密度,高容积率城市开发地块,处理好交通流线是关键点。
▲建筑群鸟瞰
车行流线
F1C 三栋办公楼,各自拥有独立的上落客区,以及机动车坡道,其中包括一个服务用坡道,位于 2 号楼东塔。三栋办公楼的上落客区分别在基地的西侧、南侧和东侧。机动车坡道位于基地的西侧、南侧和北侧,同时两条自行车道位于基地西侧,1 号楼裙房处,与机动车道紧密结合。
▲车行流线分析
人行流线
项目地块,F1C 的人行主入口设在基地的四个角点部分。东南角为地铁 20 号线人流进入基地的主要入口;西南角为 F1 核心的人流入口;西北角可以通过 1 号楼的贯通大堂进入基地内部;东北角为 F2 居住区进入 F1C 庭院的主要入口。
四个方向的人流在基地中心汇合。三栋塔楼的大堂也均向社区开放,行人可以通过大堂,轻松进入到绿色庭院之中。
▲人行流线分析
与地铁 10 号线的连接
地铁 10 号线站直接与 F1 地块的 B2 层连接,将地铁人流直接导入项目。乘客到达地铁站台后,登上标高-6.08 的平台,再从车站中部,通道进入一个斜坡到达 F1 地块。B2 层标高为-4.70 米。当乘客进入地块后,先经过 B2 层然后可通过自动扶梯从 B2 至 B1,通过 B1 通道最终到达其余地块。
▲与地铁 10 号线的连接
与地铁 20 号线的连接
地铁 20 号线站直接与 F1 地块的 B2 层连接,将地铁人流直接导入项目。乘客到达地铁站台后,登上标高-14.30 的平台,再从车站中部通道,进入一个斜坡到达 F1 地块。B2 层标高为-4.70 米。当乘客进入地块后先过 B2 层然后可通过自动扶梯从 B2 至 B1,通过 B1 通道最终到达其余地块。
▲与地铁 20 号线的连接
作为新江湾城的门户,F1 地块将充分利用其优势:处于中心地带,与地铁相连,为市民带来更为丰富、宜人的步行体验,同时也给地下一层的商业创造更大价值。
▲建筑群沿街形象
融合自然 / 绿建策略
Blend Natural / Green Building Strategies
尚浦领世 F1 地块项目的定位是成为江湾新城的门户和城市中心,同时也将成为上海的副中心。项目旨在此打造一个更加可持续、健康、人性化的标杆项目,并把打造绿色建筑作为重要目标。
▲建筑沿街形象
建筑师围绕山谷的概念,用建筑阻挡城市噪音污染,提高空气品质,为项目打造一个舒适宜人的内部微气候环境。同时运用可持续性设计,进行整体规划,创造一个舒适宜人,吸引人停留的公共区域。
▲内部庭院
设计师并不仅仅是在技术上尽力采用符合绿色建筑要求的措施,在方案设计的初期,就对环境中的风、日照、噪音等因素进行详实的研究,并用于设计之中,配合建筑主创团队,对不同的体量设计进行专业的模拟计算,以调整出最合理的建筑体量布置,打造符合可持续理念的绿色建筑。
▲建筑露台
体量布置调整:
设计师依据对基地及其周围不同季节的风向、风量的分析,调整原方案中的体量布置,为在“山谷”内营造一年四季宜人的环境打好基础。
▲项目基地风向/风量分析
▲体量布置调整
体量调整深化:
设计师对建筑体量进一步优化:敞开东南角,迎接夏季吹来的东南凉风,提高基地内的舒适感。建筑体量的调整反映了多样化功能的需要,另一策略是提高了 F1 地块边缘的建筑密度。
建筑体量根据山谷的概念,层层退进,由此产生的露台和阳台,均面向内院,让使用者能充分享用午后的阳光。除了创造露台空间,建筑体量还将景观视线优化到最佳,使尽量多的办公空间面向 F1C 地块中心。
▲建筑体量/功能布置
夏季,内部的温度可比周边降低 4-6 摄氏度;峪内的公共空间拥有更好的日照。“山谷”阻挡了冬天从基地北侧来的寒风;同时在东侧敞开,迎接夏季吹来的凉风,形成了一种袋形的微气候。
▲项目日照分析
最终,围合的“山谷”能将基地的空气质量与周边相比,提高 10%-20%;内部的噪音水平将降低 30-40 分贝;一年中,“山谷”内适宜室外活动的时间将增加 2-3 周。
▲项目绿建风速评估报告
三栋建筑均考虑了使用者对工作空间的新需求:露台和可打通的楼板为通高空间和充足的日光提供了可能性。
▲内部庭院
绿色植物和开敞的首层布局构成了一个自由、通透的地面层,可吸引来自周边的城市人流,增强社区的活力。
▲“山谷”内部
除了微气候的营造,该项目也立足于设计愿景和性能必须同时兼顾。从大楼的能源供给上,设计师、工程师采用各种措施,积极减少对供暖、制冷、通风和人工照明的需求。
▲建筑局部
项目还采用装配式形式建造,减少能耗,及对环境的影响,并且采用 BIM 技术,确保工程效率。通过各方努力,项目最终获得中国绿建三星,及 LEED 金奖。
▲建筑局部
技术图纸
TechnicalDrawings
▲总平面图
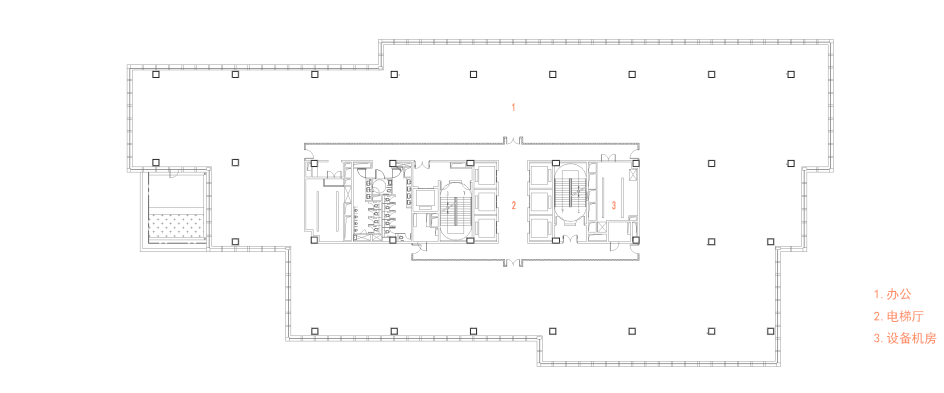
▲1#楼标准层平面图
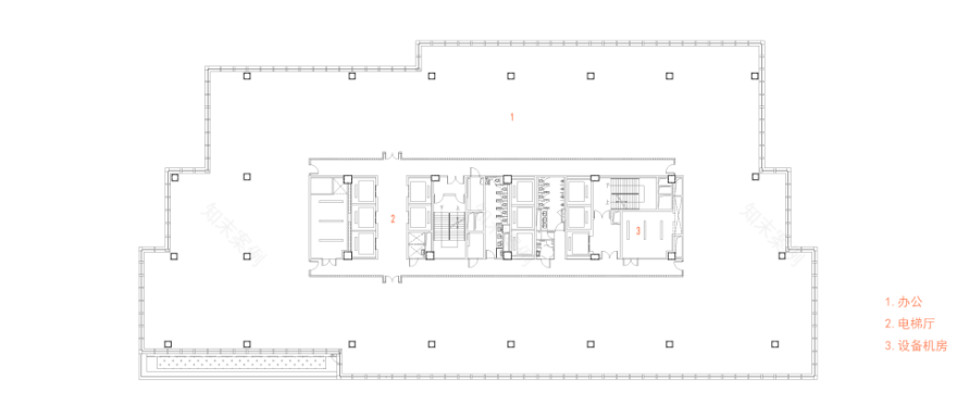
▲2#楼标准层平面图
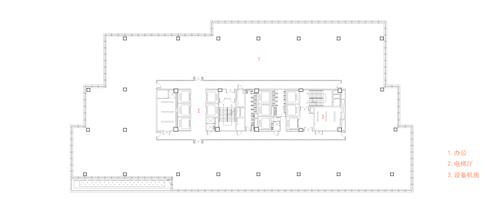
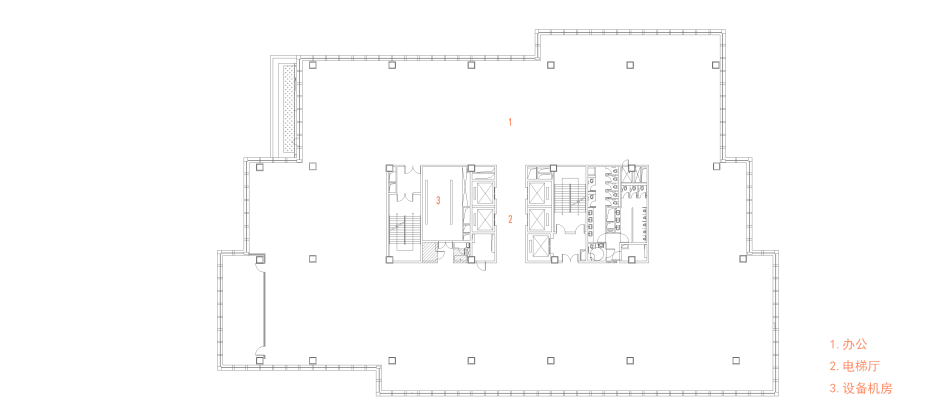
▲3#楼标准层平面图
▲ 1#楼立面图
▲ 1#楼立面图
▲ 2#楼立面图
▲ 2#楼立面图
▲ 1#楼剖面图
▲2#楼剖面图
▲ 3#l 楼剖面图
END
项目名称:铁狮门上海尚浦汇一期(新江湾城 F 区 F1 C 地块商办项目)
项目地点:上海市 杨浦区
建成时间:2020 年
业主单位:美国铁狮门集团
设计单位:上海联创设计集团股份有限公司
建筑团队:上海联创 商业建筑设计研究院
结构团队:上海联创结构二部
设备团队:上海联创机电二部
BIM 团队:联创设计集团 BIM 研发中心
合作单位:芬兰 Henning Larsen、SLA、奥雅纳 Arup、英海特 Inhabit、中建三局第一建设工程有限责任公司、MLEE 建筑摄影工作室
景观设计:
机电设计:
幕墙设计:
施工总包:
建筑摄影:
-相关阅读-
客服
消息
收藏
下载
最近

















































