查看完整案例

收藏

下载
武汉华中·中交城
Wuhan Huazhong·China Communications City
项目为中交集团华中区域总部基地,定位于世界级行业交流与贸易平台,希望成为经开区域地标性的办公商务建筑群,以及江城大道上的形象门户。
建筑采用化零为整,超大尺度,水平方向连续占满基地用地界限的建筑体块,加上 180m 的区域第一高楼,形成标识性极强的巨构,重新塑造、定义城市空间。
在巨大体量下,设计师以大悬挑钢结构桁架,大跨度钢结构连廊等方法,使建筑物以大跨度的悬挑、架空形成通透开放的空间,与城市相互渗透;以丰富的体量穿插变化;层次丰富的庭院空间;屋顶绿化与地面绿化结合的立体化绿化体系,营造融合城市空间,人性化的,能提供多种可能性的,新时代的”大院“。设计团队从设计到竣工跟踪服务历时 6 年,终于完成这个作品。
项目概况
用地面积:63000 ㎡
总建筑面积:269000 ㎡
建筑密度:≤30%
容积率:≤2.6
绿地率:25%
背景/愿景
ProjectContext
华中·中交城地处江城大道进入沌口经济开发区的门户地段,联接四新,经开两大区域。
▲ 区位图
用地紧邻武汉设计广场、永旺梦乐城、华中智谷、沌口总部基地等大型商业展览建筑,商业氛围浓厚。
▲基地分析
根据上位规划,项目用地位于“功能景观轴”东侧上,处于总部基地片核心区域,汇聚南太子湖企业总部片区及永旺梦乐城商圈资源。
▲ 周边各地块的详细业态分布
项目为中交集团华中区域总部基地,定位于世界级行业交流与贸易平台,利用这一区域定位高度,业主方希望打造经开区域地标性办公商务建筑群,主楼凸显于周边项目,成为江城大道上的形象门户。
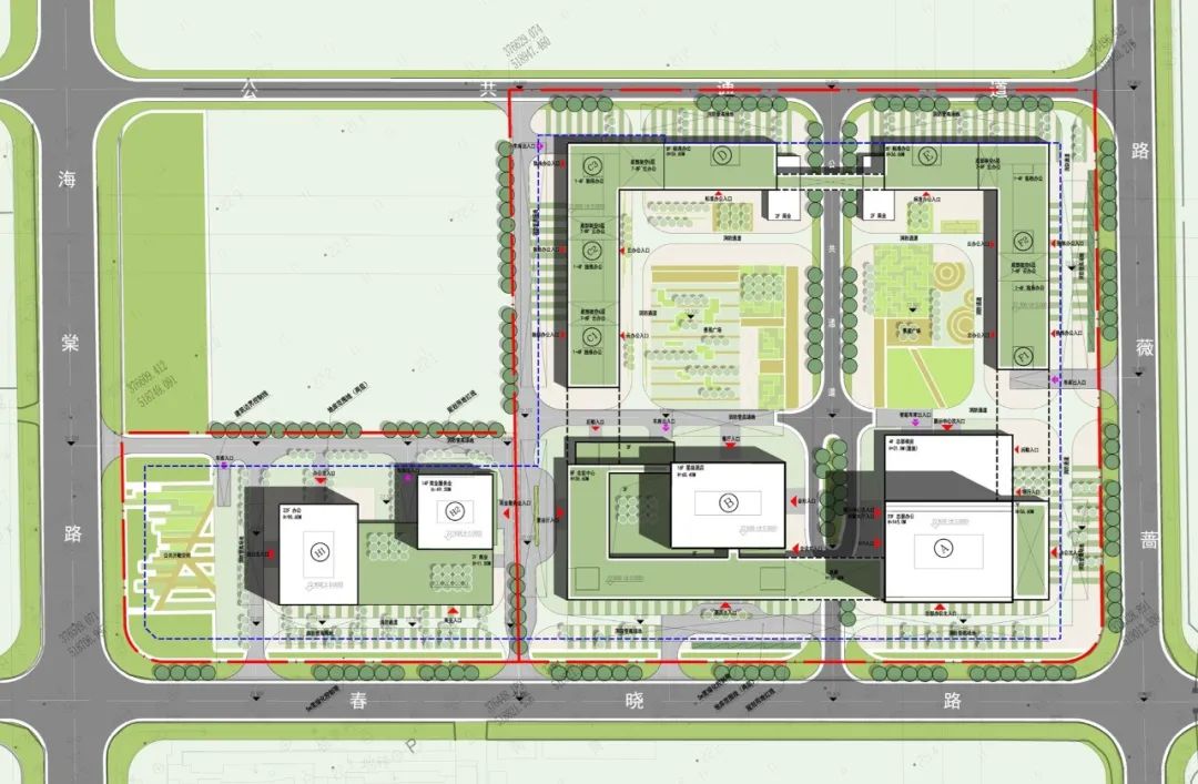
▲总平面图
超高层甲级办公楼形象高度突破 180 米,为经开区第一高楼。项目还包括一栋高层办公楼,两栋 8 层以下办公楼,一栋星级酒店,一栋商业服务楼。
▲ 建筑群形象
为了彰显南太子湖高端商务形象,构筑符合沌口总部经济区气质的高端商务综合体,设计需要塑造开敞空间,和超高层公建相结合的富有节奏感和韵律感的城市天际线。设计还希望能体现了中交集团“固基修道、履方致远”的企业文化。
▲ 建筑群形象
规划/布置
Planning/Layout
为了塑造区域的地标建筑形象,首先,规划布局未采用零散的鱼骨式布局,也放弃了花园尺度小、化整为零的组团式布局,而选择了化零为整,以悬挑、架空等手法,将体量感做到最大、最完整的方案。
▲ 化零为整的方案
接下来,需要确定体量布置。按照容积率、建筑密度的要求,纳入日照,城市界面,办公楼使用效率,结构合理性等多个维度进行比选,找出最佳体量布置方案。
▲ 城市视角分析
地块东南角距离地铁站最近且城市展示性好,办公价值最高。
地块东北角城市展示性较好,办公价值高。
地块西南角城市展示性好。
▲ 基地交通分析
地块北侧面对碧桂园商业街,商业价值较高。
·地块南侧与城市主干道有直接连结,商业价值高。
▲塔楼位置方案比选:江城大道视角
基于以上以及城市视角的分析,加上交通因素的分析,设计将企业超高层办公楼的位置进行了三种可能性的设想。
▲塔楼位置方案比选:太子湖北路视角
最终选择了方案二。塔楼采用高度 180m 的点式高层。塔楼和裙房沿周边建筑肌理方向布置,顺应并调和了周边较为复杂的城市肌理。
▲塔楼落位
同时,该方案建筑密度适中,沿街展示界面完整,变化丰富。围合成的完整的“大院”提供更多的空间可能性,为其中的独立使用者提供共享设施,创造丰富的、具有活力的办公空间,形成一个吸引人的环境和氛围。
▲建筑群鸟瞰
界定/融合
Define/Merge
巨构/新型“大院”提供多种可能性:
·创意产业需求的灵活空间
·适合创业公司的低廉空间
·具有生命力的建筑,可以进行高密度的新开发
·不同寻常的尺度、材料和植被
·新型公共空间,是创意园区新形象的核心部分
·为新事物和活动提供非同寻常的场所
▲ 建筑群鸟瞰
内外 / 层级
场地设计的原则是:边界建筑被设计成明确规整的体量,平行于城市道路布置,延续城市的肌理。
两条轴线将主地块划分为四大功能区域,而“融合”之圈将空间划拨为“内”“外”两层。外围建筑沿基地用地边界布置,巨大的尺度围合出连续、清晰的界面。内部建筑被设计成相对小的尺度且变化丰富。
▲ ”大院“的界定
内部流线基于清晰的道路系统和地块自身的形状,形成两条轴线。道路将中间的公共空间分为两个部分。考虑到空间的尺度,增加中心景观轴线,将空间结构重新划分梳理,形成四个院落。
▲”大院“空间结构示意
设计借鉴传统院落空间的空间界定、空间层级的建构原则,营造由公共逐渐走向私密的空间序列。
▲借鉴传统庭院的空间层次
公共空间系统创造了一系列有特色的场所,例如广场,绿化街道和花园;每一个都拥有其独特的空间效果。
▲内部庭院与建筑
场所的多样性使得整个项目更加丰富多彩,同时也不失清晰的层级脉络。多样性增加该空间的公共性,从而加强吸引力,鼓励人们停留使用,催生更多交流、互动,激发创造力。
▲内部庭院与建筑
连接 / 渗透
大院落空间内嵌套四个主题小院落,形成层层庭院、多层次的空间感受。同时,采取多种方法增加空间的相互渗透。比如,通过方形建筑廊架(大院)的连结,实现建筑功能的相互渗透、连接;通过内部庭院(四个小院)的彼此延续,实现景观空间的相互渗透。
▲内部庭院与建筑
一系列小的口袋广场,庭院和中庭结合场地创造了不同特点。这些小尺度空间是塑造不同公共区域的基础。
▲水平/垂直绿化网络
设计还通过垂直方向以及水平方向相互交织的绿化网格,使整个大庭院成为集社交、休闲、工作、展示为一体的复合中心。
▲ 巨大悬挑下的空间连接/渗透
建筑设计
Building Design
功能分布:
项目分为三大功能区:企业总部办公,星级酒店及销售型业态功能区。西侧 20 亩地设计为办公及公寓。
▲总体功能分布示意
东侧 74 亩地设计为企业总部办公及配套、星级酒店、商业配套、创客办公及公寓等多种功能的组合形态,打造多元、复合的办公环境,具有城市般的活力。
▲功能分布示意
多种功能穿插布置,提升园区活力。
商务配套主要沿内部空间布置。
而生活配套主要沿城市界面布置,兼顾面向城市的服务。
▲ 与城市交融的界面
在合理布置功能的同时,在商业部分注入丰富的文化娱乐、餐饮等城市生活,充分融入周边城市商圈,体验都市生活的活力与魅力。
▲功能分布示意
建筑形象:
建筑以大尺度、大跨度的手法,获得总部办公的标识性,同时延续周边的城市肌理,既与周围的建筑协调一致,又展现单体建筑的独特性。
▲建筑形象
建筑群内各主体建筑相互呼应,高低起伏,错落有致。底部通过大体量的裙房连接主楼及附楼,使得整个建筑群形成一个有机的整体。同时,整体嵌入 360 度云办公的设计理念,在空中穿插建筑体块,起到联系与共享的作用,使得建筑获得漂浮于云端的效果。
▲建筑形象
通过对立面设计的把控,打造星级高端酒店格调的建筑形象。面向春晓路及中央花园立面以大片玻璃幕墙为主,采用立面遮阳系统,以及虚实交错的对比效果。以灰、白色调打造现代、高端质感的建筑形象。
▲建筑悬挑局部
表皮采用竖向金属百叶、玻璃幕墙和铝板,结合体量变化,打造优雅挺拔的建筑形象。通过不同金属构件的布置方式,窗框的变化等设计手法,创造即简洁又有丰富细节的建筑。
▲建筑悬挑局部
塔楼以“竖向片状云层”为设计意向,立面以玻璃幕墙为主,采用古典主义的处理手法,形成柔和通透的建筑表皮。东侧及西侧立面采用铝板、玻璃构成的建筑遮阳系统,以及虚实交错的对比效果。设计用现代的形式表达节节高的寓意。
▲ 建筑局部
整个建筑通过精细化的设计流程及细致的节点处理,保证高完成度,展现高品质的现代化办公楼形象。室内设计也和外部形象一致,营造一种理性,精致,优雅的格调。
▲ 建筑细部
技术图纸
TechnicalDrawings
▲总平面图
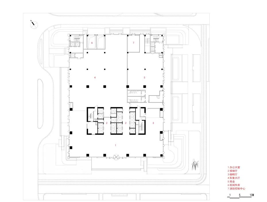
▲办公塔楼一层平面图
▲办公塔楼标准层平面
▲南立面图
▲东立面图
▲办公塔楼剖面图
END
项目名称:华中·中交城
项目地点:湖北省 武汉
建成时间:2021 年 7 月 1 日
业主单位:中交华中武汉置业发展有限公司
设计单位:全程设计 联创设计集团
设计团队:联创设计集团 上海联创 武汉新锐公司
施工图:联创设计集团 武汉新锐公司
景观设计:深圳市万漪环境艺术设计有限公司
室内设计:上海联创设计集团股份有限公司
软装设计:上海全筑建筑规划设计有限公司
灯光设计:深圳市杨邦胜室内设计有限公司
幕墙设计:上海联创设计集团股份有限公司
建筑摄影:厦门奇铃美辰艺术设计有限公司
-相关阅读-
客服
消息
收藏
下载
最近






















































