查看完整案例

收藏

下载
静安区曹家渡商办项目
Caojiadu,Jingan DistrictCommercial Office Building
“建筑是被约束在场所中的。我认为场地是一个形而上的桥梁、一个诗意的链接,联系起建筑物可以成为的样子。”——斯蒂文·霍尔(Steven Holl)
本设计充分考虑场地环境、各方诉求,寻求成为场所的一部分,嵌入环境,有机地融入城市机理;充分利用城市资源、活力,链接城市生活,与城市形成良好互动;以简洁的形象、优雅的比例,精美的细节,为繁华都市增添亮色。
项目概况
基地面积: 3790 ㎡
总建筑面积: 17955 ㎡
地上建筑面积:13265 ㎡
其中商业面积:2504 ㎡
其中办公面积:10565 ㎡
地下建筑面积:4690㎡
项目背景
Background
基地所在的曹家渡,地处静安、普陀、长宁三区交界,凭借其独特的地域优势及苏州河自然景观资源,成为沪西地区重要的交通枢纽及商业副中心。
▲ 区域位置
曹家渡商圈受静安寺、中山公园、长寿路三大商圈辐射影响,采取差异互补、错位竞争模式,以国际个性化、特色化品牌为主,成功打造集娱乐休闲一体的体验式商业中心,使其迅速成为区域商业发展的后起之秀。
▲ 区域商圈
项目区位条件极为优越,区域内有梅龙镇广场、中信泰富广场、恒隆广场等众多高端商业商务楼宇。静安区还将大力推进曹家渡商圈等项目的建设,协助南京西路,进一步巩固静安的城市中心地位,吸引更多的大规模国际企业和管理层常驻静安。
▲基地周边环境
基地位于曹家渡商圈南侧,周边商业以差异互补式商业为主,并拥有周边居住人群、办公白领人群、交通中转人群等多样化目标消费人群。
▲办公入口处
本案商业定位为:依附曹家渡商圈及周边住区,以“年轻家庭式消费”等特色商业及配套商务服务为主,使商业既能给周边居民生活注入新的活力,又能服务到商圈内其他消费人群。
周边办公主要以悦达国际大厦、KING88、海森国际为主,将吸引众多办公企业入驻。
本案办公定位为高端商务办公楼。
▲商业入口处
总平布置
Master Plan
设计首先要考虑的,是处理和周围建筑的关系,令新建建筑能有机地融入现有城市肌理中。
基地周围建筑以商业、办公为主,有部分住宅。北侧紧邻 7 层办公建筑,六层住宅和社区卫生中心,东侧为七层曹家住家居商城,南侧为 26 层的君子兰公寓,长宁路从基地西侧通过,为基地与城市的唯一接口。
▲ 周边环境
体量排布:按照容积率、建筑密度的要求,纳入日照,城市界面,办公楼使用效率,结构合理性等多个维度进行比选,找出最佳体量布置方案。
▲方案比选
最终选择了方案 D。塔楼采用高度控制在 50m 以下的点式高层,并且沿周边建筑肌理方向布置,顺应并调和了周边较为复杂的城市肌理。该方案建筑密度适中,城市界面较完整,标准层面积合理高效,并且适合创造丰富的办公空间。
这个布置选项需调整体量轮廓以减少对后面建筑的日照影响,同时,该体量比例需要更多的处理手法以达到理想效果。
▲方案比选
车行流线:机动车出入口设置在长宁路,汽车出入口设置在建筑东南面;非机动车的出入口设置在长宁路位于地块东面,内部出入口设置在建筑东面。
人行流线:人流组织主要从长宁路进入商业区、办公区域。商业和办公主入口面向城市展示面。商业入口位于西北侧,设置 300 平方米的集散广场,满足商业人流的出入。商业空间围绕两层通高中庭布置,形成环形流线。商业流线简洁有效。办公主入口位于地块西南侧,经过独立的下客区,进入两层通高的办公大堂。
▲建筑入口处
建筑生成
Building Design
体量生成:
方案依据 80m 规划限高等规划要求,同时考虑北横通道从基地下穿通过对结构荷载的不利影响 ,采用小高层的体量。
▲ 建筑生成
为满足日照要求,靠地块南侧 11 层塔楼横向划分为 3 个体块,通过体块的错动、叠加,获得丰富体量变化,使建筑形态富有动感。同时,形成露台,将室外空间融入室内设计,营造良好的微气候环境。
▲ 建筑生成
体块错动形成的露台,也为办公空间在寸土寸金的中心商圈争取到宜人的室外空间。
在布满绿化的室外空间,与自然紧密接触中,欣赏城市美景,与城市产生更深的连接。
▲从露台看城市
功能分布:
地上部分:
1 层主要为商业,部分为办公入户大堂、门厅及配套用房;
2 层主要为商业,部分为办公交通核心筒;
3~12 层布置大开间办公。
地下部分:
地下二层为汽车库,部分为人防区域;
地下一层为汽车库、非机动车停车、设备用房。
▲功能分布示意
在合理布置功能的同时,在商业部分注入丰富的文化娱乐、餐饮等城市生活,充分融入周边城市商圈,体验都市生活的活力与魅力。
▲建筑沿街形象
建筑形象:建筑以简洁的形态和丰富的变化,获得总部办公的标识性,既与周围的建筑协调一致,又展现单体建筑的独特性。
▲建筑表皮的不同处理
立面的处理呼应环境。面对沿街道路面开敞通透,都市繁华尽收眼底。靠后侧,用百叶围合界面,隔离杂乱环境的干扰。
▲竖向百叶细部
表皮采用竖向金属百叶、玻璃幕墙和印刷玻璃,结合体量变化,打造优雅挺拔的建筑形象。通过转角的变化,面和面的过度、衔接、上下层次的变化、不同金属构件的布置方式,窗框的变化等设计手法,创造即简洁又有丰富细节的建筑。
▲建筑入口处
整个建筑通过精细化的设计理念及细致的节点处理,提高完成度,展现高品质的现代化的办公楼形象。室内设计也和外部形象一致,营造一种理性,精致,优雅的格调。
结构策略
Structure Strategy
本项目面对的一个挑战是,基地下面有北横通道穿过,不可避免的将对本项目有较大影响。主要体现在盾构穿越时对土体产生的变形和振动。对此,设计采取单体承载靠桩,基础底板释放土体的直接基底反力的方法,来减小盾构施工带来的土体变形和振动影响。
▲地下室包含北横通道处转换剖面图
控制结构沉降:
控制桩基础的单桩桩底进入⑨层灰色粉细砂层,对基桩的桩端进行后注浆加强,可控制沉降数值较小。
控制基底附加应力:
在基础底板下设置 100~300 厚软垫层,释放施工及初期沉降带来的底板变形和土体反力。
基础拟采用桩+转换厚筏板基础
即在北横通道两侧设置钻孔灌注桩来作为单体主结构柱下转换筏板的支座;北横通道处柱网下采用筏板转换。
▲抗压桩+梁板式筏基
北横通道处柱网下采用筏板转换,即在北横通道处上方单体基础位置,设置双向加强的转换筏板进行转换,增强全楼基底刚度,确保转换范围内主体结构的安全。
▲ 双向加强的转换筏板
施工措施上采取基础地下室先施工到正负零,盾构再施工穿越,此时单体上部结构可减缓施工,待盾构施工结束后,上部结构再正常施工,可避开施工中带来的相互干扰。
技术图纸
TechnicalDrawings
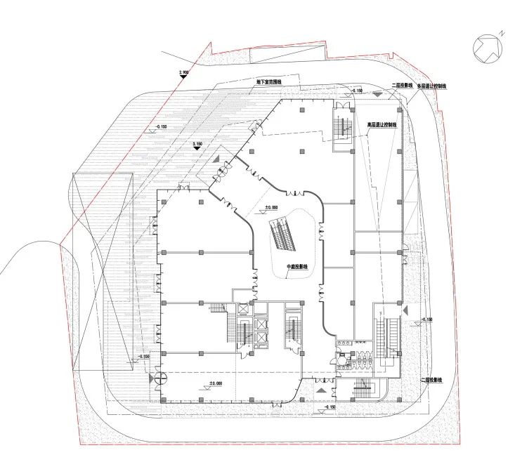
▲总平面图
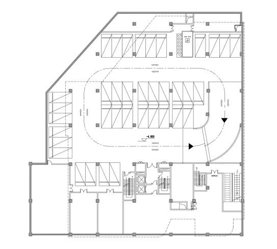
▲地下一层平面图
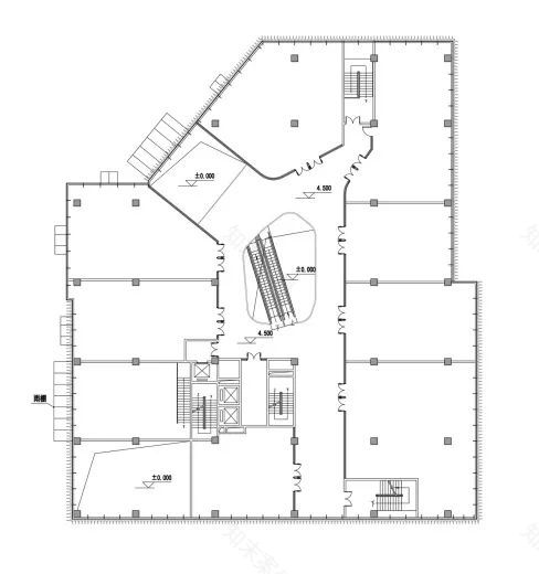
▲ 一层平面图
▲ 二层平面图
▲ 三层平面图
▲ 四,五层平面图
▲六,七层平面图
▲九,十层平面图
▲ 西立面图
▲ 北立面图
▲东立面图
▲ 剖面图
END
项目名称:静安区曹家渡长宁路 113 号地块商办项目
项目地点:上海市 静安区
建成时间:2019 年
业主单位:绿地集团
设计单位:上海联创设计集团股份有限公司
建筑团队:联创集团 创新设计中心/UDG 中国/上海联创 商业建筑设计研究院
结构团队:上海联创结构二部
设备团队:上海联创机电一部
泛光设计:上海麦索照明科技有限公司
室内设计:素木(上海)建筑设计工程有限公司
幕墙设计:上海结宇建筑设计有限公司
建筑摄影:MLEE
-相关阅读-
客服
消息
收藏
下载
最近












































