查看完整案例

收藏

下载
#
繁·华·隐·逸
遇·见·相·城
本案坐落于历史悠久、人文荟萃的“相城”淮北。整个售楼处的设计取其淮北文化和精神文化,以视觉、听觉、嗅觉、触觉为设计原点,将这些文化内容物化,形成文化符号全部融入此空间中。在这里,于繁华之中,遇见历史,遇见文化。
色彩以大地色系为主,一种稳重、精致细节的现代人文气质油然而生,局部点缀跳跃的橘色,增加流动的色彩与生机感。
△接待
前厅
空间的线条、材质、体块的交融,呈现出一个极简的框架,既传承了东方传统文化设计韵律,又融合了现代元素与当地文化,给人简洁通透、阔达包容的初映象空间。
△沙盘区
暖灰色的橡木饰面,缓缓拉开本案的序幕,一种稳重、精致细节的现代人文气质油然而生。高低错落的水晶圆形灯点缀在沙盘上空,好似山峦叠复,为空间增加了流动的生机。
△洽谈区
“禅文化”衍生出符合现代审美的东方美学空间,带来身临其境的体验感。第一入眼的艺术装置,好似水做的飘带,从顶部水纹缓缓落下,轻柔相拥。
△洽谈区
洽谈区以石材、金属,及山水布艺等多元素相结合,通过穿插在空间内的变化,体现了固有的淮北文化韵味和空间的律动,营造出独有的格调和艺术情愫。
△书吧
书吧以中轴对称,层层递进的空间序列展开,见上方漫天数灯,如一颗颗水珠光影斑驳,滋养这一棵破土而出绿意盎然的知识之树,溅起精神的火花。触觉与功能巧妙融合,井然有序,优雅与艺术不期而遇,恰似自然的馈赠。
△VIP室
整体线条简洁,以高级灰和暖棕作为主色调,或浅或深的棕色点缀质朴本质,日升月落的艺术装置勾勒出自然的魅力,并且用少量金属质感的介入,彰显细腻、精致,以超然物外的格局态度,营造高级内敛的商谈氛围。
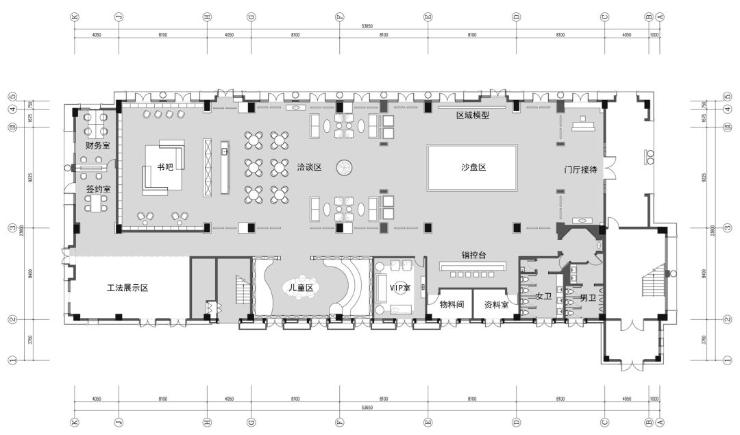
△平面图
项目名称
|淮北理想城售楼处
项目地点
|安徽淮北
项目面积
|876㎡
开发商
|淮北国安濉投置业有限公司
设计单位
|上海禾悉建筑设计有限公司
完工时间
|2019年12月
摄影
|张大齐
END
往期精彩作品回顾
点击作品图片,回顾详情精彩
△临沂鲁商万科新都会售楼处
点击作品图片,回顾详情精彩
△青岛金地锦宸售楼处
点击作品图片,回顾详情精彩
△金地杭州都会风华售楼处
点击作品图片,回顾详情精彩
△招商弘阳杭州随塘售楼处
禾悉设计是一家致力于为建设、开发项目提供决策支持和服务的专业室内设计公司,室内团队脱胎于新加坡悦榕庄酒店集团的核心设计师。服务的客户,既有悦榕庄、万科、金地、保利、世茂、绿地、龙湖、碧桂园、景瑞等,这样的全国性一线房企和酒店集团,也有华夏幸福、新城集团、东原地产、中交地产、弘阳地产、祥生地产、海尔地产等快速发展的房企。行业经验涉及各类居住产品(多层、高层、别墅、联排、合院等)及大型规划、城市综合体、酒店、商业等众多领域,在高端酒店,别墅,样板房等方面拥有市场领先优势。
客服
消息
收藏
下载
最近
























