查看完整案例


收藏

下载
©Shigeo Ogawa
开放式计划更新:在东京的郊区,这个住宅发现自己处于乡村之中,周围是田地和散落的建筑。场地面积近 300 平方米,对于一个小型住宅来说绰绰有余。当我第一次参观这个场地时,我脑海中立即出现的想法是,一个开放式的单层住宅会很适合这个环境。
© Shigeo Ogawa
© Shigeo Ogawa
当然,周围的环境将经历城市化和快速变化。考虑到这个未来的形象,我想半开放式的矛盾风格可以适用于东京郊区的这个杂乱无章的乡村。半透明金属墙的外圈将部分阻挡外面的视线,而透明玻璃的内墙,中间有一个几乎不是花园的室外空间,将作为一个“缓冲区”,以适应周围环境的未来变化:这些元素形成了我对开放式建筑的概念,它被外层的所谓双层皮包裹着。
© Shigeo Ogawa
© Shigeo Ogawa 从结构上看,它是一个以木质椽子为主要结构材料的木质结构。工厂生产的、现成的材料被用于所有其他部分、室外平台和墙壁,以确保作为一个建筑的功能。同时,我的目的是通过“温暖”的木质结构和“凉爽”的工业产品的对比来创造一个室内“风景”。
© Shigeo Ogawa
© Shigeo Ogawa
同时,这些想法让我想起了一个特殊的场景。那是理查德-诺伊特拉 1937 年完成的“斯特拉斯莫尔公寓”的照片。而这不是建筑本身,而是当时洛杉矶的背景风景。这座建筑位于韦斯特伍德。背景中的西木区与现在的绿意盎然的地方完全不同。我很震惊地看到它就像一个沙漠,只有灌木在这里和那里生长。
© Shigeo Ogawa
©Shigeo Ogawa
我还记得,现在的洛杉矶充满了绿色和树木,实际上是人工创造的自然,这要归功于从附近的州连接起来的人工水道。迅速变化的环境,也就是说,洛杉矶的人造风景,使这群被称为“案例研究房屋”的开放式单层房屋从 20 世纪 50 年代开始建造。通过这个项目,我梦想在 21 世纪设计一个东京版的案例研究住宅,设计一个可以在东京郊区建造的开放式单层住宅。
© Shigeo Ogawa
© Shigeo Ogawa
© Shigeo Ogawa
©Shigeo Ogawa
© Shigeo Ogawa
© Shigeo Ogawa
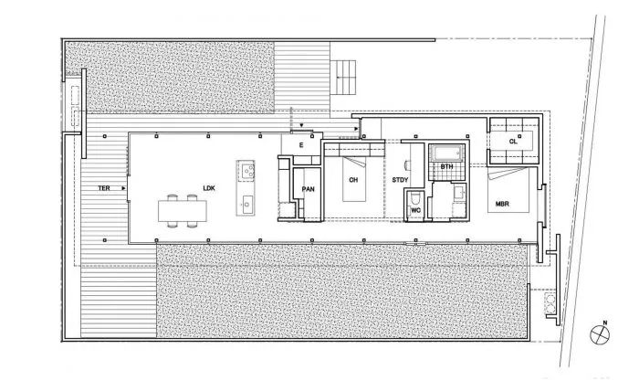
©Shigeo Ogawa 项目图纸
▲平面图
轴测图
▲ 立面图
▲剖面图
▲区位图
项目信息
建筑师:Waro Kishi + K.ASSOCIATES/Architects
面积:103 m²
年份:2021 年
摄影:Shigeo Ogawa
施工:Eishin Construction Co., Ltd.-Masaaki Sakai
结构设计:mnd-Yoshiki Mondo
设计团队:Waro KISHI, Ryosuke SASAKI
城市:Saitama
国家:日本
赞
客服
消息
收藏
下载
最近






















