查看完整案例


收藏

下载
“白”不仅是一种颜色。“白”必须称为一种设计理念。
相比已经超越了固态办公形式的开端,如今未来性办公空间也成为增长最快的全球职场改革运动之一,但这种未来性面临着是更多负荷和需求,打破,定义与重组。
Compared with the beginning of solid-state office, futuristic office space has become one of the fastest growing global workplace reform movements, but this futurity is facing more load and demand, breaking, defining and restructuring.
△ 办公室手稿
设计是对差异的控制。但做过了很多的项目后我才明白,好的项目不是很炫耀的项目,而是真正的适合客户,他所认为的好,这里包括,审美,预算,时间,使用方式等等。接下来要看的案子在设计眼里肯定是最普通的一案,但是在超有限的预算和时间里,当我把需要的材料摊开,我选择了白色。
Design is the control of differences. But after doing a lot of projects, I realized that good projects are not flaunting projects, but really suitable for customers. What he thinks is good, including aesthetics, budget, time, usage and so on. The next case to look at must be the most common one in the design eyes, but in the ultra-limited budget and time, when I spread out the materials needed, I chose white.
项目地址 | Address:天津 融侨中心
设计单位 | Design:弥尔软装设计
设计主创 | Designer:高云皓
软装产品 | Software products:弥尔采购
视觉表现 | Designer:高昀图言表现
摄影制作 | Photography:辰吾 寇宇华
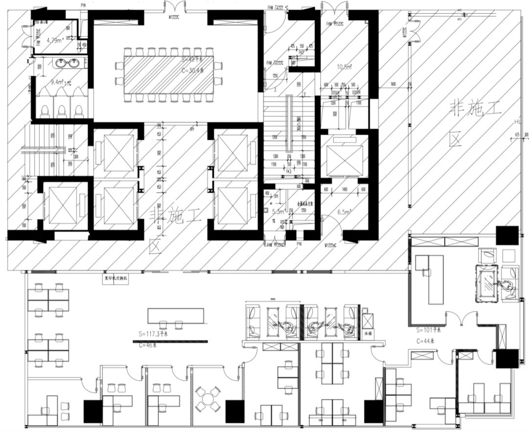
▽平面规划图 | Plan
室内墙面、地面、顶棚以及家具陈设乃至灯具器皿等均以简约的造型、纯洁的质地、精细的工艺为其特征。尽可能不用装饰和取消多余的东西,任何复杂的设计,没有实用价值的特殊部件及任何装饰都不需要。
Indoor walls, floors, roofs, furniture furnishings and even lamps and utensils are characterized by simple shape, pure texture and fine craftsmanship. As far as possible, there is no need to decorate or eliminate superfluous things, any complex design, special parts without practical value and any decoration.
☏ 前台
在满足办公空间功能需要的前提下,将空间、人及物进行合理精致的组合,用洗练的笔触,描绘出丰富动人的办公空间效果,这是办公空间简约设计艺术的境界。
On the premise of meeting the functional needs of office space, reasonable and delicate combination of space, people and things, and rich and moving office space effects are depicted with washed strokes, which is the realm of office space concise design art.
☺会客区
不纠缠于琐碎,用极简的设计阐释空间美学,去繁就简剔除多余的装饰元素,用最直白的设计语言营造新办公空间体验氛围。空间实现自我演化,是改变传统办公模式与空间形态的过程,是让它更贴合未来企业发展与升级的体验需求,也是一个企业的视野与姿态。
Not entangled with triviality, space aesthetics is explained with minimalist design, redundant decorative elements are eliminated from the complexity, and new office space experience atmosphere is created with the most straightforward design language. Space self-evolution is a process of changing the traditional office mode and space form, making it more suitable for the future development and upgrading of enterprises, and also a vision and attitude of enterprises.
♧总经理办公室
空间本质在于关系与情感,前者出于逻辑,后者出于感性。
The essence of space lies in relationship and emotion, the former is based on logic and the latter is based on perception.
☼办公/会议室
“白”不仅是一种颜色。“白”必须称为一种设计理念。
特别鸣谢 | Special Thanks
家具定制 | 杨总
13012232511
客服
消息
收藏
下载
最近

















