查看完整案例


收藏

下载
NATURAL GROWTH INTERIOR DESIGN Colorful black
━━━━━━━━━━━━━
项目介绍
这是一个顶楼复式结构的户型,以下是我们发现并解决的几个问题。
1. 原始楼梯的位置空间相对较小,为了扩宽楼梯踏步的宽度,在设计楼梯扶手上使用铁管侧面焊接、喷漆的形式。同时增加了楼梯的设计感,扶手自上而下,逐渐递增,楼梯侧墙面、顶面涂刷黑色乳胶漆,增加视觉的延伸感。
2. 取消北卧室空间释放为西厨餐厅,将卧室功能移到楼上。让餐厅使用起来更加开阔。
3. 二楼北原为室外露台,通过钢骨架搭建,变成室内。最北侧设计成洗衣房加燃气热水器位置。露台内侧设计成开放式书房加衣帽间。
4. 二楼走廊区域依然有水吧台饮水点,在别墅复式结构住宅中,水吧饮水点的设计提前考虑到,这样会更加方便使用。
项目照片
-01- 客厅
-02-
餐厅
-03- 厨房
-04-
一楼卧室
-05-
一楼卫生间
-06-主卧室
-07- 楼梯
-08-书房
-09
儿童房
-10
2 楼卫生间
━━━━━━━━━━━━━
项目介绍
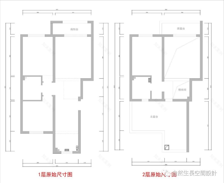
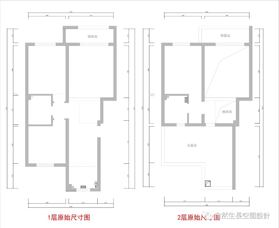
-01-
原始尺寸图
-02 - 平面改造图
设计说明
1. 本案的设计亮点之一,是楼梯处的楼梯扶手与墙面黑色之间的呼应。黑色是无止境的颜色,墙面上有几个不同姿态的小人,向上攀爬,这个小人也代表我们每个人,不断攀登的勇气与力量。
2. 将楼梯与卧室之间的墙开一个圆洞,定做的油漆半圆形窗口,内嵌透明玻璃,五彩斑斓的颜色是贴的变光膜,既达到了隐私的效果还增加了美感,在不同角度营造出不同的色彩感觉。
3. 楼梯处墙面还悬挂了一副油画,画中 2 只小鸟互相倚靠,是设计师找的素材让画室画的,也是送给一对男女主人的美好祝愿。
4. 主卧室设计背景选的是雪山的造型,作为床背景。寓意是有靠山,红色飞机代表梦想,自由翱翔。
设计一个房子好看的方式有很多,在柴米油盐中找到高于烟火气的精神诉求是我们工作的内容。向上攀爬的小人,相互倚靠的小鸟,有靠的山峰,翱翔的梦想。都是我们想给这个家赋予的设计之外的美好寓意。
设计团队
自然生長空間設計 /Natuanl Growth interiorDesign
设计师:顾浩
撰文:GUHAO
摄影:亮子
图片版权:Natuanl Growth Interior Design
©原创内容,不支持任何商业盈利形式的盗用,翻版必究!
客服
消息
收藏
下载
最近









































