查看完整案例


收藏

下载
设计
主创团队
刘
翊、谢
仪
刘 翊
中国贸促会商业委员会
创意设计产业发展
中心理事会常务理事
中国建筑装饰协会环境艺术分会专家委员
上海国际设计周艺术总监
中国建筑装饰协会高级室内设计师
ICDA国际建筑装饰室内设计协会注册高级软装设计师
AMAC注册高级全案设计师
汇美艺术装饰工程有限公司创始人
谢 仪
国际建筑装饰室内设计协会(
ICDA)高级室内设计师
中国建筑学会室内设计分会
(CIID)高级室内建筑师
01
如何打破常规
构建一种全新的办公模式?
为适应业主对公司多样的功能需求,设计师打破传统办公室的空间界线,以「城市客厅,私享办公」为出发点,将整体空间打造为多样化的共享办公型态,创造一种特有的将工作、生活、艺术、与商业等等多维度空间融合的气氛,创新思维重新定义空间的使用界限,让生活与工作在此进行交流与共鸣,产生一种独树一格的设计模式。
「城市客厅」不同以往针对个体的共享办公模式,不刻意植入过于独特的工作型态,而是根据业主需求,定制出适合以公司为单元的共享空间型态
,
让企业能在此自由的进行私密与共享间的交流与切换
。
02
量化需求
复合场域
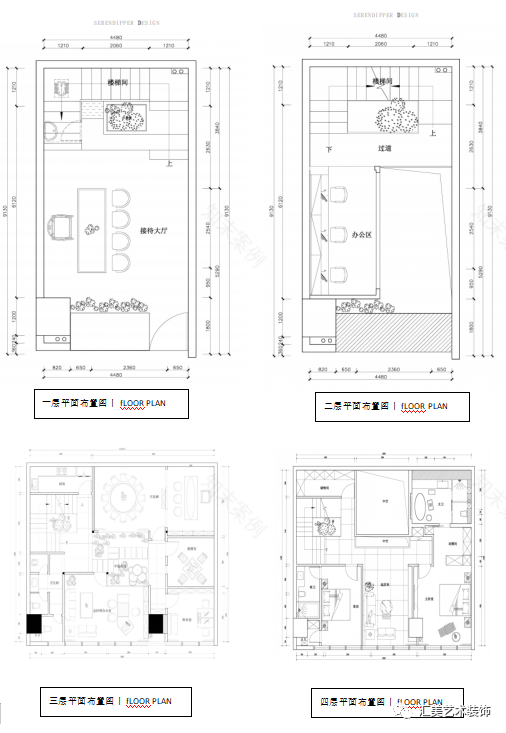
设计师将该空间分成截然不同却又紧密相连的三个部分,一是作为商业接待的公共空间,二是作为办公、休闲的活动空间,三是独具休息功能的私享空间。三个空间根据结构与楼层进行分布,在做到划分职能区域的同时,将各空间有机结合,循序渐进,形成浑然天成的一个整体。
一楼主体以白净素雅的基调与微水泥砖构建地板为基础,结合金属板、玻璃、线性灯等材质元素,在装饰布景中又融入了植物的灵动性,在既有建筑体内呈现一种清新多元的体验。大厅作为空间的入口,可同时作为接待及商务会谈的空间。宽阔且明亮的设计氛围更利于打开不同诉求的交流与沟通,桌面的绿植也也扮演着积极正面的社交角色,设计师以缜密计算营造出舒适的空间,理性量化后的空间译为感性自然。
一段段时代感十足的叠级楼梯贯穿整个空间,这条主动线充满层次的细节处理成为整个空间中不可忽现的焦点。这个小小的办公区域选用了相对简约的颜色与设计,却在细节中透出俏皮的玩味。不规则的吊灯与正红色的木制细节相互照应,使整个设计既富有现代质感,又不失灵动的韵味。中空区域以吊灯连接一层、二层,延续了会客区的主色调,将两个空间巧妙地分隔开来,又互有交流。
03
无需盛装
自有精致
在三楼,设计师将艺术气息以一种温和的方式融入空间。红色作为线索串联起空间的主调,精心购置的艺术品(确定后可加上作品名称及品牌)坐落在空间一角,与绿色遥遥呼应。绿植景观旁拱形门洞造型带来明亮的户外视野,整个街景纳入拱门,仿佛嵌入画框的作品。朴拙的空间安宁而低调,完美地过渡室内外。
虽为董事长办公室,此处空间却摒弃沉重的、华丽的设计,尽情接纳自然的恩赐将景观与绿植引入室内,整面落地窗毫不吝啬的接纳最大分量的采光,精心配备的私人会客区解决了董事长的临时谈话需求。创造了一个宁静舒适、充满艺术氛围的空间。
三楼空间在布置办公区域的同时,设计师不忘置入了一个集休闲、商务为一体的包厢。沉稳大气的圆桌与精致木雕花格的挑选不仅融合了中式的典雅,更与软装金属吊灯相搭配,突出了整体空间的现代中式设计感,不失为艺术与实用有机结合的典范。
04
化繁为简
回归生活
四楼空间集会客、休闲、休息为一体,脱离了主题色正红搭配中性的色系,似乎是设计师的一点小小的私心与反叛。此空间以浅色打造了清淡柔软的居家风格,但布艺、原木等又在处处彰显着毫不含糊的精致品味,保持了恰到好处的存在感。沙发后挂着一幅画家名作,在简洁的笔触之下,共建一种徜徉不倦的舒适日常氛围。
设计师利用大量深棕色调的木制品来构架主卧空间,营造一种沉稳平静之感,使人心绪平静。在主卧室中,白色大理石背板作为电视墙点缀在空间中作为提亮,一件作品放置在墙边柜上,在背景凸显下,精心挑选的画作更显珍稀。空间整体营造了安静、放松和柔软的氛围,贴近生活并契合主人的休闲享受。
设计是什么?设计是把工作还给生活,将艺术融于生活。设计是打造舒适,迎接美好。「城市客厅」正是这个问题最好的答案。
客服
消息
收藏
下载
最近












