查看完整案例

收藏

下载

翻译
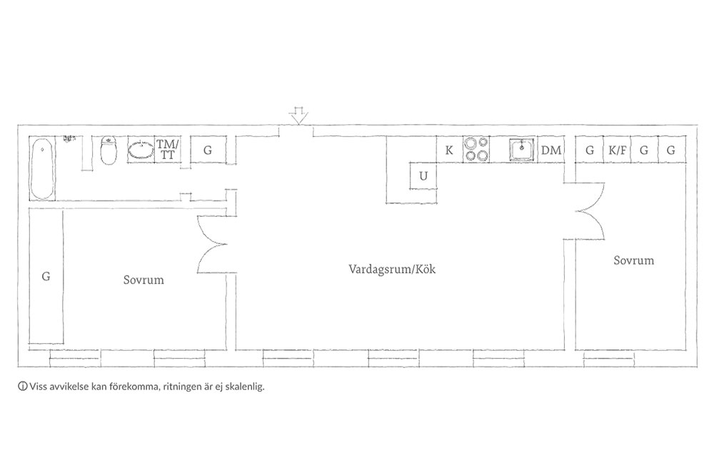
This Goteborgapartmenthas a rather unusual layout and distribution of spaces. Right from the entrance, you immediately find yourself in the main space of the living room, kitchen and dining room, which is zoned only by furniture. It is also a passage room from which you can get into both bedrooms – there are no corridors here at all. Despite the rather modern layout, stunning classic details catch the eye – elegant stucco molding on the ceiling and a magnificent door portal to the kids room have become a real decoration of this home. Enjoy!See also:Moscow apartment in dark tones with stucco
客服
消息
收藏
下载
最近































