查看完整案例


收藏

下载
W&M
原创
实景
案例
有人喜欢热闹,有人喜欢安静,有人喜欢质朴原生态,而我们偏爱酒店的精致感,设计感强烈,舒适性佳,令人愉悦。
——业主 常女士
项目地点:四川蓝山湾
竣工时间:2020 年
合作方式:硬/软装设计+施工
空间摄影:窦强
品牌支持:檑洛丽特全屋定制、圣象木地板、梦天木门、大金空调、依诺瓷砖、怡口全屋净水、皇派门窗等
一千个人眼中有一千个哈姆雷特,每个人对于生活方式的理解,追求的个性化都不一样。本案业主夫妇对私宅的设计要求除了干净、整洁、舒适以外,更加注重的是视觉上的审美:既想要有酒店式的多功能舒适设计,又想有别具一格的设计样式。
因此,我们以高端酒店“方便、精致、舒适、关照”的特征作为整体设计的初始方向,结合“家”对功能、动线、灯光、私密性、社交属性等更为细微的需求,为屋主做了专属的,兼具健康、舒适和适当高级感的私宅规划设计:把酒店生活方式带回家!
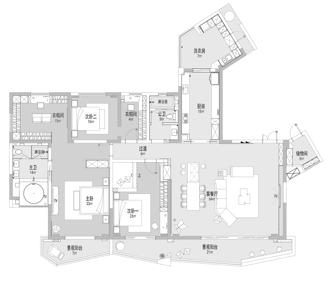
▪ 原始户型图
▪设计布局图
贰 佩自由空间,移动随心。在整个客厅(Living room)区域的打造中,设计师摒弃了众多浮夸的设定,通过美学深化尽可能地融入实用主义的基因,色彩基调多以自然大地色、高级灰色系为主,再配上富有视觉张力的金属元素和橙色系提亮,视觉上整体和谐大气,细节又足够精致可玩味。随处可见的美,随时可得的生活乐趣。
可移动的家居后续还可以随时根据需要重新对空间进行拆分、组合,使用起来自由高效。“家是心之所在地”,无限的空间意味着无限的生活。
餐厅(Dining room)别于传统的设计,不再进行明确的界限划分,而是连同西厨岛与客厅连接为一体化设计(LDK),有序铺陈但又融合在同一片开放区域。功能上更加年轻多样化,公共空间更好地利用起来,视觉上则更加通透,更便于家人之间的互动。
西厨岛台与餐桌相连接,不仅带来视觉上的错落趣味,也为日常烟火带来更多情感互动的可能性。性格开朗、直率的女主人是地道的北方人,对面粉的感情情有独钟,会做很多手工面食。每逢得空便愿意为家人露一手。这一处岛台,也让孩子们更愿意参与其中,幸福便在这日常互动中积累蔓延,将房子浸润成家。
中厨(Kitchen)是四川家庭日常烹饪的刚需区域,所以设计师依然做了精心设计,收纳和功能最大化满足家庭需求。玻璃推拉门的使用,让厨房作业的时候既可完全连通无碍,也能隔而不断,更多互动,更多愉悦。
“从客厅通往卧室的过道(Corridor)过长,令人不安”,这是屋主反复提及特别在意的房屋缺陷。设计师将这个问题解决得极其巧妙。
将通道尽头的主卧室墙往客厅方向挪到与次卧齐平并开墙设置入口,另一个次卧的入口改为通过衣帽间进入。这样一来通道长度变得更为合理,且不影响其它房间使用面积。主卧室还获得了更大的面积。进门正对一幅彩色艺术挂画,既是主卧室专属的仪式感,也为通道增加了视觉焦点和惊喜。
叁
多功能变化,营造各有氛围
屋主父母每年会来家里住一段时间,所以设计师将男孩房(Boys room)设计为多功能亲子房,除了正常的床,还做了带楼梯的榻榻米。这里是兄妹搭帐篷玩露营游戏的娱乐区域,父母来时,也可以很好地解决居住问题,一房两用。
主卧室(Master bedroom)设计则在暖灰色的基调中增加了温暖典雅的橙色系和卡其灰,再加以独特的花瓷器配上吊线灯的组合,营造舒适的光感氛围,自然形成一个不受外界干扰且温馨、舒适的空间。
女儿房(Girl’s room)
设计师采用淡绿色、粉色、白色的色彩基调,简单的床头柜搭配可爱的娃娃摆件来实现稚嫩童心的公主梦,营造自由幻想的空间。
贰
合理分区,感受舒适空间
公共卫生间(Guestbathroom)
整体洗漱台外置,采用了酒店模块设计了干湿分区,选用了水磨石和大理石釉面砖两种材质做视觉和质感上的层次,搭配精致的内嵌格、植物、收纳柜,使用起来更显人性化的同时,也格外精致美观。
主卧卫生间(Master bathroom)的地面采用大面积暖灰色石材纹理,与墙面的劳伦特黑形成鲜明对比,感官上弱化墙面棱角,但依然界面分明。浴缸同样运用大面积石材包裹,窗户直接落在浴缸基台上,是一个巨大的魔法框景,放松沐浴的同时尽享四季更迭的美妙。
现代轻奢设计的目的是让人享受生活,并折射出空间主人的生活状态,满足于身心感受,而我们秉持以客户主观意愿为主的设计理念,设计出功能化和审美融合的酒店室内装饰。在没有任何束缚和压力的环境中,拥有一片能让身体完全放松,又让人感到无比舒适的温馨环境。
本案设计团队 | Design Team
设计总监 |祝潇刚
参与设计 |章钞文、杨敏
13320921641 梅雪山
18683308555 祝潇刚
0833-2448390 办公室
地址:时代青江二期写字楼 901-905
客服
消息
收藏
下载
最近



































