查看完整案例


收藏

下载
▲
点击上方蓝字“
维地营造
”,关注我们
本案是一套面积91平方米的安居室,业主是一对年轻的人民教师,家庭成员还有他们的父母和小公主。业主喜爱原木独有的温暖氛围,对于家,希望拥有足够的收纳,房屋原始是毛坯房,整体结构简单。
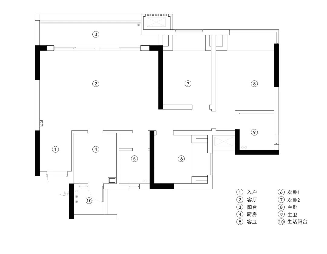
▲原始结构图
▲
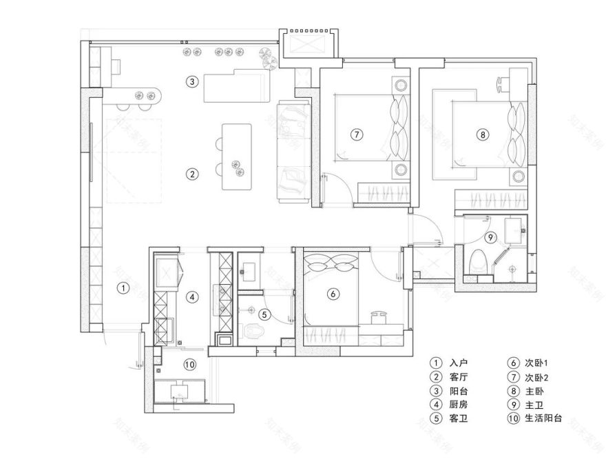
平面布局图
原木与白搭配,温暖空间氛围,给归家时刻,缓解疲惫,舒心放松;嵌入式的玄关柜虽然不大,但给玄关提供了适当的收纳,钥匙、鞋子、小饰品...都在入户有了去处。
客餐厅一体设计,弱化空间界线,让不大的公共空间变得宽敞又通透。
打通客厅与阳台,设置一个吧台形成区域的分隔,同时吧台也是屋主的餐桌,还可以用作办公桌,或是茶水区,打破中规中矩的设计,采用多功能设计,更适合这个小家。
厨房面积不大,合理橱柜收纳提升实用性。
一张床,两个床头柜,两个起夜灯,简单的墙面,穿过一面墙衍生一个床头柜,一组浅柜收纳。
选择用榻榻米床结合柜体,占面积小,收纳力强;儿童房没有一丝累赘的装饰、功能,简单布局,却也描绘出了未来的生活场景。
简洁实用同时也兼顾了颜值,空间氛围也非常的舒适、温馨。
项目简介
项目地址:重庆市沙坪坝区
设计面积:实测91㎡
设计风格:现代风
设计单位:V·Design丨维地营造工作室
设计师:张杜冰 冉勇 刘杰
设计时间:2021年
联 系 我 们
地址:重庆市九龙坡区科园四路170号4幢19-29
点击以下
名片
即可
△ V·Design丨维地营造
客服
消息
收藏
下载
最近
















