查看完整案例


收藏

下载
堇尚悦设计创立于 2017 年,我们专注于室内空间规划设计、空间改造、空间陈设,施工于一体的多元化(EPC)产品型设计公司,我们提供设计咨询+空间设计+软装设计+工程施工+采购+售后 6 大服务体系,我们拥有成熟的设计部、软装部、工程部、物料部 4 个部门。
我们秉持着为客户“解决问题”的理念去做设计,为每一个客户梳理属于他的“人与空间”“人与人”“人与物”“人与环境”之间的关系,在优先解决空间功能的基础上,结合美学、光影关系、材料和工艺的考究,最终将设计以交付钥匙的方式呈现给业主。
Hey,大家好,我们又见面了,欢迎来到堇尚悦设计频道。
今天跟大家分享的是个商业空间,本案是一个以涂料产品展示为主的展厅。位于郫都区红星美凯龙商场,周围店面设计均以大理石、玻璃、金属不锈钢为主要构成要素,充斥着浓烈的商业气息。
本案的设计,通过退让的方式,给门头空间留出了立体的区域,让进入商城的人可以第一时间看到我们的店面。在设计上,我们采用了异形的形体结构和跳色的色彩搭配方式,让其产生强烈的视觉冲击力和磁场,以彰显与其他门店设计的独一性。人总是能在跳出习惯的时刻获取惊喜和快感,以抓住人们猎奇的心态,策划着一场惊喜的差异化·······
本次空间改造的主要挑战是:基于场地的条件如何破冰,让原本异形深邃不规则的场地压抑感变得通透、透气、灵动。基于原场地的特点,我们将前半部分一分为三,目的是为了以小见大,先抑后扬,创造内向的空间和开放的空间,在两个空间相互转换的过程中,这种起承转合,反复递进和对立的手法来处理空间的层次和比例。
这次的项目分享,我们从勘探、设计概念、空间规划,到项目呈现全过程。
设计过程分享:
1. 现场勘探,初次相见。
2
设计概念
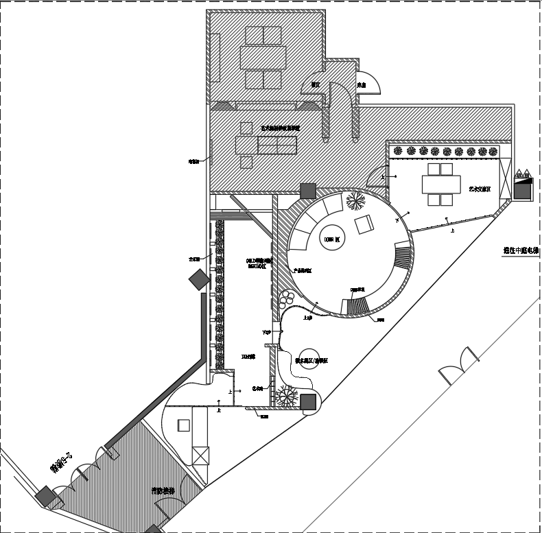
3 多次沟通对比后,最终确定的平面规划布局
平面布局规划 4 设计分享
展厅入口
艺术廊道
展板展示区
来访者进入商场,经过前面那些门店后,需要透气的空间,就像人们在钢筋水泥的铁盒子中生存太久,向往绿意盎然的户外,大口呼吸着清新的自然空气。我们就想塑造这样一种反差感,绿植的融合,艺术画廊的介入,在审美上给人一种导轨,如美术馆展厅一般,更好的烘托产品的艺术性与品质感,同时强调材料本身的属性与空间的高度契合。
空间本身是一个容器,我们试图探索手工涂料本身的质感,在平静的空间中感受涂料的质感,先关注空间与产品在空间中形成的氛围和质感,再去解读产品本身的特性。我们尤为看重空间与产品,产品与人,人与空间,三者之间的交互。通过设计手法的调整,极大的重塑了原建筑空间的结构和组合关系,有利于空间结构、材料展示、色彩融合,在空间建立了一种新的流动方式。
向上滑动阅览
堇尚悦荣誉
2016 年
建筑装饰空间艺术设计大赛佳作奖
2018 年第十届照明应用设计大赛成都赛区优胜奖
2021 年第十一届中国国际空间设计大赛陈设艺术空间银奖
2021 年第十三届照明应用设计大赛成都赛区商业空间二等奖
2021 年第二十一届成渝双城设计大赛·银杏金鸟奖陈设艺术空间金奖
2021 年第二十一届成渝双城设计大赛·银杏金鸟奖陈设艺术空间优秀奖
2021 年第二十一届成渝双城设计大赛·银杏金鸟奖娱乐会所空间优秀奖
2021 年第二十一届成渝双城设计大赛·银杏金鸟奖办公空间银奖
2022 年第二十二届成渝双城设计大赛·银杏金鸟奖陈设艺术空间银奖三枚
2022 年第二十二届成渝双城设计大赛·银杏金鸟奖陈设艺术空间铜奖两枚
2022 年第二十二届成渝双城设计大赛·成都建筑装饰设计奖优秀设计师
2022 年第二十二届成渝双城设计大赛·成都建筑装饰设计奖优秀设计企业
2021-2022 年四川省室内装饰协会青年设计师专业委员会理事
2022-2024 年聘为成都市建筑装饰协会资深住宅室内设计师
堇尚悦 | 为父母准备的度假型养老居所
堇尚悦 | 海归精英的家
堇尚悦 | 七号铁馆
为 90 后新婚夫妻设计的家
堇悦丨方寸之间 可见天地
堇悦 | 此心安处是吾家
堇悦 | 静默,光影
客服
消息
收藏
下载
最近























