查看完整案例


收藏

下载
城市
CITY
怀化,又名“鹤城”,古称“鹤州”、“五溪”,境内山明水秀、四通八达,丰沛的历史文明与自然资源沁透城市背景,素有“黔滇门户”、“全楚咽喉”之美誉。
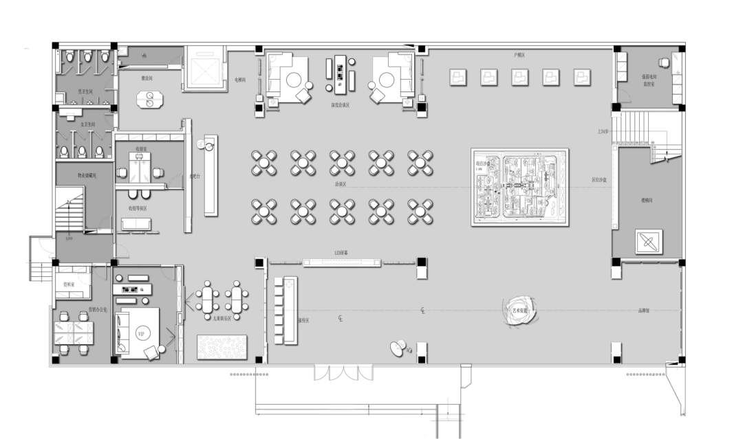
项目位于湖南省怀化市鹤城区环城南路与锦园路交汇处西北侧,融怀化人文古迹为血脉肌理,汇东方美学艺术为风骨神魂,运用现代手法将传统元素聚集于一域,室内设计与大区景观顺承一体,以严谨考究的布局方式构筑而成,通过独特的室内布局与装饰形式将仪式感提升至臻。
甫入前厅,便可感受扑面而来的古典雅韵。接待台背景墙大面积运用庄重的朱砂色,搭配油漆木饰面墙板彰显出宫廷殿宇般的恢弘大气。墙面装饰采用怀化当地的特色手工编织品,颇具纹理感的图案样式如千流汇聚,寓意海纳百川,源远流长。接待台选择了山水纹岩板,浓淡有致的纹路如洇开的墨痕,将远山重峦、云烟叠翠的写意风光完美呈现,抒绘出一派高山流水的壮阔景象。
沙盘区展台以原石材质直接呈现,天然去雕饰的璞拙感与精工细造的园林楼宇形成鲜明的视觉反差,恰如其分地为楼盘园区注入了生机与野趣。沙盘上顶的挑高处利用了古典建筑中的悬空斗拱结构,宽檐重顶的建筑造型与线型照明有机结合,营造出东方审美所追求的隐逸婉转之感,重塑古今结合的独特国风韵味。
古塔是怀化建筑文化的典型代表,无论是龙泉山舍利塔群,还是辰州三塔,都极富艺术美感和历史积淀。设计团队将塔的建筑结构进行了解构,打破原有的体块关系将古塔元素作为艺术吊装展示于主厅,让顾客能够顺着时光流逝的动线,融入古典的生活空间氛围,体现鲜活的人文历史,深度感察项目自身厚重的艺术底蕴与文化内涵。
洽谈区的挑高处垂吊了渐变色艺术灯饰,舒展的造型加之轻盈的质感使之犹如彩练曼舞,将顶面直射的灯光柔化,形成散射效应。四周的饰面被打造为几何形状,起伏处光影错落,视觉上如同缎面平生的褶皱,模糊了虚实界限,凸显别样的朦胧含蓄之美。
墙面运用厚重油漆木饰面墙板搭配精致的雕花金属构建,周边装饰以青山绿野的枯景,简单点缀的景观物犹如人影被夕照拉长的农夫,日出而作,日入而息,安守着飞鹤相伴、打渔自居的自由生活。写意的风景与精致的漆门雕饰相得益彰,正代表着都市生活亦可与田园意趣并行不悖。
水吧台沿用了前厅接待台的布光与配色,纯正朱砂色在光照之间清凉醇厚,仿佛久泡的浓茶,独具深远意境。悬垂的灯柱上描绘的山水图案各有千秋,形状各异的茶壶与茶盏整齐排列,茶色与茶韵在空气中漾开,不须烹煮便能茶香四溢。
深度洽谈区摒弃了常规的布局,以沙发、单人椅、茶台等组合关系加以打造,赋予来客更私密、更舒缓的沟通环境的同时,倾力融汇贯通古今的和谐之美。金属屏风与线性排列的艺术装饰延用于立面,既打破单调、丰富空间层次,也兼具东方美感、堪称一景。
VIP室的勾勒更为低调。背景墙与屏风遥相呼应,米白略带斑驳的底色,宛然一卷铺展的生宣,亭台楼榭与迷蒙水雾浅印其上,尽显设计的古雅风姿。设计者取水榭阁楼之形,展示以现代主义手法,茶座与沙发组相映成趣,理石与漆面浑然一体,设计智慧与传统审美有机结合,让顾客仿佛驻留于时间的一隅,沉浸式体验诗画般的栖居生活。
项目名称 |
金为·潇湘首座
项目地址 |
怀化市鹤城区环城南路与锦园路交汇处西北侧
硬装设计 |
OAD原准度设计
软装设计 |
HDC成都瀚笙室内设计有限公司
项目类型 |
售楼部
项目面积 |
863㎡
项目造价 |
6000元/㎡
主要材料 |
爵士白大理石、胡桃木木饰面、仿石材地砖、金属网、黑色拉丝不锈钢、墙布、皮革
设计时间 |
2021.04.24—2021.06.10
完工时间 |
2021.08.10
项目摄影 |
筑像摄影
客服
消息
收藏
下载
最近


























