查看完整案例


收藏

下载
Location: ChengDu, China
Area: 290m²
Year: 2020
YJ.design
Customized·现代轻奢
- - - - - - - - - -
Design:Wang Li Shuai
Project:WanKe·Yun Lu Shi Jia
Design Firm:Cheng Du Yuan Jie
Type:Modern
- - - - - - - - - -
-
月缺花残莫怆然
花须终发月终圆
When the moon is short and the flowers are broken
it is pathetic. When the flower ends, the moon ends
-
YJ·MODERN LUXURY
现代轻奢
上
DESIGN DESCRIPTION
设计说明
-
我们想做一个有寓意以及文脉体系的室内设计理念。
我们在 尝试,引用、分析、分拆、融合。力求一些有共鸣的观点,融合到细节里做些尝试和突破。
强调设计上的温度,美好家庭氛围的烘托。
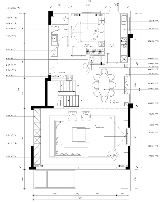
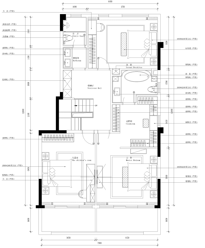
HOUSE TYPE
户 型
-
-1F
1F
2F
-
不只满足于丰衣足食
而是追求温饱之上更高层级的品质生活
Not only satisfied with food and clothing
But to pursue a higher level of quality of life above food and clothing
-
ENTER THE HOUSEHOLD
入户
-
-
采用半弧的对称设计
几何抽象寓意张开双臂 展开翅膀
托起双手以及延伸的空间
Symmetrical design with half arc
The meaning of geometric abstraction is to open arms and wings
Holding hands and extending space
-
STUDY
书房
-
-
山不在高 有仙则名 调素琴 阅金经
背景山形艺术装置定制
旱景用中砂填浅池
The mountain is not high. If there are immortals, they will be famous for the tune of Suqin and reading the golden scriptures
Background mountain art installation customization
Filling shallow pool with medium sand for dry landscape
-
A LIVING ROOM
客厅
-
-
白日斜长 天朗云清 风吹暖春来
电视墙采用分色不对称处理手法
沙发背后采用储物加色块的构图
The day is long, the sky is clear, the wind blows warm spring
TV wall adopts color separation and asymmetric treatment
Composition of storage and color block at the back of sofa
-
RESTAURANT
餐厅
-
-
山高水远 终有归途 亦会还家
顶面结构平面采用正圆 两头下垂做弧形变形
Mountains, mountains, rivers and rivers will return home
The top structural plane adopts a positive circle, with two ends sagging to make arc-shaped deformation
Form an arch at both ends of the dining table to form a floating feeling
-
Y
J·MODERN LUXURY
现代轻奢
下
MASTER BEDROOM
主卧
-
-
咖啡色与原木色搭配
床头背景采用乳胶漆饰面
无主灯设计 光源分散分布
Coffee and log
Latex paint finish for bed head background
No main lamp design, scattered light source
-
MAIN GUARD
主卫
-
-
立柜壁龛增加储物 保障一家人的收纳
独立的宽敞浴缸 情趣且浪漫
Cabinet niches increase storage for the family
Independent view bathtub is interesting and romantic
-
DAUGHTER S ROOM
女儿房
-
-
清晨的第一缕阳光 让整个房间充满温馨
床头背后硬包处理
无主灯光源分散分布
The first sunshine in the morning makes the whole room full of warmth
Hard bag treatment at the back of bedside
No main lamp, scattered light source
-
-
温柔是春天里的阳光
而我们是吸足了柔情的孩子浑身懒洋洋
回到家
彼此对望 心灵相通 既想亲吻 也想拥抱
似那一低头的温柔
Gentleness is the sunshine in spring
And we're kids who suck in tenderness, and we're lazy
home-coming
They look at each other, they feel connected, they want to kiss and they want to hug
The tenderness of the bow
-
设计公司/成都远界设计机构
Design Company/Yuan Jie Design
项目地址/成都·中海·云麓世家
Project Address/Cheng Du Yun LU Shi Jia
主案设计师/王利帅
Design Director/Wang Li Shuai
深化设计/李涛
Detailed Design/Li Tao
产品设计/张月
Product Design/Zhang Yue
软装设计/远界·荟团队
Costume Design
/Yuanjie·Hui
设计面积/290m²
Design Area/290m²
设计风格/现代轻奢
Design Style/Modern luxury
DESIGNER
王利帅
远界设计机构工作室总监
毕业于西安建筑科技大学
2015年法国巴黎JMJ设计机构学术交流
2017年德国魏玛包豪斯大学进修
2009年获美化家居提名奖
2009年“时尚家居”全国年度十佳作品奖
2014年“瑞丽家居”约稿设计师
2015年中装协年度“杰出青年设计师”
2018年成都装饰高校巡回演讲特聘讲师
2018年成都装饰“设计新力量100”创始会员
客服
消息
收藏
下载
最近


















