查看完整案例


收藏

下载
当严谨和理性的人格特质,成为职业的必然要求,对个人居家生活的塑造会产生什么化学反应?在一对医生夫妇的家里,我们找到了一个有趣的答案。
长时间和手术仪器打交道,在生活里难免生出一些“强迫症”。不像大多数人强调家空间的艺术性、极简和功能性,他们希望空间足够严丝合缝,融洽是他们认可的治愈力,是理想之家的必备品。
与木赢设计的沟通也出人意料的合拍。纯粹的日式风因为过于简洁少了些烟火气,于是空间融入现代元素来平衡意境,理性之外又多了一份俏皮的优雅。
#01
户型 Layout 尽管平时工作十分忙碌,但业主希望周末能在家享受烹饪的乐趣和一家人其乐融融的氛围,所以设计师在重新考虑户型打造时,就以打造开阔舒适的感觉为出发点。
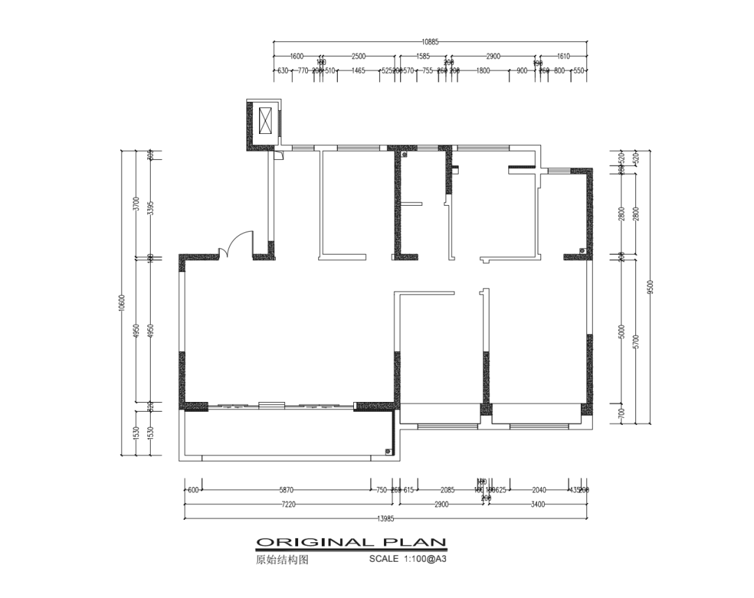
*改造前平面图
标准的三室两厅格局,原始户型把餐厅和厨房分割开来,导致了两个空间都很狭窄,也十分影响用餐功能,添加了许多不必要的麻烦。
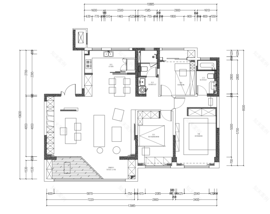
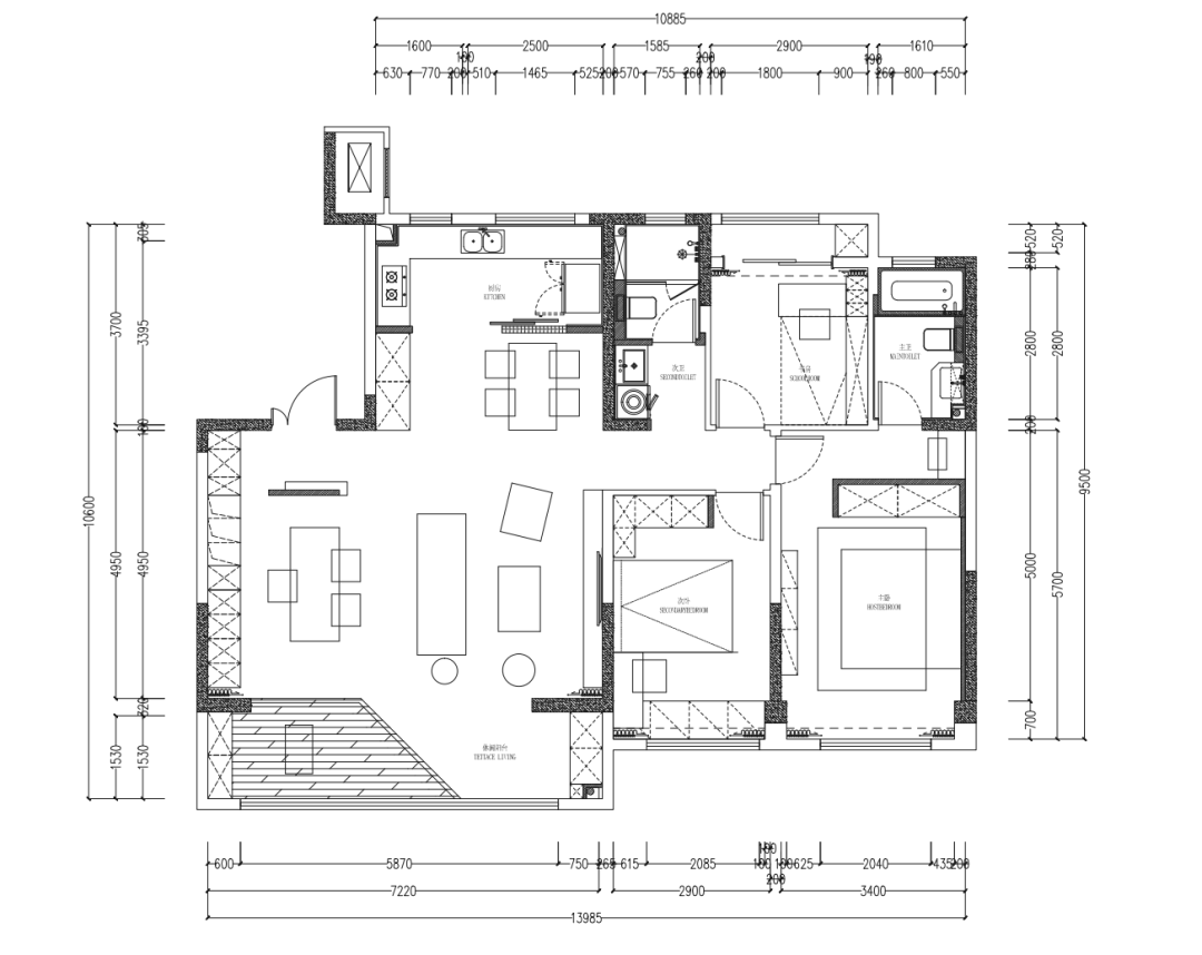
*改造后平面图
改造后的户型,摒弃了原有厨房分割,打掉了划分餐厨空间的墙体,连通这个区域,呈现一个半开放式厨房。
客厅也随之进行了半开放式的多功能设计,一本杂志,一杯咖啡,就是休闲时光的写照,用来呈放柴米油盐之外的风花雪月。
#02
玄关
Porch
入户处深灰色大理石柱十分抢眼,搭配半透明的玻璃,线条简洁又充满趣味,长虹玻璃材质和餐厅的呼应,让光线流动起来,简练之中不乏品质感。
横版上放置了偏日系的花瓶,纹理清爽、颜色自然,透过材质本身传达出温润的空间感受。
横版设计巧妙地兼顾了多种功能,可作为置物架也可充当换鞋凳,简约又节省空间。
#03
客厅 liveroom 在这个家空间,一进门,视线就会自动落在客厅,客厅的设计也是最能代表主人品味的一部分。选用浅色沙发、不规则茶几、趣味单椅,搭配木地板和灰色瓷砖,勾勒出一个有利于互动交流的会客区,灵活又舒适。用木板+大理石拼接做电视墙背景,增加了一部分工业现代感的同时,与旁边柔和的绿植和流动的窗帘形成视觉对比。
真皮质感的主沙发,呈现一抹亮色,搭配不规则的独立小沙发,增加空间活泼轻盈的感觉。灰色茶几和一排米色柜体既充当储藏柜,又作为沙发的背景墙,让空间动线自然流动。
客厅与外界的联系依靠大大的落地窗,选用了材质轻盈的白纱帘,光线和景色透过纱帘进入视野,夏日起风时,光影随行,虚实变化,朦胧的美感跃然于整个空间。除了绿植点缀,客厅的墙面并没有多余的装饰,简洁流畅的线条感,也是屋主喜欢的恰到好处的「融洽」。
#04
餐厅
Restaurant
打掉一堵墙之后的餐厨空间宽敞开阔了许多,与客厅和入户区连通,使得这三个相对独立的空间连接起来,动线更加流畅。
餐桌选用了深棕色的木板,覆盖了一层玻璃,充满质感的同时更容易清洁,进一步满足了视觉需求和功能需求,提升了生活的仪式感和品质感。餐厅和厨房之间采用和入户区相同材质的长虹玻璃,半透明的推拉门呼应空间的一致性,精致通透,既能隔绝油烟,也能使原本逼仄的空间显得开敞宽阔。
厨房对于一个三口之家来说,实用性尤为重要,日常烹饪需满足中西餐的需求,能容纳多人聚餐。考虑到氛围营造和整体搭配,选用了金属材质的吊灯,让空间看起来更干练,同时聚光效果让美食自带滤镜,每一餐都能更加愉悦地享受。
#05
卧室
Bedroom
主卧是主人最看重的区域,放松、休息、充电都在这里进行,节奏感慢了下来,对主卧的设计重点自然落到了营造氛围感和仪式感上。
主卧的功能分区交给了「灯」这个元素。明亮的色彩格调对线条进行了细腻的刻画,在一侧的床头柜上,置入一盏香薰灯,营造出了慵懒闲适的氛围。另一侧则选用了工业风的吊灯,理性归来,随时调节情绪节奏。
灰色和米色的柜体做了嵌入式设计,节省空间又增加收纳作用,让界面的材质可以更加协调和舒服。在连接主卧的卫浴空间里,设计师将洗漱、如厕、淋浴等功能区做了融合设计,不算宽敞的空间里能满足多种需求。同时,在浴室侧面嵌入一面高柜,收纳浴巾、浴袍、洗浴日用品等,美貌又实用。而大浴缸安排在窗边,卸下一天疲惫,可以惬意地泡澡享受。
女儿房的情感流动从色彩开始。在简单的色调中,墙上一抹粉色配合玻璃球吊灯、有趣的壁画,加之飘窗引入的饱满自然光,空间层次更加立体,设计中还综合考虑进了安全因素。
暖色系的质感提升了这个房间的温度和质感,洁净的白色墙面搭配灰、黑、米色柜体,契合了大空间的主题。另一侧飘窗上可以放置一些临时物件,配合客厅同款的白色纱帘,是梦幻和浪漫在少女气质中的延续。
#06
书房
Study
书房是「以理性去治愈」的空间,整体规划得比较克制。米色书桌搭配黑色书椅,视觉感与颜值兼并,桌上摆放的水生植物也让空气变得安静清新。在右侧的书柜上取下一本书,亦或与三两知己围坐交流,度过思考者最享受的时光。
从功能上来看,书房还设计有下拉的隐藏床,可以满足偶尔到来的客人或者老人居住。
医生之家透露出的严谨理性之美,把简约和冷静设计成一种生活,却又在微处显得温柔可爱,用空间让家人保持同频,是屋主的理性赋予优雅生活的「魔力」。对家的理解是从细节出发的,正是细节的不同,才让每个家都拥有了不一样的治愈力。
客服
消息
收藏
下载
最近




























