查看完整案例


收藏

下载
轻奢格调
轻奢是指一种倡导“轻奢华 新时尚”的生活理念,是一种更尊重生活质量的生活方式,它代表着对高品质生活细节的追求。
“轻”代表一种低调、舒适却无损高贵与雅致的态度。
“奢”,代表一种奢华,却是一种不会让人产生压力又追求品质和精致生活的状态。
于是,轻奢成为一种“没负担、有品质”的生活。
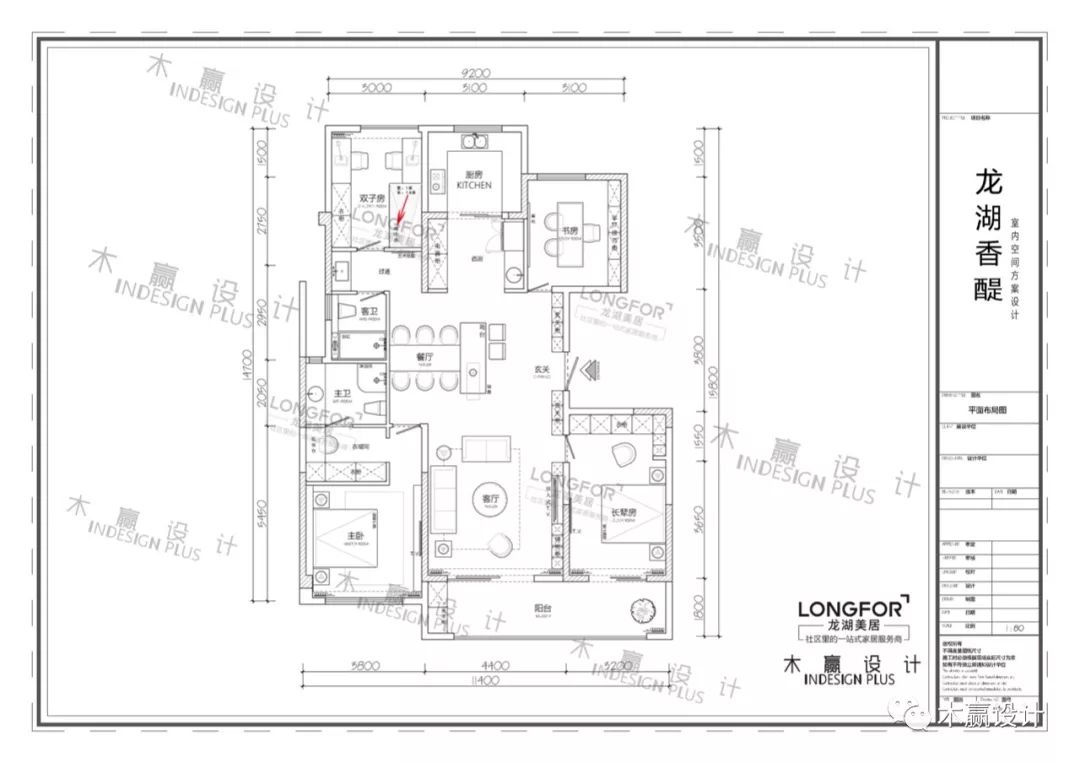
项目平面图
有时候生活就像一缕新鲜的自然空气,呼吸就已觉着空间里的快乐。
现代轻奢风格对很多人来说已经并不陌生,所谓现代轻奢风格即在轻奢华的基础上很好的融入现代元素而形成一种现代比较独特的居家风格,演绎的是一种情怀。
客餐厅
主卧
双子房
客房
书房
厨房
卫生间
木赢设计
INDESIGN PLUS & 西安
如蒙垂询,敬请联系:
商务部
杨先生
187 9255 6616
朱小姐
152 2988 5689
客服
消息
收藏
下载
最近


















