查看完整案例


收藏

下载
生活值得用心经营,哪怕一粒小小的米,也可以窥见我们对待生活的点滴。
三明河龙贡米米业有限股份有限公司是一家集生产、销售、仓储、加工等产销一体化的股份制企业。
河龙贡米以粒细体长、形状似梭、色泽洁白、透明有润泽、饭软而不粘、凉饭不返生、米饭有清香味、营养丰富扬名四海,被誉为“米中珍品”。宋真宗景德元年(公元1004年)被列为贡米。
竹木
-
自然之外
Outside Of Nature
稻米与竹木似乎天生相配。
竹木是温润而极具生命感的,竹制物件往往给人质朴自然之感,而当竹木运用于建筑,这种感受便更加深刻,同时,也出人意料地焕发出多样的木之气质。在这个空间里,米粒是否会有回归自然的感觉呢?
前厅
平和的色彩,暖暖的昏黄灯光,浅色的竹木,亲近又沉静,
从嘈杂的闹市,一下穿越进了一个宁静祥和的空间。
展厅
展厅空间竹木大块面地出现,没有过多的造型,使整体简洁利落,没有过多隔断的阻隔,使空间看起来宽敞通透。
公共办公空间
绿植营造充满生机和轻松的工作氛围。开敞的公共空间饰以白色为大面,定制的竹制家具融入其中,令空间浸润着灵透且迷人的气质,将安静而理性的态度落在这个办公空间。
会议室
会议空间的功能性和实用性注定不需要一些无谓的修饰,以整个白色空间为背景,温暖的竹制圆桌悄然营造一个高效温馨的办公环境。
总经理办公室
高管办公室
竹木点面,简中求精,灯光暗影,一桌一椅,创造出使人眷恋与温情的空间体验,探索自然美学生息不绝,在静谧清澈的环境中品味近在咫尺的诗与远方。
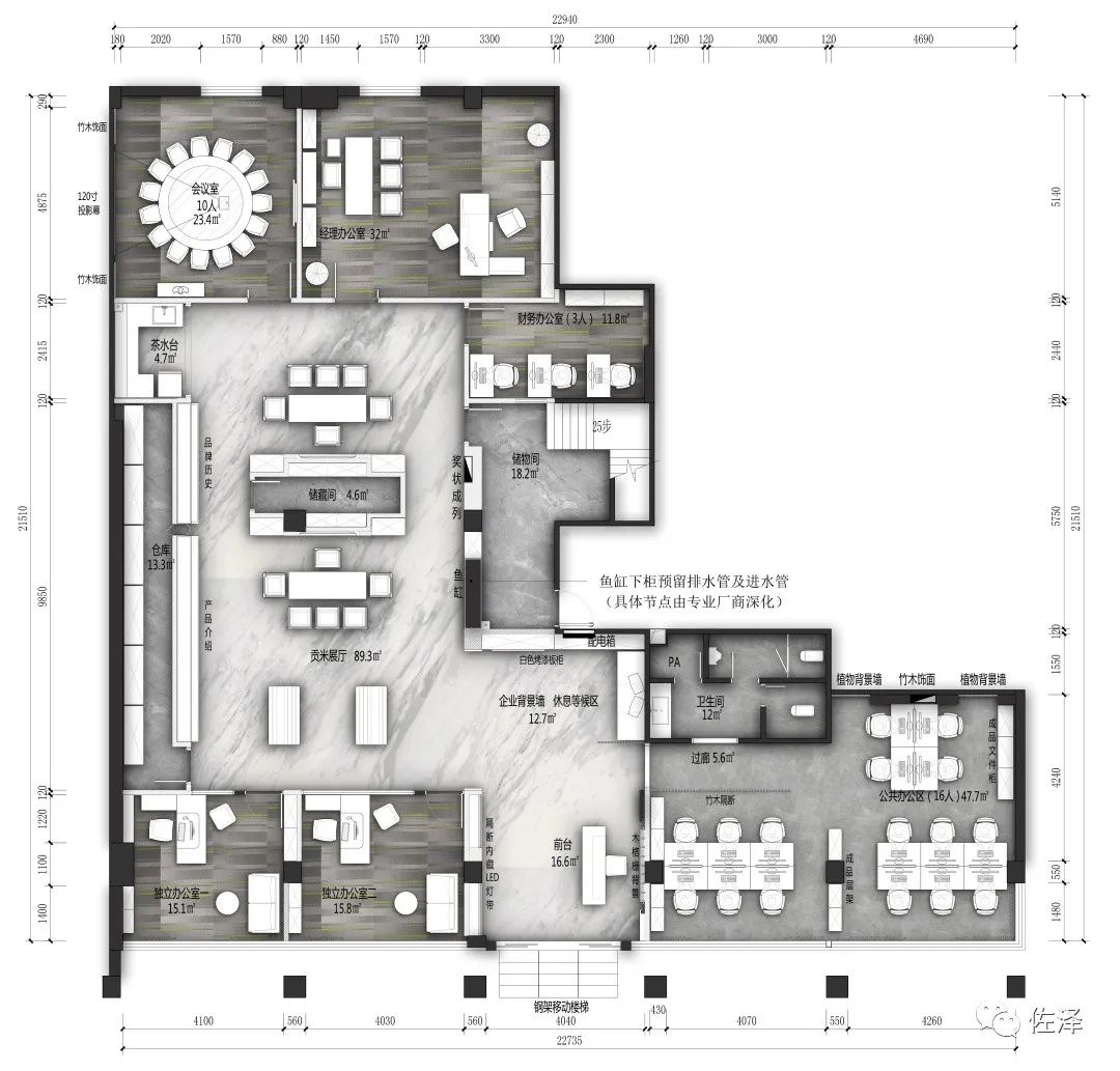
平面图
项目名称
:河龙贡米展厅&办公室设计
项目地址
:福州
设计风格
:新中式
主创设计
:俞宏景、林大伟
设计团队
:佐泽公装三部
设计审核
:陈弓
项目面积
:335㎡
创作时间
:2019/12/17
佐泽·办公真专家长期以来一直以创业精神开展业务,拥有
十七年丰富的办公设计工作经验
,用专业和激情为您在有限的预算内实现利益最大化,也是这个宗旨使佐泽设计成为业内的办公真专家,提供权威的前期建筑规划、室内设计、景观设计、陈设设计、运营盈利设计综合解决方案。
拥有体贴周到的服务程序
概念设计沟通——现场勘察及平面方案概念设计——图纸初审——立面概念设计及效果图表现——图纸会审——专业设计图纸制作——图纸终审——后期跟踪一站式服务综合解决问题。
“一站式”办公设计理念
设计前行业调研
项目管理和监督
空间气质定位
室内设计
VI设计
家具设计、艺术陈设设计顾问
空间全功能模块组合
灯光设计、场景灯光模式选择
空间配套功能设施
(含净水、空调、新风、
空气净化、空气香薰、背景音乐、安防智能等)
室内水电系统、暖通系统设计、弱电智能化系统设计
空间陈设艺术配置
景观设计顾问
建筑设计规划顾问
消防审批代办服务
... ...
办公真专家——提升企业力
能够跟随时代发展,顺应企业主年轻化趋势。我们认为办公环境不仅影响工作的质量与效率,还直接影响人的身心健康,有趣、充满个性气息的办公空间能激起员工们的创意与热情。希望通过我们的办公设计,能够调动员工工作积极性
最终目标——为企业创造最大利益
佐泽始终
以“超越客户期待”作为自己的产品理念,以“为企业创造最大效益”作为最终目标
,我们希望将最专业化的办公设计应用到现实中去,我们将竭诚地为企业主提供专业服务,将先进的设计理念、时尚化、人性化、智能化等运用到方案中来,在后期装修中将Smort office和home office相结合,最后实现让员工在舒适的环境里快乐工作,为企业创造最大的效益。
佐泽·办公臻选
“超越客户期待”使我们坚持不变的产品理念
佐泽·办公真专家十七年丰富的办公设计工作经验,用专业和激情为您提供权威的前期建筑规划、室内设计、景观设计、陈设设计、运营盈利设计综合解决方案。
佐泽 · 办公案例欣赏
(部分)
“让空间更有价值”是我们始终坚持的产品理念
三福总部办公室
上海三迪总部办公室
三迪办公室
闽海石化办公室
德诚黄金集团办公室
福建闽东力捷迅药业有限公司办公室
平潭海峡两岸发展联合会办公室
福州某科技办公室
柏堡龙深圳办公室
摩天之星办公楼
莆田某公司办公室
亿格办公室
伟什医药科技有限公司办公室
福州某服饰有限公司办公室
福清华润办公室
大理双廊游客服务中心办公室
金马置业办公室
富力中心办公室-
太平财险办公室
北大荒办公室
西诚电子办公室
厦门同致电子办公楼
住厦办公室
阅读推荐
客服
消息
收藏
下载
最近











































