查看完整案例


收藏

下载
婺源红老酒文化园景观建设工程-方案设计
业主单位:
江西婺源红酒业有限公司
设计单位:
婺源县村庄文化传媒有限公司
施工单位:
婺源县木石景观工程有限公司
项目地点:
江西婺源红酒业有限公司
设计人员:
汪万斌 洪平
现场施工:
汪鹏海
建筑面积:
3500 平方米
建成时间:
在建
走过秋叶的绚烂,冬日,如新娘般娇羞
腼
腆
而来,终是岁月匆匆,有些人和事还没来得及细想,冬,已拥入怀。
温一壶酒,沉浸在一段特别欢喜的文字里,反复吟诵;
性起,捉笔落墨,心里的念便跃然纸上。
中国是世界上酿酒最早的国家之一,酒的酿造,在中国已有数千年的历史。酒是一种文化的载体,中国酒文化历史悠久,内涵丰富,博大精深。中国是一个历史悠久的文明古国,中国酒文化是中华文明的有机组成部分。
江西婺源红酒业有限公司是在婺源县争杯酒厂的基础上重组而成,原厂始创于一九九二年八月。公司座落在中国最美的乡村—婺源。
为保证公司更好的发展,江西婺源红酒业有限公司委托我司负责婺源红老酒文化园景观建设工程。
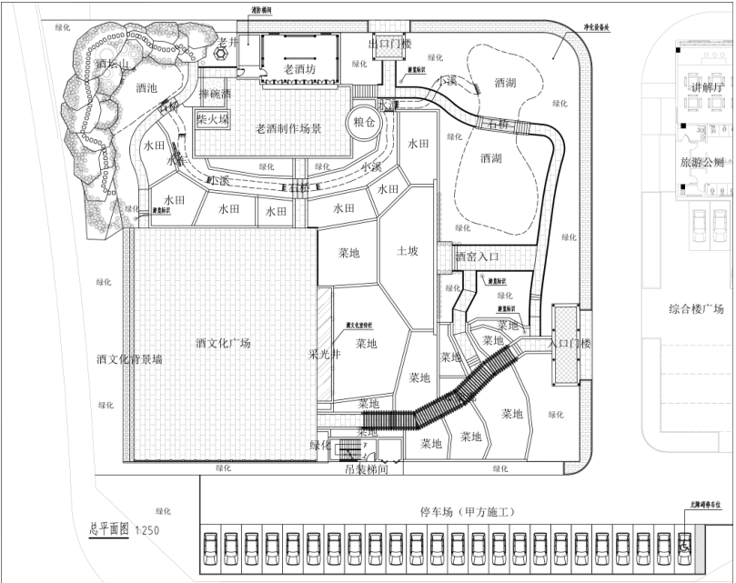
总平面图
本次工程主要是对江西婺源红酒业有限公司工业园厂区内的婺源红老酒文化园景观的设计,建设项目占地面积范围为 3500 平方米,包括:文化园出、入口门楼,酒窖出、入口景观,文化广场,酒坛山,酒湖,老酒坊,周边停车场,文化园内景观绿化提升。
总平面图
01
施工现场
Construction site
酒坛入场
02
设计效果图
Design Effect Dagram
充分发挥现有地形,按照乡村旅游规划的要求,结合已建成的地下酒
窖
,深入挖掘老酒文化特色,配套生态、休闲、体验、观光旅游建设,把婺源红老酒文化园建成婺源县工业旅游特色景点,成为婺源县重要的旅游目的地。
酒广场效果图
入口门楼
入口门楼采用全木制结构结合酒坛来做造型,充分体现出徽式文化与酒文化的完美结合。
施
工
中
效
果
图
酒坛山
大小不一,形状各异的酒坛,根据地势高低排列成一座座酒坛山,利用酒坛造景,能更突出酒文化的底蕴。
施
工
中
效
果
图
酒文化广场背景
酒湖
山和水的融合,是静和动的搭配,建了酒坛山,酒湖也要安排起来,水从酒坛穿梭而过,流入酒湖中,也就组成了最美的风景。
酒坛山
建一处酒文化广场,让老酒文化展示在世人眼前,让爱酒之人多一处交流平台!
往期好文推荐
秀美乡村---清风拂面,鸟语花香,最是一年春好处,亲子游乐正当时!
秀美乡村---风情畲寨,魅力兰家
秀美乡村--一个濒临衰败的小村落,重生,涅槃.......
寻一家温暖的小清吧,邂逅美好---麻椒不是火锅店
秀美乡村----青砖、白墙、黛瓦,缱绻如画......
秀美乡村----一个广场,一个梦
爱上一段旅行,村庄木石醉美贵州--爱上芽庄之旅
花园式办公理念---婺源县村庄文化传媒有限公司
心能安处是吾家——流苏小筑
懿德堂---传承徽州文化,让古建重焕光彩
喜报,喜报,祝贺我司获得艾景奖“年度杰出设计奖”!
放飞梦想,展望未来 | 村庄木石2019年会盛典圆满落幕
古村改造现场---记篁岭花溪水街的修建过程
喜报!热烈庆祝篁岭与懿德堂项目双双荣获 艾特奖 《最佳文化空间设计入围奖》
从大山到大海,我们一路向前!
2020---相望三清户外拓展活动,一起烧烤呀!
公司迎来首个研学团---欢迎南昌航空大学的同学们来我们公司项目参观学习
趁着初冬未寒,不妨安排一场篁岭写生之旅吧
婺源村庄文化
客服
消息
收藏
下载
最近

























