查看完整案例


收藏

下载
关于家的设计,人们往往更注重实用性,然后在实用性的基础上加一点颜值,就是多数人的选择。
而家的实用性中,又多是依靠收纳来撑起的。因为普通人家里的杂物实在太多了,一个家庭的收纳规划好,在实用性上基本就赢了一半。
今天要和大家聊的这个家,就是拥有强大收纳空间的一套房子。
平面规划
☉平面方案对比
原始户型分析:
优点:
1、室内自然采光较好。
2、客餐厅一体空间,视野开阔。
缺点:
1、缺少玄关部分,入户后客餐厅视线一览无余。
2、储物空间不足,难以满足家庭需求。
3、主卧不规整,阳台面积较大,存在空间浪费。
4、厨房格局略小,操作动线不流畅,阳台成了杂物堆砌地。
5、客卫为暗卫,光线较差。
空间布局
☉空间整体布局
所有区域的空间规划和收纳排布,都经过精心设计,为的就是以后的生活能更舒适,也更方便。
每一处贴心的收纳,都不会被辜负。
☉空间收纳布局
家里住着三代人,所以家庭所需的收纳空间非常大。从户型图上,你就能看出这些收纳柜的分布:
玄关入户收纳柜、
餐厅
食品柜
、
厨房高柜、
厨房
阳台
收纳柜、
客厅
收纳展示柜、
客厅阳台
收纳柜
、
主卧
衣柜、
主卧阳台收纳柜、
儿童房衣柜、
老人房衣柜、
书房榻榻米及收纳柜
正是因为这些高柜的存在,家里的杂物都有地归置,才使得台面无物成为可能。
玄关是家里的门面担当
颜值和实用性缺一不可
原始房型入户后对客餐厅一览无余,也没有可以存放更换衣物的收纳柜,
缺少了回家的仪式感。
所以设计师决定首先得改变玄关的格局,单独设计出一处落尘区。
在靠近厨房的一侧增加了悬空
衣帽柜,进门后先在这个落尘区完成换鞋、衣物及其他物品收纳,这样一来就能快速切换到回家后的状态。
悬空衣帽柜也是我们一直推荐的,入户后更换下来的鞋子直接收纳在下方,不会乱糟糟摆一地,
收纳重任全靠它。
☉玄关衣帽柜平面图
客厅和玄关之间用金属隔断来实现空间功能区的划分,既不影响整体采光,也达到了划分区域的作用,轻松化解对客厅一览无余的尴尬。
这个设计很值得原本没有玄关,并且入户门正对客厅的户型参考。
☉玄关隔断及餐边柜平面图
☉金属隔断
玄关内再通过餐边柜
重塑空间的层次感,
餐边柜的存在,也能让这个区域
更丰富
。
除了在实际
使用中
,会增加
更多的收纳空间,
另一方面可以增加更多装饰
:
画框、
花卉、摆件
都是餐边柜上的扮靓好手,
实用性和颜值兼具。
☉餐边柜
中西双厨
才是理想中的样子
封闭式厨房,与家人的互动沟通太少,只能默默面对墙壁做饭;
开放式厨房,油烟又双
叒叕有点讨厌
。
对喜欢中式料理的屋主来说,两个空间分开又并存,才是厨房理想中的样子。
☉中西双厨布局平面图
利用餐厅区打造西厨之地,定制食品收纳柜与西厨操作台结合,常用的咖啡机、面包机常用小家电就直接放在台面上,操作方便。
☉
西
厨操作台与餐边柜
西厨区因为和餐桌相邻,桌面上的杂物,几乎不伸手就能收纳好,不用移动和走动,很是方便。
操作台上方的玻璃门柜子,主要是展示屋主的藏品和好看的餐具,零食、红酒等都能在食品柜内找到相应的位置收纳,操作台两侧的定制收纳柜,增加西厨的利用率,诚意满满。
长餐桌可满足多人同时进餐,也为西厨留出相对宽阔的通道,进餐时方便盛饭、端菜等活动可同时进行。
餐厅与中厨之间用移门分隔,合上便是封闭式的中厨空间,杜绝油烟;打开依然豁然开朗,更方便多人同时操作。
涉及到油烟比较大的煎炸炒中厨烹饪部分放在这个小空间里,其他食品储存、冷菜搭配等都可以在西厨内完成。
再来看看中厨内部,不管是厨房与生活阳台相通,还是厨房与餐厅之间的玻璃移门,都足以使明亮的光线可以无障碍穿透流动。
☉厨房光线
烹饪区形成U型动线,操作流畅。同时在高柜中内嵌蒸箱、烤箱,作为西厨的配合,也给备菜、摆盘预留出更多的操作台面。
☉厨房操作动线
原本的厨房阳台只是作为杂物堆放的区域,改造后就成了储物间和生活阳台。1.3米长的收纳柜为笤帚、吸尘器等家居清洁物件提供了“住所”。
☉生活阳台收纳柜
按照卫生动线:取出笤帚、吸尘器、抹布等清洁物件打扫家庭卫生→将清洁物件清洗干净→放回柜内收纳。既高效清洁了家居环境,就近处理清洁物件的清洗收纳,也最大化释放出公共活动空间。
有质感的客厅
才是首选
客厅通过家具合围来营造出温馨的氛围:不论是懒在沙发中小憩,还是围拢在这里喝茶聊天,总能在其中找到自在的场景。
客厅空间的“美式风格”非常突出,因此多人沙发、茶几和单人椅等也选择了美式经典款,湖蓝色靠包与窗帘呼应,以营造出一种稳重、安静的气息,赋予空间整体性。
配合这种
“
既沉稳,亦温馨”的基
调,电视背景墙两侧增加了开放式书柜,陈列和收纳并存,凸显家的气质。
☉客厅书柜
休闲阳台拥有良好的视角,
也让
这个客厅平添了一份轻松感:
在此健身
、
看书
,或是
享受
下午茶时光
。
另一侧定制了
储物高柜,增加零散的收纳空间也是好的。
☉阳台收纳柜
房子好不好住
只有自己知道
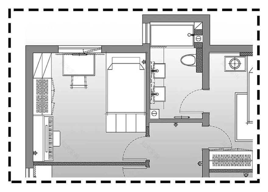
☉卧室分布图
| 主卧
步入主卧,
床头
部分
采用
可移动
屏风隔断
让床头更具有完整性,在不影响采光的情况下,
实
现
对
称
美学
,
让人
很自然的
放松身心
。
☉主卧平面规划
家中的卧室内都拥有充足的自然光,在这里大面积玻璃窗让室内和室外有一种近乎自由的流动,这使得卧室内充满自然的能量,整个空间更显宁静。
床尾衣柜的设置也非常精巧,能满足居住的要求。
主卧没有梳妆台,平常化妆在卫生间就搞定了,所以没有在主卧放梳妆台。
但在床尾衣帽高柜中间,增加了一个斗柜,
这
样一些小衣物和文件夹
也有地方收纳。
☉主卧斗柜
主
卫
是一个偏宽的长方形,空间利用率可以最大化:
进门处分别设置了双台盆洗漱台和马桶位作为干区;
浴帘隔开的湿区则把淋浴和浴缸都归在了一起;
湿区的收纳则通过壁龛来实现。
|
儿童房
儿童房
选择了实用的
上下床,
不必
两边设床头柜,便临窗设置了书桌,方便孩子学习。
床对面的墙体做
衣柜收纳,玩具和衣物都有自己专门的去处,也有利于孩子养成自己整理的习惯。
☉儿童房平面规划
角落里的钢琴
,
陪伴孩子
的每个
日常,在学习之余也多了一份兴趣。
|
老人房
老人房很简单,完全根据二老的要求来。为了在床与
衣柜之间留出足够的活动空间,衣柜选择了推拉门,老人用起来也方便。
床尾增加电视,方便老人独处的时候观看喜欢的节目。
☉老人房布局
三个卧室都是根据每个人的需求出发,细节处理上都有很大的区别。
| 书
房
书房内打造出一个榻榻米区,并在后侧用上一整面墙的玻璃门展示柜,主要用来当成书架和陈列展示,另一侧以封闭式衣柜遮饰较为凌乱的物品,这种有藏有露的收纳最实用。
☉书房平面图
☉榻榻米区立面图
考虑偶尔会有客人来访,书房的设计就应该更具有功能性。
所以,榻榻米在此处就发挥了巨大的作用:
平时可以成为孩子的玩耍之地,也是家人看书聊天的场所,在此消磨闲暇时光;
到了需要待客之时,床垫一铺,便可作为舒适且具有隐私性的客卧。
最靠近儿童房的这边有个小窗,也利用起来。
一桌一椅扩增出阅读、办公的书桌台面,成为享受与日光共读的一隅。
家想要住的舒服,就要从居住者的根本需求出发,这套房子几乎每个独立空间都有大量的储物柜出现,实现颜值与实用并存,将每个空间的价值发挥至最大。
- 设计师更多作品 -
客服
消息
收藏
下载
最近




































