查看完整案例

收藏

下载
人间有味是清欢
△
菜品|图源湘湖和茶馆品牌
中国茶文化历史源远流长,自古深受文人墨客喜爱,有关茶的诗词雅集数不胜数。“茶者,南方之嘉木也”陆羽《茶经》开篇如是说。杭州更有龙井美名在外,闲来无事时,约一两好友聚一间茶室,品茗赏景好不惬意!
湘湖和茶馆 · 杭州
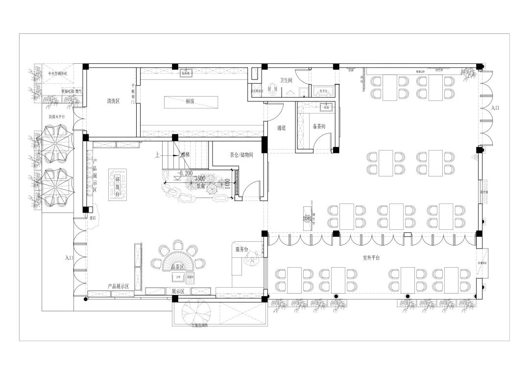
湘湖和茶馆坐落湘湖水街,是集茶餐、茶展和茶会于一体的综合茶馆。
这一生活载体的出现,映射着当代人们疲倦于嘈杂喧闹的朝市,又不甘于隐入丘樊的孤独。
在现实与向往、传统与当代的碰撞间,设计以矛盾统一的思辩出发诠释生活的更多可能性。
△茶馆外景
|图源于网络
返朴
进门是正厅散座区,湖光山色比邻而居、草木山石点缀其中,自然而质朴的实木家具,构筑空间的历史感和朴实感
。
再往里走是后厅
茶展区,松树与山溪砾石相映衬,绿意盎然,散发简约且治愈的力量,自然的生命感充斥着每个角落。与一角茶桌结缘共饮,悠哉乐哉,未出“朝市”亦入“丘樊”。
寻心
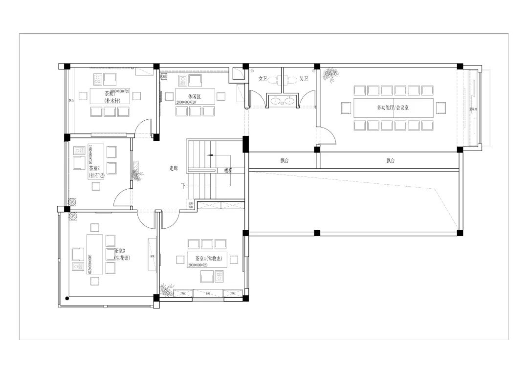
茶性本清净。穿过展厅由步梯而上,曲径通幽的氛围感扫去一身纷杂,带来独有的静谧和温馨。放慢脚步,用心体会,墙画几幅为山水、盆景为园囿,身至便心静。
二层有独立茶室四间,风格各异,分别为拙石记、
朴木轩、
生花语和
常物志
。茶室通透明亮,设一张长桌,茶椅数把,案几、茶柜各一。挂字画一
幅
,玩器陈列二三。置身其中,恍如隔世,有梦回唐宋之感,别是一番清味。
茶会
厅位于
二楼顶端,画展、插花课、茶艺课和会议都在这里举办。
窗前山石片逶迤连绵,与窗外山水遥遥相映。
草席铺设加竹竿固定的人字顶,配上原木地板,仿佛进入茅屋风亭,隐逸山林。
一层平面图 ▽
二层平面图 ▽
- END -
赵浩然
浩然设计工作室总设计师
13133565336
欢迎来访:河北省石家庄市长安区北环大厦
6-
702
北环大厦
客服
消息
收藏
下载
最近






















