查看完整案例


收藏

下载
# 点击蓝字 关注我们 #
我们把对感悟融入室内,打破室内外的界限,让人在室内也能与“光”“景”“石”互动。
项目名称Project name:亚特兰蒂斯独栋别墅
项目地址 Project address:成都
项目面积 Area:567 平米
设计公司design company:枫耘空间设计
材质解析
金属面板光滑质地与木制结合,搭配怀旧经典的水磨石,让原有的建材特性更为出色,线条的层次感巧妙将几种元素融为一体。内容赏析
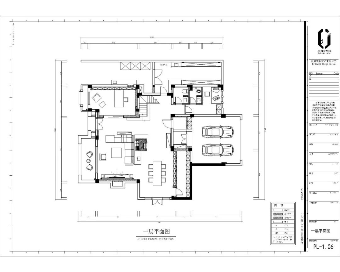
这是一个建筑师的家,一楼大胆采用大量的怀旧水磨石材质,黑白灰既视感。除了有温润的米色沙发,原木色也是黑白灰的好搭档。
怀旧水磨石和木制材质结合,黑色金属质地的穿插,搭配柔和的浅色皮质沙发,让整个空间硬朗而温柔。
橘红色沙发在整个一楼黑白灰空间中起着非常重要的调节作用,不着痕迹地让空间冷暖平衡视觉效果。
每个空间都有自己独特的美学特征。以二楼客厅为例:对坐的看似简洁实则精致的沙发,大面积温暖木制材质,质朴的整面微水泥电视墙提升质感。
木制吊顶和配纯木地板,加上藤编吊灯,传递一种质朴、原始的自然魅力。
这套住宅设计,整个线条精确,注重细节,形式完全克制。每个装饰元素都和另一个元素相辅相成。中性柔和的色调搭配,简单却不乏家的温馨感。
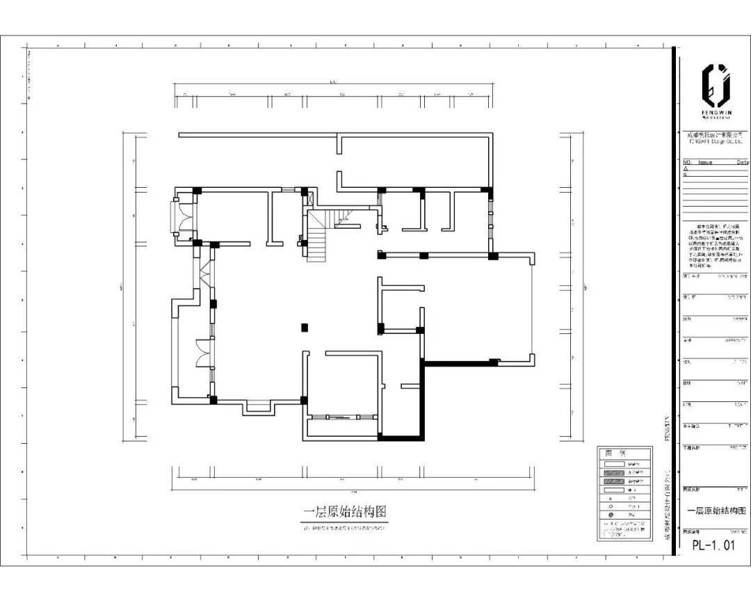
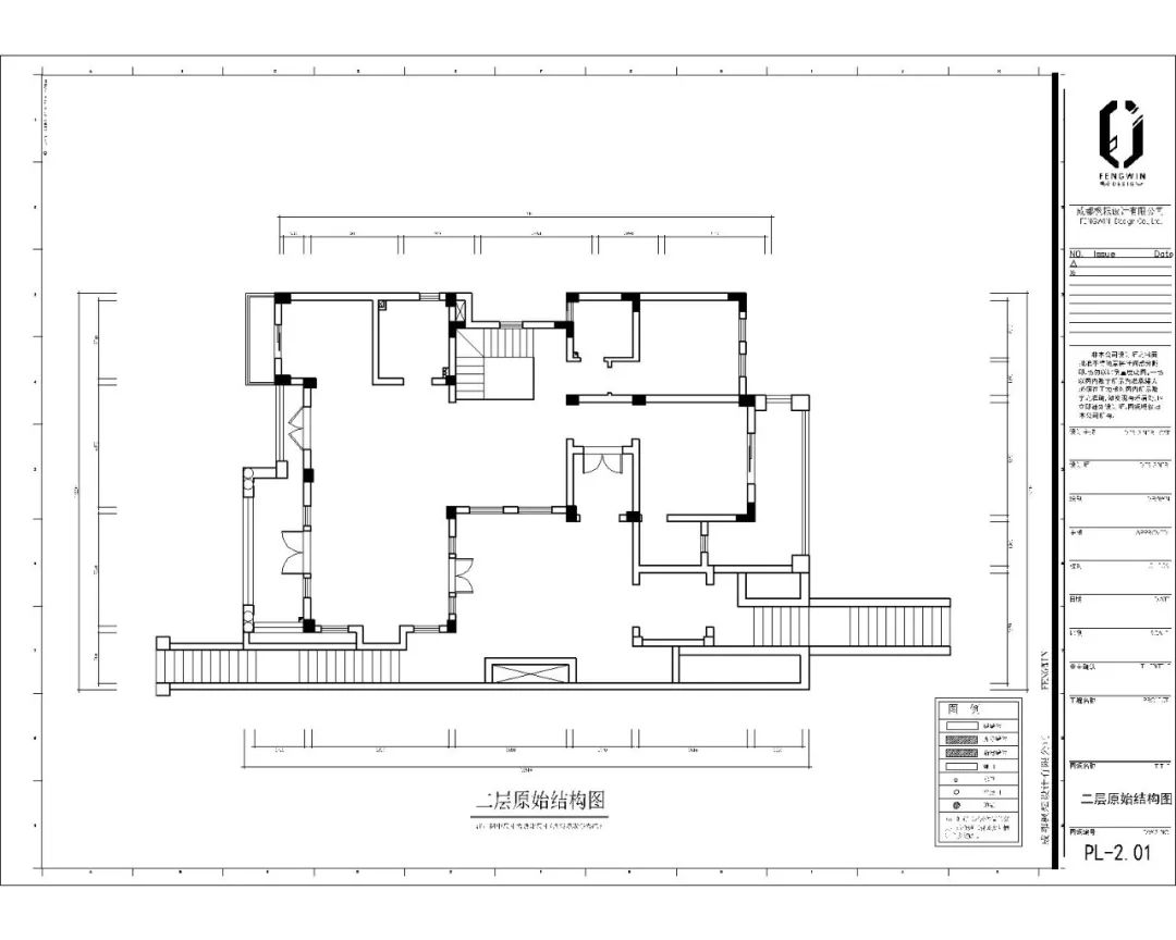
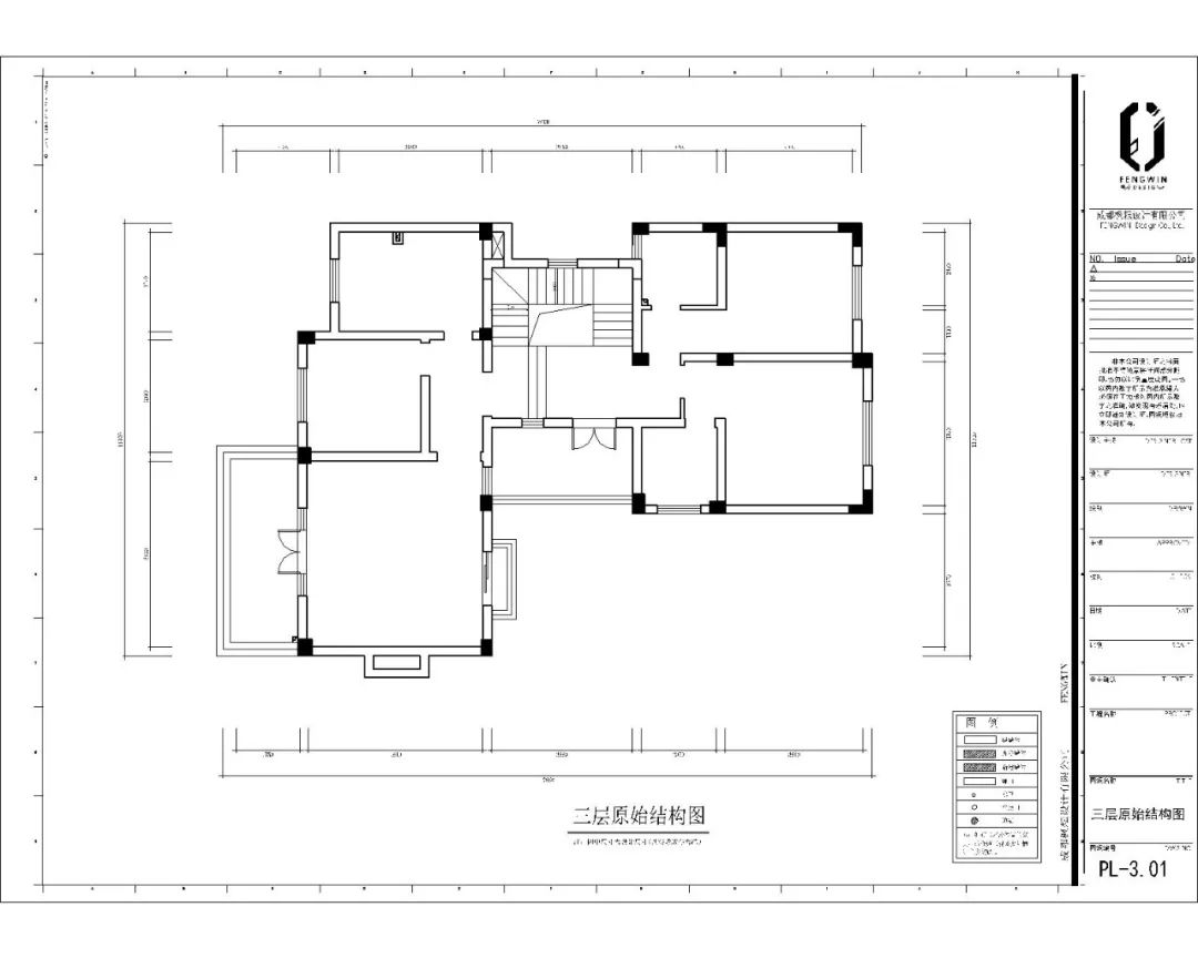
原始结构
/Original structure
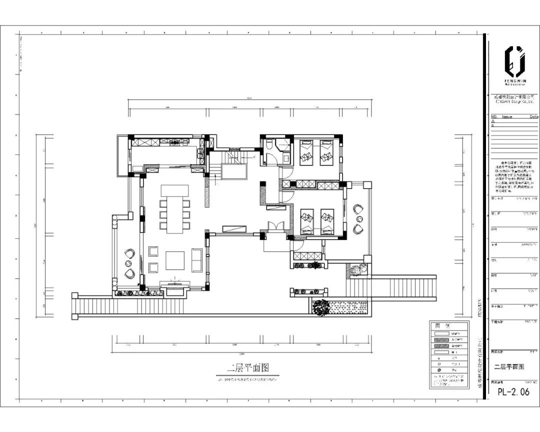
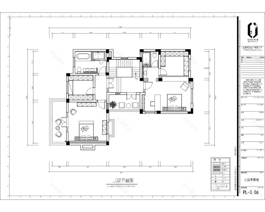
平面布局/Plane layout
主案设计:胡东宇
执行设计师:周于耀
END
枫耘设计
私宅别墅
景观设计
软装设计
商业空间
添加客服在线咨询
设计师简介
四川省室内装饰青年设计协会理事
中国建筑装饰协会住宅高级设计师
CCTV-2<交换空间-空间榜样>特邀设计师
成绵设计大赛“优秀奖”
欧普.光空间设计大赛“优秀奖”
中国建筑装饰协会“住宅高级设计师”
2011 年度家装行业百强设计师
2015 永盛杯室内设计“三等奖”
2017 年度腾讯家居设计时尚空间布局 TOP10 金腾奖
2019 艾特将最佳公寓设计奖
2020 银杏金鸟奖银奖
2020 先锋潮创赛 潮流空间 优秀奖
2020 青年设计师成长联盟设计助力大使
2021 年 CBDA 第十三届照明应用设计大赛成都赛区大户型佳作奖
2021-2022 BDAN 包豪斯现代设计金奖
红棉中国设计 2021 年度最美极简空间设计优秀奖
客服
消息
收藏
下载
最近






























