查看完整案例


收藏

下载
设 计 孟 说
中润华侨城湖心岛别墅,近20年来淄博本地唯一的独栋别墅区,美誉度和关注度极高。本案业主石总一家对生活品味要求极高,前期针对平面结构进行了多次沟通与推敲:
户型如何布局,即满足生活需求,
亦能体现本套独栋别墅的阔绰空间感?
家庭成员方面:
业主夫妻二人有三个孩子,
长子从国外学成归来,需要独立的本套生活空间;
女儿在青岛上中学,几年后也去国外留学,偶尔回淄博;
小儿子刚上幼儿园,小宝宝阶段,暂时跟妈妈住;
老人偶尔来住,也需要预留房间;
常住保姆,需要完善的生活功能;客人来访也需要房间;
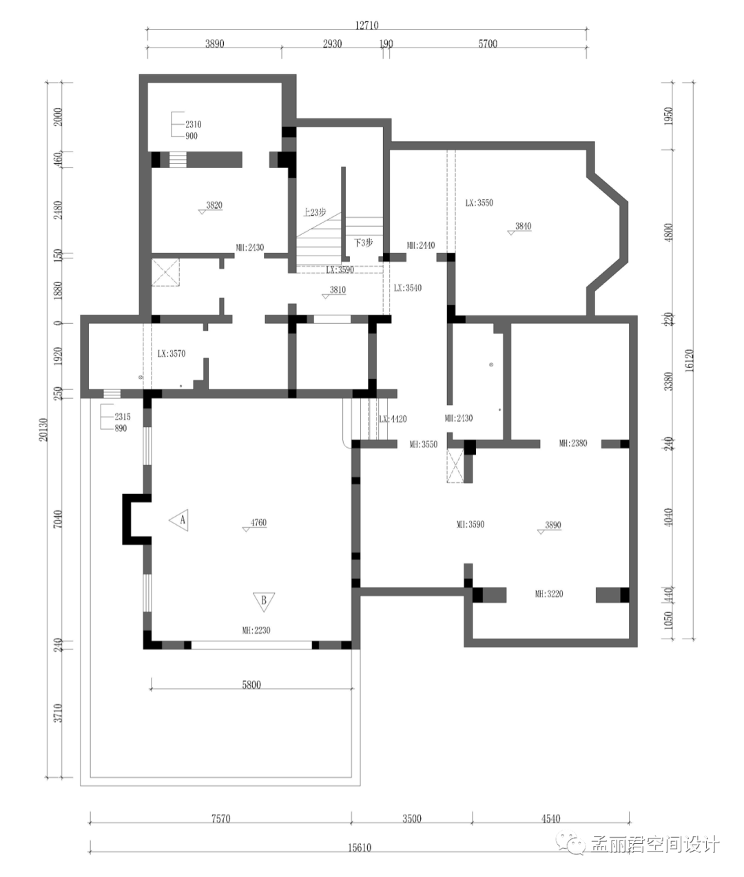
户型结构分析:
一层:
现有户型结构优势:楼梯电梯位置舒适,客厅挑高,容易出效果;
短版在于:入户门一通到底,无门厅,厨房在东侧采光差,餐厅在北侧(北院面积小,无风景可赏);
二层:
二层为三个套房设计,主卧套房占地面积适合,但实墙封闭,感觉很闷,若把客厅连接墙打掉,则储物空间缺失,女主人缺少一个超大的衣帽间;
负一:
负一空间大,
下沉式花园,
地下空间的
光感好,
但原房楼梯极窄,动线混乱,南北不通透;
定稿平面
一层:原入户门与南阳台外扩,将动区全部集中在南区:挑高空厅+门厅+餐厅+中西厨+休闲阳台;北区东侧为老人预留,保留公用卫生间,西侧为大儿套房;即动静分离,亦可将公用区域效果做到最大开阔视野,全部可观园林景观;
二层:设计为三个套房及公用书房:原有主卧套房与客厅挑高的实墙打开,全开阔视野;最大的高点在于:利用原房挑高6米的层高,在主卧室做三层结构,为超美的女主人打造一个专属的超大衣帽间!
负一动线改动较大,大厅北侧实墙打开,错层楼梯改位置;即拉大空间感,亦动线更合理;(酒窖位置原设计为影视厅,但经沟通去掉),合理利用原墙三处采光位置:东南为客房,
保姆功能区域
放在西北角,下沉花园做为花房与茶室功能;
说 明
本案方案已定稿,于2021年11月开工,现土建施工基本成型,节后进入装修阶段。期待全案落地效果!
END
原创设计,谢绝他人转存或挪用,
参观设计方案或
工地请提前预约;
客服
消息
收藏
下载
最近












