查看完整案例


收藏

下载
世界如此辽阔,我们能够把控的,只有自己的小千世界。对生活的向往,让每个平凡的日子都散发光芒,有风有云有闲适的自由。
设计思路
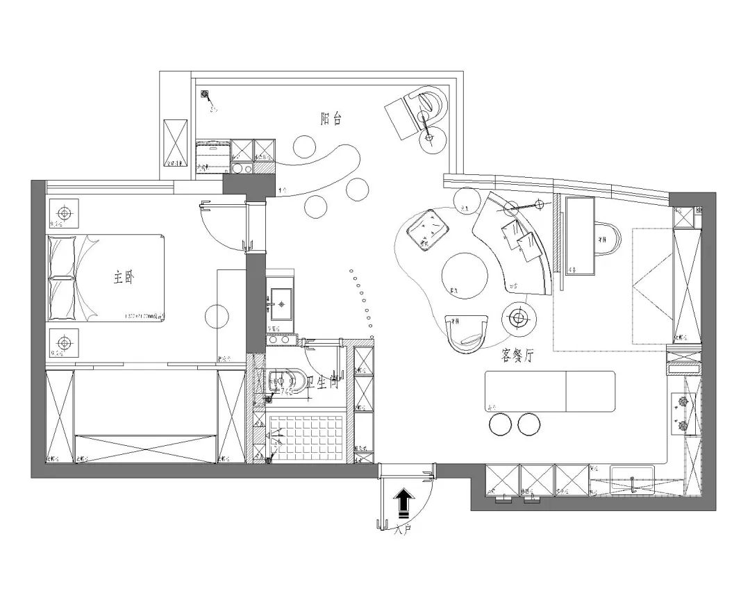
本案业主是一对即将新婚的小夫妻,作为江景房,原始户型中的窗边风景都被卫生间、外阳台占用。设计师打破原始空间布局,重新规划动线,打造了一个舒适实用又极具美感的家。
01/
玄关
玄关处设计了侧面的收纳柜,悬空的设计不留卫生死角,又有着新奇的设计感。自然的木材纹理和留白墙面,一同搭配出清新雅致的空间。
02/
客厅
取消传统的电视背景墙,用隔断栅栏、弧形吊顶和地板交接出舒惬的休闲空间。全景落地窗配合着室外的日升月落,
使得空间光影和分割变得更加有趣。
圆弧造型及层板设计展现形体上的流线层次,带有弧度的抽屉圆润、柔和。木质温润与釉面陶瓷相呼应,镂空隔断创造量体的虚实。
03/
餐厅
餐厅整体配色清新自然,灰白拼色的皮质餐椅与鱼肚白大理石桌面搭配,保证就餐时的舒适感。餐厅是完全开放的,拥有开阔的视野,大落地窗,层高的优势也拥有极好的采光。
星球造型的吊灯极具设计美感,纯净的玻璃材质和金属光泽相互应和,同时这里又是层次分明,功能多元的,提供了更多元的空间功能。
04/
厨房
L型的布局搭配中岛和餐桌,流畅的空间动线营造了干净舒适的烹饪空间。定制的橱柜将区域划分,很好的收纳了厨房用具。
05/
卧室
轻柔的纱帘将刺眼的阳光过滤掉,保留了细腻柔和的光感。
原白浅灰、深绿浅粉,色彩也可以营造温馨静雅的空间基调。
主卧采用无主灯的设计,线性吊灯的设计满足业主入睡前阅读的喜好。以玻璃推拉门划分衣帽间,深原木色的柜体呈U型分布,保证卧室衣物收纳。
06/
卫生间
巧用栅栏装饰,打造外置洗手台,两个区域相互独立又彼此交融。清新的绿色墙面,白色圆形镜面和悬挂浴室柜的组合,将卫生间干湿分离。
沐浴区,灰色地砖和白色墙面营造利落整洁的空间。壁龛设计,方便清理又保证了空间储存收纳。
保留了空间的整体性与通透感,也保证了实用性和功能性。
// END
Project category/项目类型:住宅
Area/项目面积:120㎡
Style/设计风格:现代简约
-
330㎡都市大平层,全景落地窗,在美景中感受春日好时光
冰箱这种大家电放在家里的哪个地方更好用?
240㎡现代风格设计,年轻人能有什么坏心思?不过是想偷点懒罢了
你家客厅还是沙发+茶几的老样子?
500㎡联排别墅,现代东方设计,风雅如斯,诗意化境
点击
阅读原文
快速获取案例报价!
客服
消息
收藏
下载
最近




























