查看完整案例

收藏

下载
汀海壹品八套不同风格案例推荐,
一个月分别签订一个小区八套施工!
PART
1
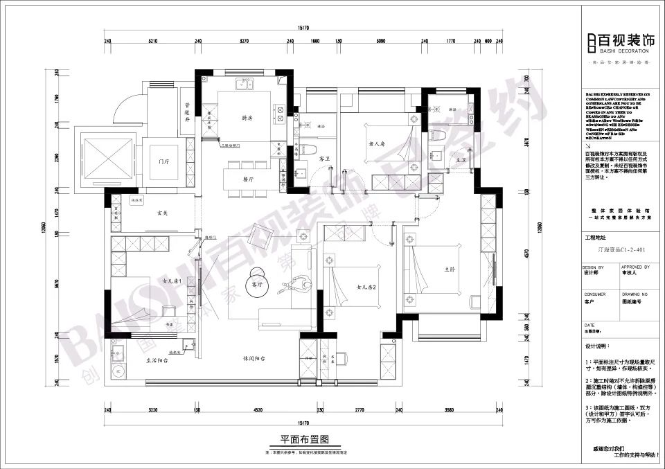
项目地址 / 汀海壹品
Location / TingHaiYiPing
设计风格 / 现代轻奢
Design style /
Modern luxury
项目面积 / 121㎡
Project Area / 121㎡
▽
方案
解析
▽
案例效果
△
客餐厅
△
休闲阳台
△
卧室
△
书房及衣帽间
△
卫生间
△
扫码查看全景图
PART
2
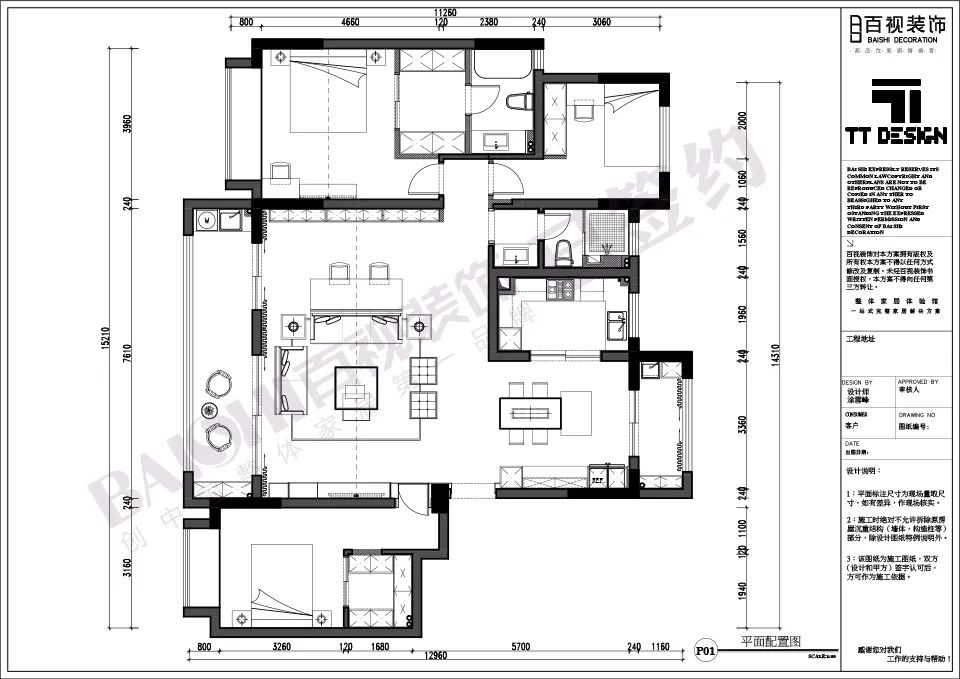
项目地址 / 汀海壹品
Location / TingHaiYiPing
设计风格 / 现代轻奢
Design style /
Modern luxury
项目面积 / 135㎡
Project Area / 135㎡
▽
方案
解析
▽
案例效果
△
客厅
△
餐厅
△
扫码查看全景图
PART
3
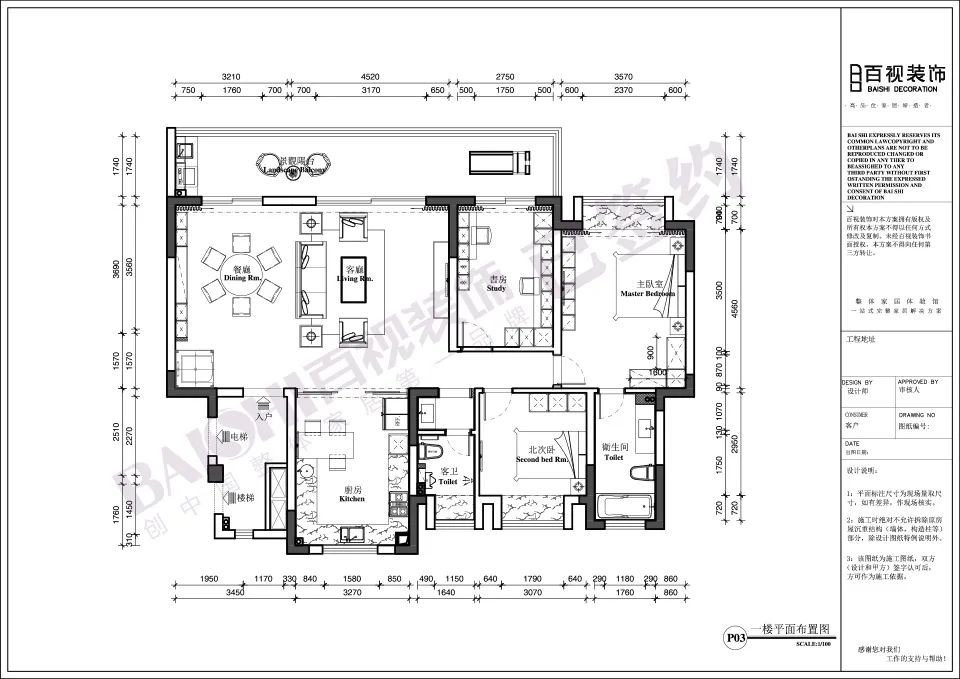
项目地址 / 汀海壹品
Location / TingHaiYiPing
设计风格 / 现代简约
Design style /
Modern simplicity
项目面积 / 155㎡
Project Area / 155㎡
▽
方案
解析
▽
案例效果
△
客厅
△
卧室
△
扫码查看全景图
PART
4
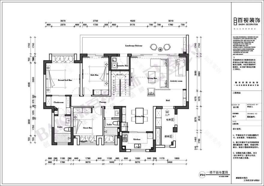
项目地址 / 汀海壹品
Location / TingHaiYiPing
设计风格 / 现代轻奢
Design style /
Modern luxury
项目面积 / 166㎡
Project Area / 166㎡
▽
方案
解析
▽
案例效果
△
客厅
△
餐厅
△
卧室
△
女儿房
PART
5
项目地址 / 汀海壹品
Location / TingHaiYiPing
设计风格 / 现代极简
Design style /
Modern minimalism
项目面积 / 177㎡
Project Area / 177㎡
▽
方案
解析
▽
案例效果
△
客厅
△
餐厅
△
卧室
PART
6
项目地址 / 汀海壹品
Location / TingHaiYiPing
设计风格 / 现代简约
Design style /
Modern simplicity
项目面积 / 179㎡
Project Area / 179㎡
▽
方案
解析
▽
案例效果
△
客厅
△
餐厅
△
卧室
△
卫生间
△
扫码查看全景图
PART
7
项目地址 / 汀海壹品
Location / TingHaiYiPing
设计风格 / 新中式
Design style /
New Chinese style
项目面积 / 210㎡
Project Area / 210㎡
▽
方案
解析
▽
案例效果
△
客厅
△
餐厅
△
厨房
△
卧室
△
书房
△
二楼多功能房
△
舞蹈室
PART
8
项目地址 / 汀海壹品
Location / TingHaiYiPing
设计风格 / 现代简约
Design style /
Modern simplicity
项目面积 / 213㎡
Project Area / 213㎡
▽
方案
解析
▽
案例效果
△
客厅
△
客餐厅
△
卧室
△
衣帽间
△
卫生间
PART
9
百视装饰目前汀海壹品已签约
36户
,在建工地
16户
。
1
-END-
查看实景案例 / 预约参观工地
/
预约设计师
相关互动:
获取同户型方案
小区+户型
,即可获得同户型设计方案。
预约顶尖设计师
装修需求+预约时间
,即可成功预约设计师。
参观在建工地
小区+施工阶段+参观时间
,即可预约参观工地。
■
安徽百视装饰设计工程有限公司(总部)
地址:芜湖市镜湖区黄山东路与弋江中路交口绿地新都会一期B栋LOFT商铺三楼306-318号。
■
百视装饰•名家设计会所
地址:芜湖市弋江区新时代商业街7-63#(光大银行旁)。
■
百视装饰•七方
设计会所
地址:芜湖市鸠江区伟星·快慢里商业街S7-14号。(快慢里酒楼旁)
■
百视装饰•良本
设计会所
地址:芜湖市湾沚区未来城商铺A11-1102。(未来城小区北门旁)
■
百视装饰•凡宸设计会所
地址:芜湖市繁昌区新城华府商铺10栋12-13号(同济医院对面)
■
百视装饰•南和设计会所
地址:芜湖市南陵县籍山镇南翔路以西金色水岸D2号楼106-107号。
客服
消息
收藏
下载
最近








































































