查看完整案例

收藏

下载
设计案例
——BAISHI DESIGN——
户型设计专家 / 我们为您的美好生活而设计
始于·芜湖 · 2003
今天小编来带大家看看
关于金悦府的案例合集(一共七套),
从99㎡-143㎡,
有现代简约、新中式、现代轻奢、
北欧日式、简欧,
看看你都喜欢哪一个。
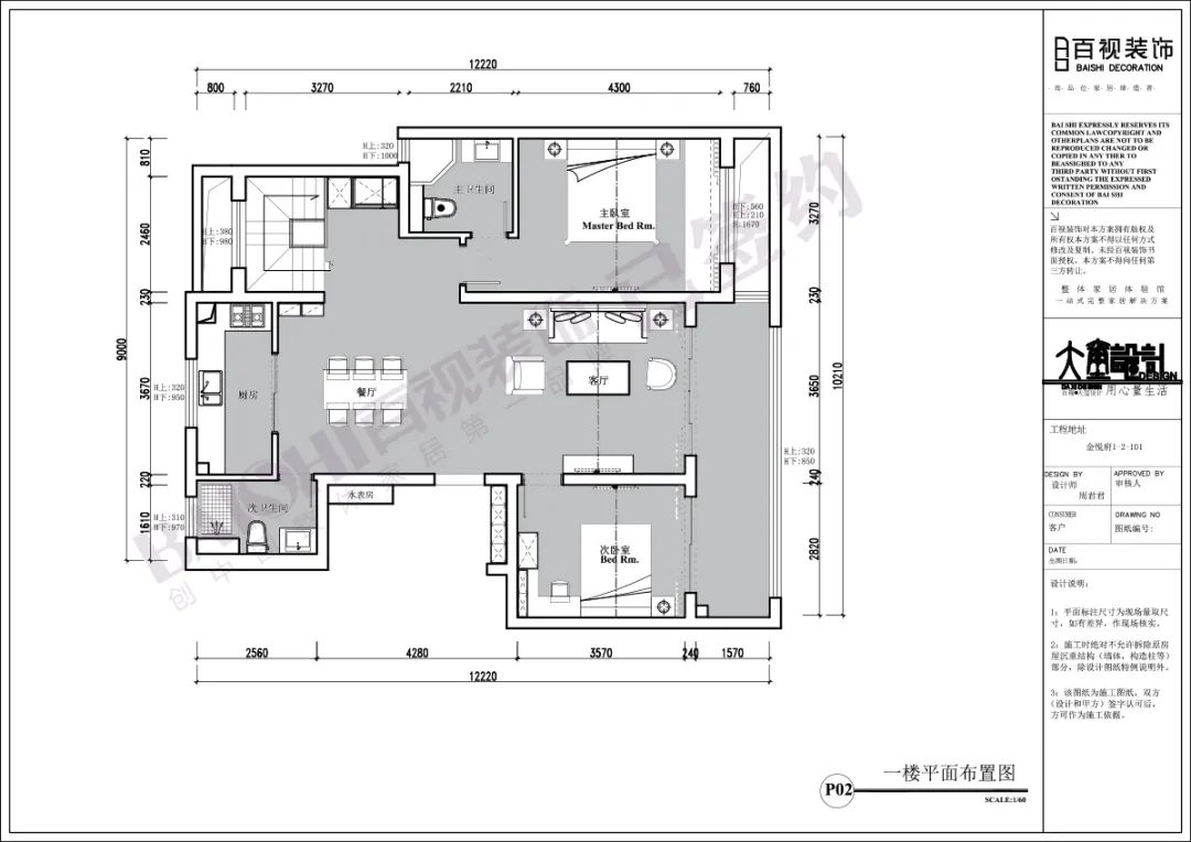
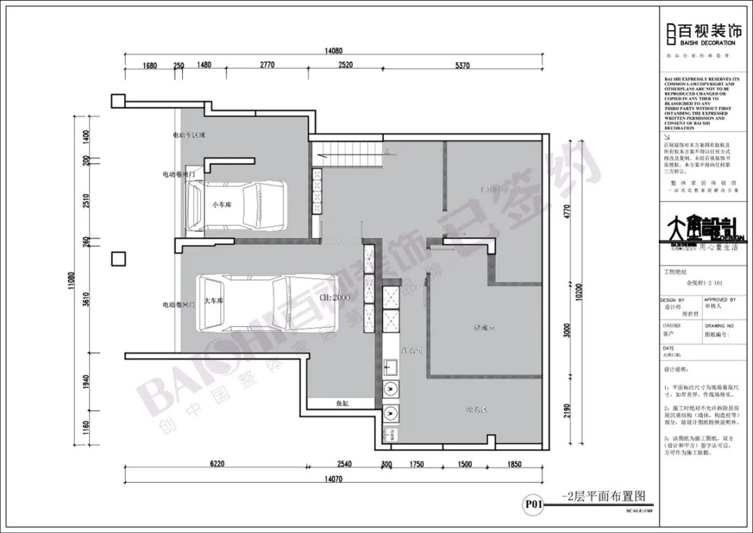
1
120㎡ 新中式 周君君
本案业主是五十多岁的中老年人,这是他们用来安享晚年的房子,主要是以新中式风格为主,采光光线明亮,日常娱乐和需求设施齐全。
设计案例解析
▲
设计方案图
◇
地下室空间隔成两层,北边卧室取消,做了朝下楼梯。
◇
打掉次卧跟餐厅的墙,客厅房间空间更大更通透。
◇
负一层集中娱乐设施和生活需求,衣帽间、书房、影音室、健身房,一个小房间累的时候提供休息。
◇
客户喜欢钓鱼,做了一个小鱼池用于放置垂钓的鱼。
◇
负一负二都保留采光井。
案例效果展示
新中式风格是传承传统风格,通过与现代潮流的碰撞而产生的创新。本案新中式元素与现代元素相互配合,凸显风格的交错感,展现传统中式风格的沉稳、大气的气质
。
2
124㎡ 现代简约 倪军
本案业主是刚结婚的一对年轻夫妻,以现代风格为主,采光充足且通透,保留两个卫生间,未留儿童房,保留两个卧室,一个房间改成书房。
设计案例解析
▲
设计方案图
◇
次卧门的方向改动至右边阳台方向,左边的区域用作卧室柜子墙体且保证背景墙在中间区域。
◇
本案户型是属于方正的户型,没有其他改动的区域。
案例效果展示
1
1
1
客厅与房间连接的大阳台,休闲与生活所需并存,设计以现在流行的灰色调为主,黑灰色调与亮色碰撞,当下时尚的现代风格,简约而不失大方。
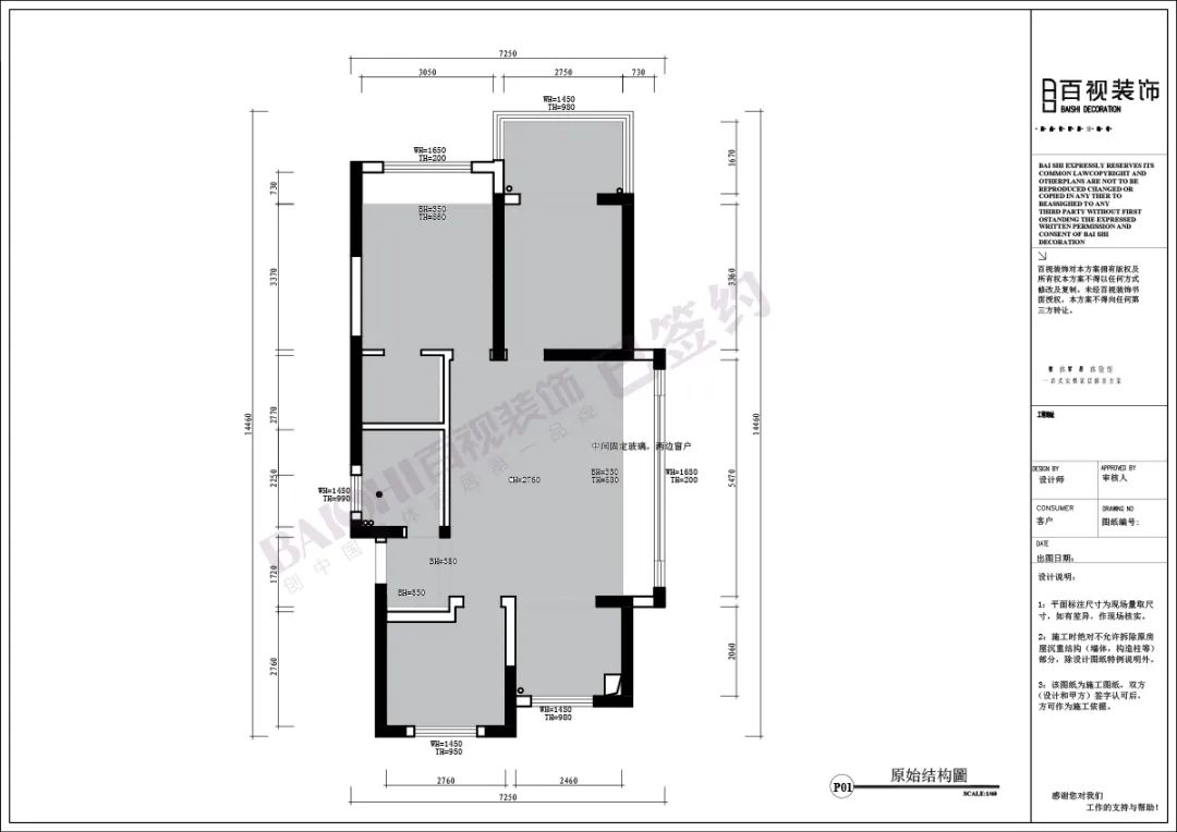
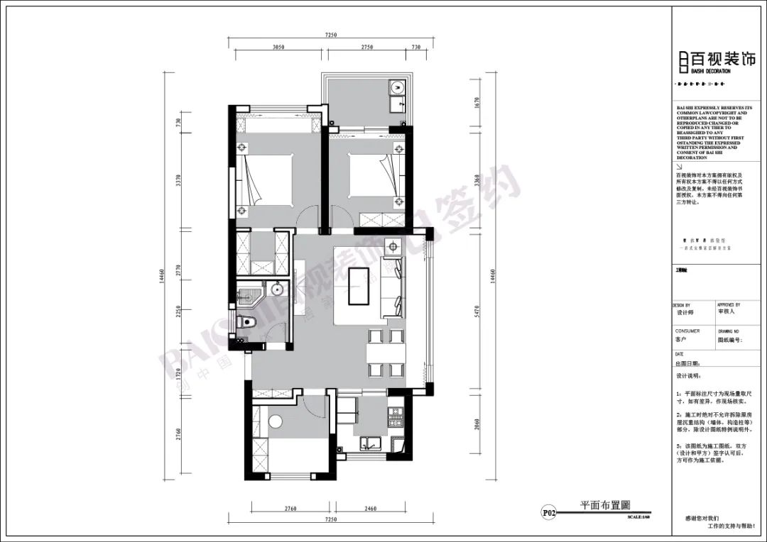
3
109㎡ 现代风格 乔娇
本案业主是五十岁左右的业主,希望家里很整洁、也很温馨,还要有很多的收纳空间,以现代风格为主。
设计案例解析
▲
设计方案图
◇
厨房门向从外侧改到内侧,面对餐厅。
◇
卫生间做成干湿分离,淋浴区向内缩小空间用来放置鞋柜。
◇
二楼小房间空间融入主卧改成衣帽间,二楼主卧和次卧的墙体改动,做柜体增加收纳空间。
案例效果展示
现代风格在追求时尚与潮流的同时,非常注重居室空间的布局与使用功能的完美结合。
刚好也符合业主对使用功能的需求,以功能布局为核心。
4
99㎡ 北欧日式 黄讯
本案业主是一对即将结婚的年轻人,作为婚房,业主希望自己的家是简单且温馨的,以北欧中带点日式的风格,不用太过多的装饰但氛围温暖。
设计案例解析
▲
设计方案图
◇
保留三室,房屋结构方正,没做其他改造区域。
案例效果展示
1
北欧日式风格简洁实用,对自然材料的欣赏,对形式和装饰的克制,以及力求在形式和功能的统一,简洁、直接、功能化且贴近自然,一份宁静的北欧风情。
5
109㎡ 简欧 黄讯
本案业主是为四十岁左右的业主,是两位老师,比较喜欢欧式的那种贵族气质但又不想家像欧式的那种复杂感,简欧风格就比较符合业主的想法,贵族而不失实用。
设计案例解析
▲
设计方案图
◇
厨房门向从外侧改到内侧,面对餐厅。
◇
一楼卫生间做成干湿分离,淋浴区向内缩小空间用来放置柜体。
◇
二楼小房间空间融入主卧改成衣帽间
,
主卧和次卧门洞改小,用于放置柜体。
案例效果展示
简单的欧式家具,包括床、电视柜、衣柜、橱柜等都与众不同,大量的颜色以白色为主,与简单的亮色点缀搭配,营造出日常居家不同的感觉,浪漫且大气的品味。
☝
金悦府工地现场
1
-END-
☝
戳图片了解更多
编辑
/ 吃雪糕咬棍子
查看实景案例 / 预约参观工地
/
预约设计师
相关互动:
获取同户型方案
小区+户型
,即可获得同户型设计方案。
预约顶尖设计师
装修需求+预约时间
,即可成功预约设计师。
参观在建工地
:
小区+施工阶段+参观时间
,即可预约参观工地。
回复
贵
即
可订阅您家同一户型案例、效果。
(针对有装修需求的您:我们会根据你提供的信息,安排设计过您家户型的设计师,为您提供户型规划以及装修预算,帮您解决装修中所遇到的诸多问题)
■
安徽百视装饰总部
地址:镜湖区黄山东路与弋江中路交口绿地新都会一期B栋LOFT商铺三楼306-318号。
■
百视名家设计会所
地址:芜湖市新时代商业街7-63#(光大银行旁)。
■
百视七方
设计会所
地址:
伟星·快慢里商业中心S7-14号。
■
百视良本
设计会所
地址:芜湖县
未来城A11-102。
400-809-6990
感谢您对我们的关注!百视装饰芜湖17年!服务江城名流生活!
请点击阅读原文报名
“我要装修”
1
1
1
客服
消息
收藏
下载
最近













































