查看完整案例

收藏

下载
设计案例
——BAISHI DESIGN——
户型设计专家 / 我们为您的美好生活而设计
始于·芜湖 · 2003
北欧风格是指欧洲北部国家挪威、丹麦、瑞典、芬兰及冰岛等国的艺术设计风(主要指室内设计以及工业产品设计),北欧风格起源于斯堪的那维亚地区的设计格,因此也被称为斯堪的纳维亚风格。具有简约、自然、人性化的特点,北欧风格在使大众利益得到关注的同时,北欧设计没有缺失对小众的关怀。例如消除残障人士在生活上的不便,为其设计便捷的人性设计,实现社会公平。它们都体现了北欧风格设计对人的周全关心,
北欧风格以简洁著称于世,并影响到后来的极简主义、简约主义、后现代主义等风格。在20世纪风起云涌的工业设计浪潮中,北欧风格的简洁被推到极致。北欧风格第三篇来咯!喜欢记得持续关注哟!
1号案例
项目地址:金域蓝湾C2号楼
项目面积:100.5㎡
设计风格:北 欧
主案设计:尚 菲 菲
空间,可以是柔软的、模糊的、灵活的,也可以是不确定的、冲突的、包容的,空间中的人可以与自然贴近呼吸,让人的感受回归细腻,让生活被粗粝、光滑、清香、明亮,重新包装。我们引用四季的变换,艺术的灵动,让居住者的魅力在空间里弥漫,感受灵魂深处的自由,带来温情与感动。
▲ 玄关
▲ 客餐厅
▲ 卧室
▲ 原始结构图
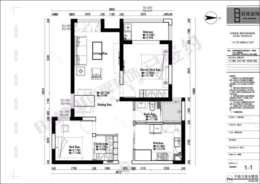
▲ 平面布置图
2号案例
项目地址:南陵金鳞府50号楼
项目面积:135㎡
设计风格:北 欧
主案设计:李 纪 璐
北欧式的生活方式一直潜移默化的影响着屋主的生活态度,简单纯粹又朴实无华,从钢筋水泥丛林中,觅得一条贴近自然的捷径,就像置身于哥本哈根的郊外。整个空间围绕着温柔、治愈的主题展开。沉稳的浅色与自然气韵,营造出脱离现实感的艺术氛围。
▲ 玄关
▲ 客厅
▲ 餐厅
▲ 卧室
▲ 开放式书房
▲ 一楼原始结构图
▲ 一楼平面布置图
▲ 二楼原始结构图
▲ 二楼平面布置图
▲ 三楼原始结构图
▲ 三楼平面布置图
3号案例
项目地址:颐景湾畔26号楼
项目面积:110㎡
设计风格:北 欧
主案设计:乔 娇
北欧风格,在设计上带着欢愉的思绪,在空间中重构一种享受生活进退有度的新秩序,用美学去丰盈城市化生活方式,用它的静谧与美好和平与欢快的真实感,来打动每位繁忙的都市人。第一直观的视觉感受就是温暖满满,经典原木色+白是整体空间的整体色调。整体空间是非常肃静和淡雅的。
▲ 客厅
▲ 餐厅
▲ 卧室
▲ 开放式书房
▲ 原始结构图
▲ 平面布置图
4号案例
项目地址:赭山春秋9号楼
项目面积:141㎡
设计风格:北 欧
主案设计:尚 菲 菲
不以所谓的风格来定义和限制设计,但对于解决空间的种种问题,我们有一直所坚持的解决方式——“干净利落,整体高效”;“加法容易,减法困难”,空间的每一处,大与小,体与块,陈设与灯光等等,我们尽其所能的坚持:点到为止。读懂客户的生活及需求,干净利落对空间进行构造,让空间等于客户,彼此印证,舒适融洽。
▲ 玄关
▲ 客厅
▲ 餐厅
▲ 书房
▲ 原始结构图
▲ 平面布置图
5号案例
项目地址:中梁1621 9号楼
项目面积:123㎡
设计风格:北 欧
主案设计:吴 先 军
我们塑造环境,环境也改变了我们的生活。人在风景中,窗外是风,窗内是阳光,清新的气息轻抚着窗边人的脸庞。春夏秋冬,四时人节,晨昏日暮,通透给了你,亮了別人的眼睛。生活从不应将就,总说要把生活过成理想的模样。设计坚信,自然的东西,更能触动人心,通过更高的、更自然的审美,改变日常中令人绝望的粗俗和与沉闷。
▲ 客餐厅
▲ 卧室
▲ 儿童房
▲ 书房
▲ 原始结构图
▲ 平面布置图
精品案例推荐往期回顾 ↓↓
☝
戳图片了解更多
☝
戳图片了解更多
编辑
/ 吃雪糕咬棍子
查看实景案例 / 预约参观工地
/
预约设计师
相关互动:
获取同户型方案
小区+户型
,即可获得同户型设计方案。
预约顶尖设计师
装修需求+预约时间
,即可成功预约设计师。
参观在建工地
:
小区+施工阶段+参观时间
,即可预约参观工地。
回复
贵
即
可订阅您家同一户型案例、效果。
(针对有装修需求的您:我们会根据你提供的信息,安排设计过您家户型的设计师,为您提供户型规划以及装修预算,帮您解决装修中所遇到的诸多问题)
■
安徽百视装饰总部
地址:镜湖区黄山东路与弋江中路交口绿地新都会一期B栋LOFT商铺三楼306-318号。
■
百视名家设计会所
地址:芜湖市新时代商业街7-63#(光大银行旁)。
■
百视七方
设计会所
地址:
伟星·快慢里商业中心S7-14号。
■
百视良本
设计会所
地址:芜湖县
未来城A11-102。
400-809-6990
感谢您对我们的关注!百视装饰芜湖17年!服务江城名流生活!
请点击阅读原文报名
“我要装修”
客服
消息
收藏
下载
最近















































