查看完整案例


收藏

下载
匹配设计,只因不渝
zhoushan|2019|ZY DESIGN
项目名称|Name:复·艺
项目类型|Type:半包
项目地址|Address:锦澜府邸
项目面积|Area:105平方
硬装设计|Hard loading:子洋设计主创部
软装设计|Soft wear:子洋设计软装部
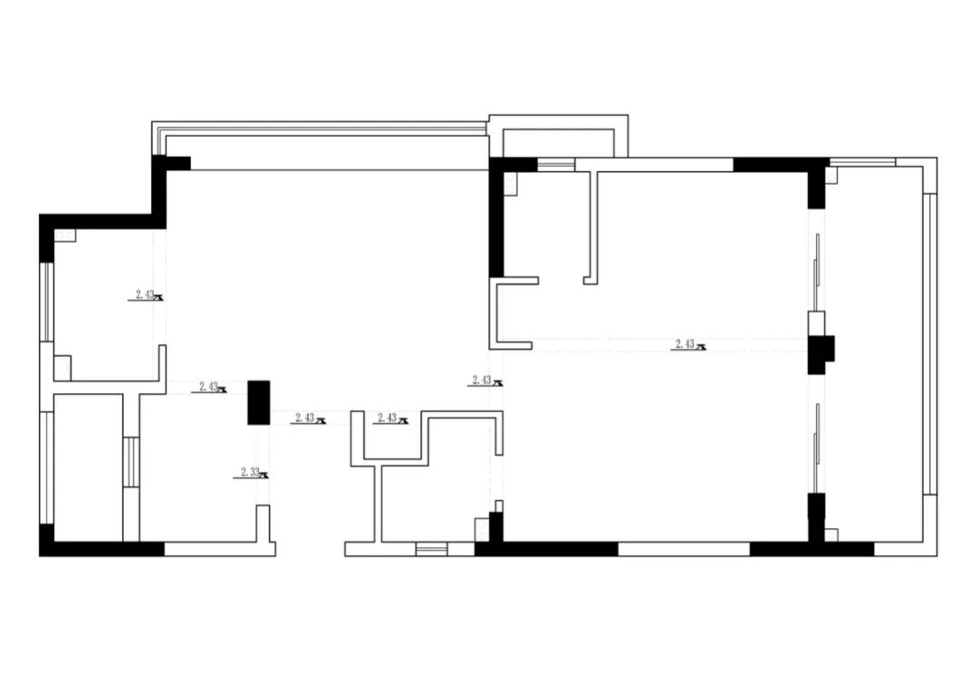
原始结构
首先我们来分析一下整个户型的优点:
1.
户型非常方正,南北通透,空间上的利用率非常高
2.
承重结构(即不可拆除的墙体)比较少,意味着这个户型有非常大的改动空间
3.
窗地比非常大,整个房子的窗户都为一长排的大窗,对于整个案子的采光和后期室内空间设计的光感有十分大的优势
4.
相邻空间的墙体多数都是红砖墙,这样也意味着每个空间的面积需求完全可以通过借左右两边的空间来达到客户的需求
5.
两个卫生间都是明卫,对于卫生间去留的考虑可以有多种不同的思路
分析完户型的以上优点,那么这个户型以下的缺点全都可以迎刃而解,比如:
1.
厨房空间较小,舒适度不够
可以通过借隔壁的空间来扩大厨房的面积
2.
客餐在同一区域,原本较大的空间被切分后反而显得拥挤
可以想办法把餐厅空间进行调整,使客厅空间保持独立通透
3.
入户左右都有墙体,过道感使得进入方式不够舒展,封闭感太强不够通亮
可以想办法在满足鞋柜需求的同时在立面上进行处理,让玄关也充满艺术感
4.
虽然有两个明卫,但是空间都不够大
好在都是明卫,可以任意保留也可以任意向房间空间进行借和扩充
5.
阳台空间过大,显得浪费
当然卫生间往卧室扩充,房间也可以借阳台空间进行扩充,甚至都可以规划休闲类的阳台空间
很幸运,这个户型的屋主是较有理念的一家三口,于是整个案子的方向变得更加明朗
我们来了解一下这个户型的屋主以及需求:
1.
一家三口,儿子偶尔来住,只需要保留一个较大的卫生间就可以满足日常的需求
2.
屋主本人希望有一个开放式的厨房,能放置双门冰箱,满足中西餐烹饪及多人用餐的需求
3.
女业主希望储藏鞋和衣物的空间足够多,也希望能满足日常化妆护肤的需求
4.
业主本人比较信风水,希望预留佛龛位,对沙发的摆放和卫生间的进入方式都比较讲究
5.
屋主的儿子是健身教练,身材较为壮硕,希望自己的房间比较宽敞,能有一米八的大床,有休闲娱乐区域和书写办公的桌面
6.
风格定位希望现代但是有设计感,也比较喜欢轻奢类的金属材质
平面
方案
我们保留了动线最为方便,位于西面的卫生间作为整个户型的唯一卫生间,并且向南面借了次卧的空间,而将挨着的阳台区域纳入次卧,使卫生间空间扩大,满足了大淋浴,长台盆,烘干机的摆放需求。而次卧也配置了衣柜,一米八的床,释放的阳台空间满足了上网和休闲的需求。
主卧部分,将原内卫进行改造,我们将衣帽间也打开,在储物柜差不多的情况下打造了一个梳妆台功能,使空间更加连贯和通透,设计感和摩登感也更强烈,而南面部分的阳台被保留,作为洗衣和休闲于一体的多功能阳台。
厨餐厅通过释放原本第三个小卧室的空间,进行重新组合,变成现代感极强,用餐桌和岛台于一体的厨餐开放式空间,入口方式都被移到入户玄关这一侧,借了北面和东面的光,入户玄关也变得通亮
客
厅空间我们大胆的鼓励客户将空间做的更通透,把沙发移至南向,玄关入户看到的是更明亮的大窗户,特别设计了电视背景墙与隔断墙为一体的景观墙,同时这面墙也是整个客厅的亮点和吸引眼球的地方
鞋柜的设计我们也不希望是死板或者孤立的,都需要与背景和吊顶做结合与连贯,从平面方案就能感知一二
客 厅
电视背景的设计我们不希望是孤立的,而是和厨餐厅有充分互动,于是我们创造了一个悬空的背景墙,部分镂空,将两个空间进行了阻隔却又是充分通透
即便是进入厨餐厅的门洞,我们在设计时也不像寻常一样,只是一个门洞一个门套而已,我们做了一些特别的设计,用了黄铜的材质凹了一个半圆弧的造型,贵族感更强烈,特别强调的细节是黄铜门套基层要求和墙体做平而不是比墙体突出,为了表达它的质感
这两个空间的顶面也是有联系,一条凹槽进行艺术漆的处理从客厅空间延续到餐厅,同时和电视背景的灰色艺术漆材质相互碰撞
入户鞋柜部分,我们用到了木饰面,白色混油和黄铜三种材质进行组合,封闭高柜,展示开放柜和鞋柜功能一体的组合柜,同时这个柜子被延伸至客厅空间,自然形成了墙面背景
餐 厅
餐厅空间满足客户的厨餐具收纳需求,设计了橱柜分隔,而橱柜面板选择上还是希望简单干净好打理,灰白石材和亮面白色橱柜面结合,搭配上大理石面的餐桌和布艺感的餐椅,现代感十足
主 卧
主卧的部分我们希望更能表达客户的个性,在设计手法上延续客餐厅的风格调性,可是单独设计了一面个性强烈的墙纸,表达整个空间的属性
柜子都是根据设计定制,整个空间只有一张床是成品,从梳妆台到床头柜都是根据设计做的定制,是我们对整个空间连贯感的最好表达
卧室是睡眠区域,我们希望吊顶也是柔和的,灯光设计也是柔和的,于是均匀的灯带是这个空间主要灯光的首选,黄铜质感的吊灯作为软装部分给空间增添了一些趣味
其实整个案子的软装部分并不多,只需要素色的高级的窗帘搭配柔软的纱,质感较好的大件家具搭配一些黄铜质感和跳色的家具小单品即可表达现代里的轻奢
案子里的所有家具、灯具、饰品、挂画都是我们精心挑选的,并且可以通过我们的渠道采购,确保案子的完美落地。
子洋设计事务所|ZY DESIGN
2956114112
地址:舟山中浪国际C座10楼1003室
客服
消息
收藏
下载
最近









