查看完整案例

收藏

下载
项目建筑外观▲
项目概况
PROJECT OVERVIEW
环东广场前身是“广州嘉福国际大酒店”,始建于 1986 年,曾是区庄第一高楼。由于原建筑闲置已久,在公建立面、空间布局、业态规划等方面均已落后于市场,加上设施设备老化,亟待改造更新。
项目位置
项目外观
▲设计介绍
INTRODUCTION
设计师:“随着城市化的加速发展和产业结构的升级,许多老旧建筑失去了其原有用途。当下可持续发展的意识不断增强,越来越多的建筑、空间设计更倾向于寓旧如新,本项目将旧的建筑空间打碎重组,本项作为珠江装修施工、设计一体化项目,在有限的造价范围内更加有效的突破旧空间的弊端和极限,重组出低造价、现代、舒适的新空间。”
外立面前后对比照▲
原始旧空间▲
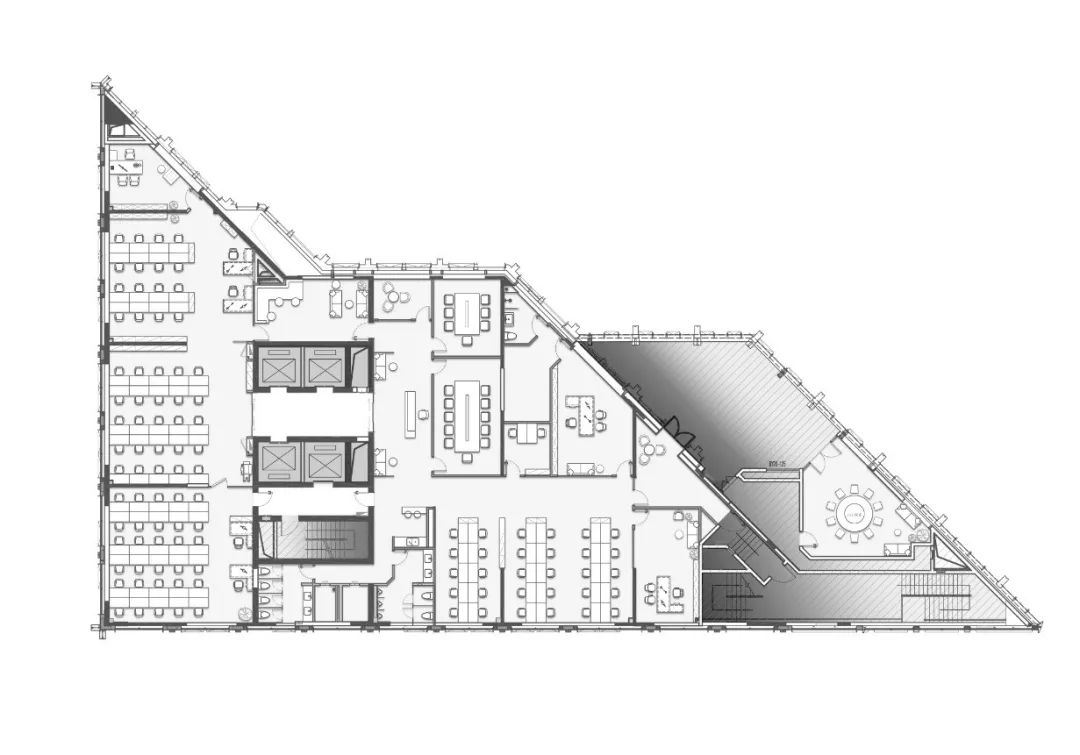
平面图
平面图 ▲
原始旧空间结构梁低矮,空间高度受限。建筑主体为三角形,存在不少“钻石型”空间,如何将这些空间充分利用并使之与整体融合,是个值得思考的问题。
改造效果
DESIGN EFFECT
首层接待前台▲
前台及走廊▲
由于造价的限制,设计师重点将造型放置于电梯厅及前台。而在材料的选择上,以朴实、自然为主线,适当加入简约的线条,打造出现代、大气的前台空间。
走廊▲原走廊结构梁底完成面后净高仅约 2.2m,这极度影响了整个走廊的空间效果。经过多次建模复原现场情况做推敲,最终以墙面做竖向线条延伸空间高度、天花以半开放式的形式既遮挡杂乱的管线又能增加空间的开放感提升空间高度。
开放办公区▲办公区域局部采用局部开放的形式,既能遮挡杂乱的管线又能有效提升空间高度,增加空间开阔感。
独立办公室▲为了保证开放办公区空间完整和统一,设计师将“钻石型”空间独立化,并通过软装搭配最大程度的使空间舒适,协调。
二层前台▲
项目二层的接待空间较小,设计师采用简洁的手法,体现出了空间的延展性,并不会显得局促。接待台造型与墙面造型相互呼应,组合出一种几何的和谐。
获得业主感谢信
RECOGNITION
主创设计获得业主感谢合影▲
业主感谢信▲
项目信息
PROJECT INFORMATION
项目名称:嘉福办公改造项目
项目地址:广东省广州市环市东路 418 号
项目面积:约 3303㎡
竣工时间:部分竣工 2021
项目业主:广州市珠实同创产业运营管理有限公司
项目负责人:赵任(施工)、丁德海(设计)
设计团队:区中杰、何婧、谢蔚、黄碧炽
施工管理团队:王小雨、陈明磊、张洪斌
项目摄影:徐蓬
主要材料:白色乳胶漆、地毯、瓷砖
商务洽谈 :020-83806358
(设计院 姚丽峰)
珠江装修
since 1979
客服
消息
收藏
下载
最近




















