查看完整案例

收藏

下载

翻译
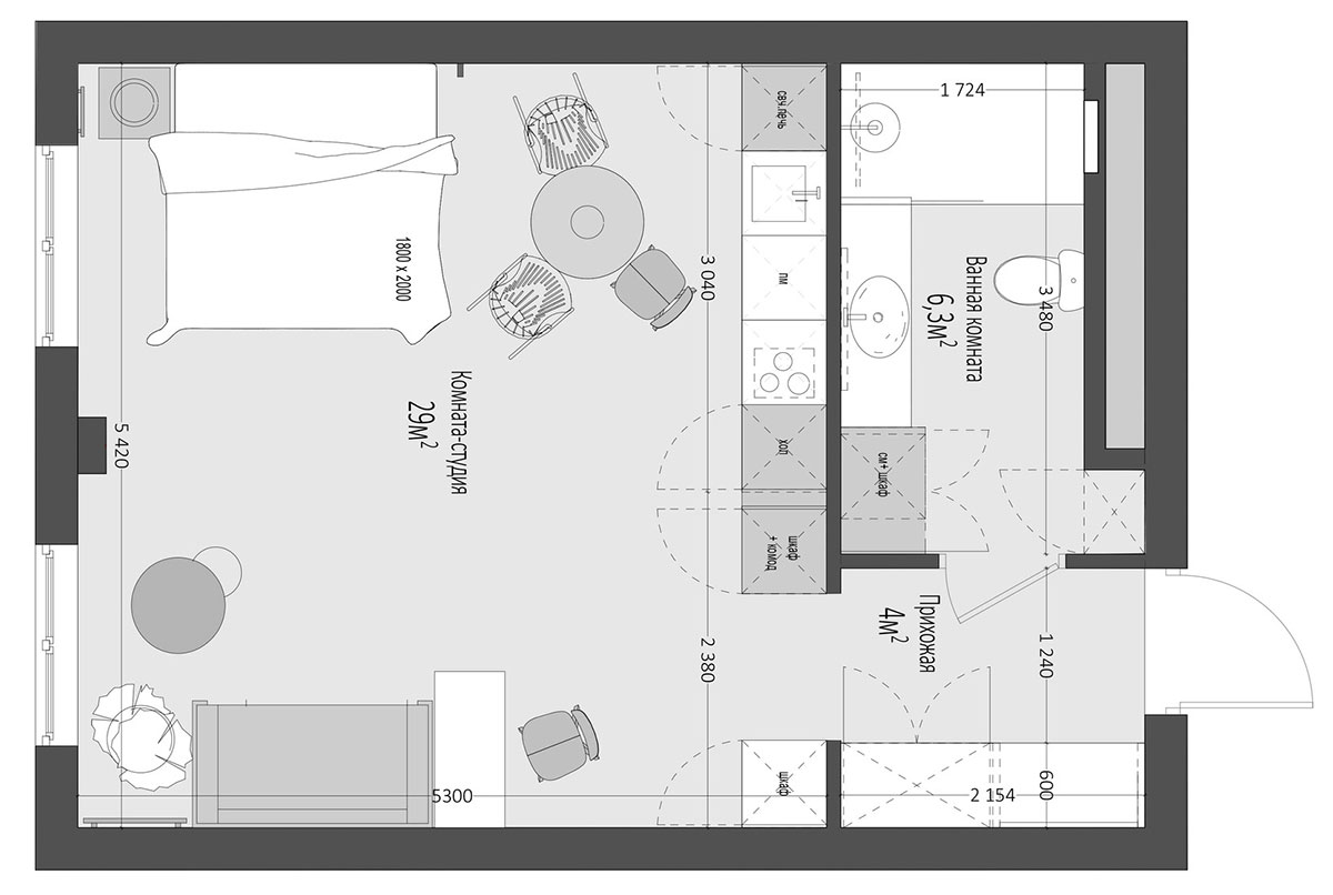
Initially, the layout of this smallapartmentin Moscow was fully open, and designer Valentina Ivannikova decided not to divide the common room into 2 separate rooms. Since the apartment was intended for renting, it was important to compactly design all the necessary areas within one interior. In our opinion, the decision with a bed near the kitchen is controversial, perhaps it would be better to design a living room area there, but we do not know all the conditions of the project. We also liked the stylish color scheme of the home – a pleasant ocher shade was chosen for the walls, thanks to which the designer wanted to achieve a feeling of warmth and comfort all year round. Great small home design!See also:Small apartment in unusual colors in Kyiv
客服
消息
收藏
下载
最近















