查看完整案例


收藏

下载
设计丨软装丨生活
版权所有
arlene
空间攝
影
项林娟
一个426㎡的办公空间
以沉稳素雅、写意为基调
全开放式空间
利用不同形式的隔断
划分出多个场景
使之相对独立
但在动线以及视线上
又相对灵活互动
特别是在顶部以灵动的流线型作为造型
提升了整个空间的格调与层次
大厅效果图
会议厅效果图
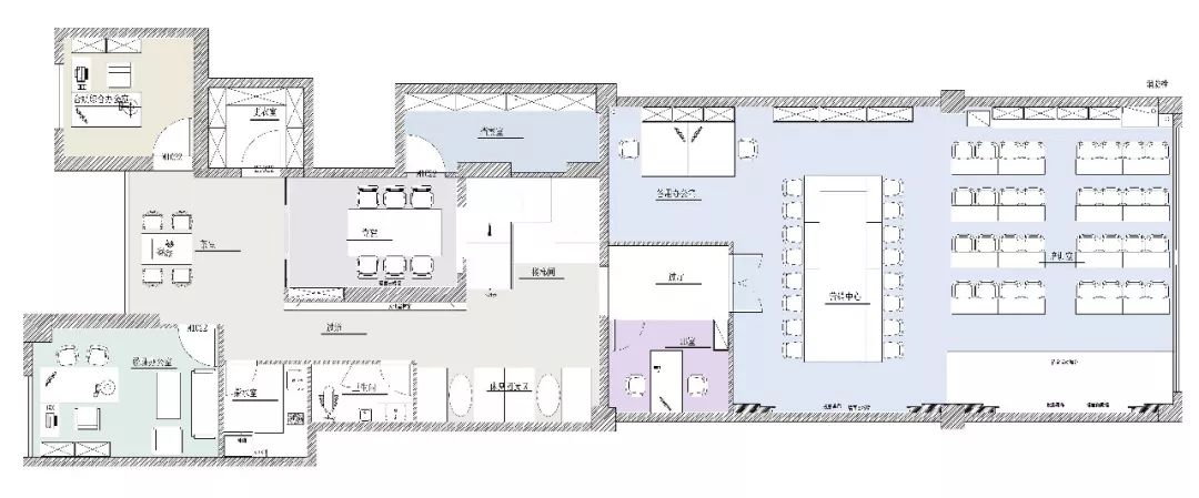
一楼:含盖前台接待、吧台休憩兼办公室,将不同部门合理区分。
二层:主要以办公为主,最大化利用简单明快的方式。大会议室,小会议室,休息接待区,大面积利用玻璃材质增加空间的通透性和视觉感。
项目地点 | Address: 中国银河证券
套内面积 | Area:426 m2
设计时间 | Time
:
2019
主材 | Typical materials: 玻璃,瓷砖,木饰面,乳胶漆
主案设计 | Designer: 周星焱
设计单位 | Design:
台州品东装饰
参与设计 | Designer: 周丹枫 项林娟
中国银河证券股份有限公司(以下简称“公司”),是中国证券行业领先的综合性金融服务提供商。公司借助独特的历史、品牌和股东优势,行业内覆盖最广的营业网点和规模领先的客户群,以及综合全面的业务实力,为政府、企业、机构和个人提供智库咨询、财富管理、投融资、国际业务等综合金融服务。
作为一家以党企业文化的公司,在大厅的设计中,最重要的则是直观的把设计表达出来,通过以下几大要素诠释:色彩、个性化材料、形态。
▼接待厅
删繁就简,以最经典的大理石为主题搭配色调,没有繁琐的设计和过多的装饰,减去办公中的压抑感。通过将自然纯净的白色与沉静高级灰相结合,将品牌形象简洁地呈现表达,同时为左右空间的过渡创建和谐观感。干净的墙面,接近心灵的澄净......
从入口踏入,便是显眼的招牌logo。将空间规划因势利导,平面流线顺理成章地向前延伸,整体规划路线一目了然。
前厅线条造型具象,疏密相间,张弛有道。灵动的曲线设计的背景墙杜绝了空间单调乏味之感,其独特的“笑脸”柔和了空间静谧,以环绕姿态半拥着接待台,在横轴上铸就了舒展、尽情的韵律。
▼天花
顶上由穿插的线条灯光组成,规则线条构造简洁而有力,同时具有视觉韵律美感,丰富空间层次变化打造设计感的空间。
▼开放办公区
自由无拘的沟通对于团队的思维至关重要。开放的办公区是有效获取信息和激发灵感的地方。富有设计感的灯光,充足的光营造高效的工作环境。我们把空间发挥最大的性能。在这里,未知的一切与既有的常识记忆产生传导,想象思维的触角开始蔓延。提供了一种更为随性、更利于面对面交流的办公形式。
另一侧的空间则增添了几分私密性。沉稳的案桌和摆放的绿植仿若思想的触手,与绿植串联起空间动线。区域内各自独立,用玻璃门分隔开,在保证个人能最大限度沉浸思维的同时,又不会显得沉闷。
▼休息区
在忙碌的办公区域,如果你苦恼工作,缺乏灵感,那停下手中的工作,去休息区喝杯咖啡,或许在你享受的过程中,灵感便会有感而发。灯具与椅子颜色相呼应,为整个空间增添了不少活力。
▼光影
楼梯的光影在线条的衬托之中显得设计感十足。
▼会议厅
▼会议室
一个独立的会议室,是每个企业都必备的空间,它担任着客户洽谈、企业会议或内训等重要职责。
二楼的会议室明亮严肃,中间镂空墙面体现着设计感,还有墙上的企业荣誉墙,另一面党的思想背景墙稳重大方,电视屏幕镶于右方,木色会议桌椅显得沉稳时尚。
整体空间感明亮通透、高端柔和,空间体验感层次分明
▼洽谈区空间
阳光透过窗户传递温度,思绪想法
铺洒满满一桌,工作
交谈,
空隙的时间一个小憩休闲的空间
格外惬意,
这样的办公环境感染着奋斗的我们。
洽谈区自由流动的空间,打破拘谨与封闭,软装陈设细节提升空间的品味和丰富性。一缕阳光透过朦胧的落地玻璃洒落一处暖意
设计的魅力是常常试图打破边界与固有局限性,让空间出现更多的可能性与趣味性,使置身于空间的人尝试不同的体验。办公空间变成艺术空间,同时加入现代人文,塑造办公室独特的气质。
▼办公空间
艺术不应是可望不可及的奢侈品,应是日常品,犹如生活食粮。
将空间划分成了不同的区域,既能满足团队协同合作、专注工作的需求,同时也能让紧张的大脑得到放松。
设计的创造力,来源于思想的无限可能。
柔和的色调在空间中无限遐想,思想的触角在空间中蔓延交触,赋予创意以无胜有的深远启迪。
办公空间注重空间感受及功能的结合,细节呈现整体而又富有变化。同时将绿色办公概念引入办公显得轻松。
办公室商务时尚,阳光充满房间显得生机勃勃,半高的围合式背柜功能强大,包围感极强,木色的地板温馨舒适,空间的线条明快硬朗。办公室的采光极好,阳光进入空间,产生不同的光线效果,给一天的工作带来些许轻松愉悦。
在寻找美的道路上,我们终将相遇
在空间氛围的营造中,带入艺术
是我们作品中的一种情感
一种态度,一种追求
【品东装饰】 — 值得你选择
欢迎随时来电咨询
每个人都需要独一无二最有创意的设计方案
客服
消息
收藏
下载
最近


















































