查看完整案例


收藏

下载
房屋信息
【面积】:套内
50
【装修】:院子空间设计
【硬装设计师】:璐璐
【软装设计师】:建哥
【悠好木家居】:龚宁
这一套面积不大的避暑房位于重庆。
一提到避暑房,大家可能都觉得又老又土,一年之中住不了多少时间,所以在装修上并不会投入太多的精力。
但是,热爱生活的户主,并不这么认为。
在她看来,家就是需要投入精力与爱的场所。
所以,在户主和设计师的努力下,一套集休假与避暑功能的居所就此诞生。
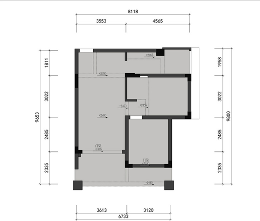
户型图
通过户型图可以发现以下几个问题。
1
、房子在
1
楼,入户有小花园和正门,将入户门改到了花园。
2
、厨房太细长,做开放式厨房。
3
、主卧和卫生间的门面对面。
4
、露台链接了客厅和卧室,且有一定的可变空间,在不乱搭乱建的前提下,不想要浪费面积。
客厅
将原来的入户门封闭,将原来的厨房区域向外延伸,形成了开放式厨房。
从厨房看入户
茶室
茶室的采光非常优秀。
这么一块好地方,原本是阳台。户主觉得只做阳台实在是太浪费了。
加上户主的父母有写书法的习惯,户主也希望一家人可以经常在一起喝茶聊天,而不是各自玩手机。
所以专门设置了茶室的区域。
有时候,家里人比较多的时候,也可以作为餐厅使用。
开放式厨房
户主一家也很喜欢爆炒的烹饪方式。
原本并不赞同开发式厨房,但是后来了解到,只要将烟机选好,加上勤打扫的习惯,开放式厨房是很容易保持干净的。
而,新添加的吧台,也让家里的大厨不用那么孤单,可以一边烹饪一边与家人交流。
主卧
户主将主卧与景观阳台合并在一起,做出了一个小书房。
卧室使用了大量的木制家具,温暖经典不过时。
榻榻米房
户主将生活阳台改成了一个榻榻米房。一来可以作为客房,二来也可以作为灵活多变的空间。
同时,过道增建了一排柜立柜,与榻榻米的底部,一起形成了这个家的储物空间。
装饰点缀
客服
消息
收藏
下载
最近


























