查看完整案例


收藏

下载
极致
/
简
/
自然
承袭着建筑体系的脉络,将现代/极致/ 简/ 自然/ 生活等元素用更大的建筑语汇去执行整个空间,用机能化的语言创造室内建筑般的量体、轴线等概念。
项目名称:房源·北宸中心 写字楼大堂
设计机构:
YENOVA
设计
项目面积:600㎡
建筑类型:挑空
主创设计:商建磊
设计风格:
现代/极致/ 简/ 自然
主要材质:大理石、铝方通、木饰面、不锈钢
设计地址:中国 临沂 南京路滨河西路
本案总面积500㎡左右,其空间特点开场、明亮、挑空 有足够的宽度、高度与深度。
结合金域华府整体项目的现代新中式,大堂的设计更倾向于现代化都市的特点:简洁、明了、线条感 和大块分割,整体地面柱子和背景墙运用柔和大气的大理石,使整个空气显得大气整体。
构思草图↓
顶面分为两个部分,分别用原木色铝方通,和大面积白色顶面呼应划分出两个区域
二楼走廊区域整体运用铝方通做玄关隔断,使得整个二楼有纵深感,也相当于进入大堂的第一视线,比其裸露走廊要更完整、大气!
休息区分为大堂入口的左右两侧 加上灰色系软装搭配 和背景通顶的装饰架效果 使得大堂不失灵性,恰似新中式的禅意
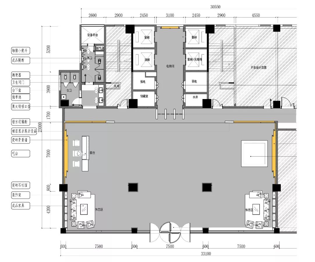
平面布局
长图 建议横屏观看
原木特有的温润质感,让人打从心底感到安心,停驻其中,有一种淡淡的满足的柔情慢慢漾开。
白色的大理石使人心情舒畅,开阔,又有质感,高雅、品质!
一切都是发生在自然而然间的,变换间又回到纯粹、简洁的本质,但感受却是无限的,是自由不拘的。
项目名称:房源·北宸中心 写字楼大堂
设计机构:
设计
项目面积:600㎡
建筑类型:挑空
主创设计:商建磊
设计风格:
现代/极致/ 简/ 自然
主要材质:大理石、铝方通、木饰面、不锈钢
设计地址:中国 临沂 南京路滨河西路
本案设计师
CHIEF DESIGNER
CHIEF DESIGNER
将设计融于人性,让形式追随功能,
减法做装修,加法做生活。
生活即风格,重视人文精神的演绎。追求自然、单纯、清新的原始设计讲究空间和谐、比例、媒材的表现,以严谨的工学、组织化的经营概念,坚持把对的事情做到最好,创造舒适的生活空间。
END
客服
消息
收藏
下载
最近



















