查看完整案例


收藏

下载
↑点击蓝字
“
红土地装饰设计”
关注,
感受设计美好生活
项目信息
装修小区:华发国际商务中心
装修风格:现代轻奢
装修面积:108㎡
装修户型:三房两厅
装修阶段:完工
一
前言
所有的言语和情绪加筑它的颜色之上,当一种色彩能够承载岁月风霜的洗礼,久经磨练却毫不变化,那么它便是当之无愧的经典。
一
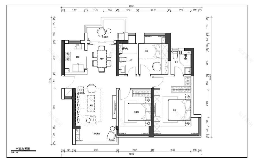
户型图
从图片上来看,原始户型南北通透、采光良好,且户型方正,也没有太多棱角。缺点是
餐厅空间较小,整体户型的储物与收纳区域不是很多。
一
客厅
阳台纳入客厅
,使客厅空间感更加宽阔,公共区域运用明亮大理石与金属线条的优雅简约进行修饰,打造富有流动性的宽敞空间感,满足业主的简洁温暖氛围。
软装未进场前给人感觉色彩是
冷冰冰的
黑白灰,暗淡无光,但整体家装到齐之后,一切都已经改变。
灯光一开,立马改变了原有的氛围,令小编不禁想起一个词——相得益彰。没错,这才是一个完美的整体。软装与硬装相互衬托,相互弥补,不会太过冷酷,也不会太过闪亮。
一切都是刚刚好。
(效果图)↑
(实景图)↑
客厅的整体色彩比较活跃,
金色与橙色点缀其中,再加上背景墙上的点缀,一种优雅的感受悠然而生。
一
餐厅
以简约、明快的色彩赋予餐厅灵性空间
,黑白颜色相互呼应,将餐桌椅的流畅线条、细腻质感,融入到生活中,巧妙用时尚的元素淡化空间的冰冷感。
一
厨房
设计师对
空间进行了分离与隔断
,关上移门,是一个独立的烹饪空间,敞开移门,则将空间纳入客餐厅的延伸范围内,兼具功能性与现代感。
一
主卧
主卧不同于公共区域转而呈现的是明亮有格调的空间。
最吸引人的不是采光、衣柜、化妆柜等等,最打动小编的是墙上的艺术画。清新淡雅的画面深得小编的垂青。
由此可以看出主人在空间内注入很多细密的心思,使整个房间看起来干净明亮、整洁有序。
(效果图)
↑
(实景图)
↑
一
次卧
次卧是休息与学习融为一体并兼具书房的功能房。
黑白灰的主色调让空间看起来非常沉稳大气,而墙上的装饰画又暴露了主人其实是一个巴萨球迷,这不得不让空间又综合了气氛的紧张感。
一
儿童房
儿童房与主卧色彩呼应
,空间干净素雅,纯净利落的气息顿时扑面而来。
定制衣柜的摆放,解决了储物问题,能够放置很多物品,凸显的整个空间自然优雅,舒适的的床品和卡通床体交织在一起,温馨甜蜜的睡梦随之而来,对孩子的成长也很有益处。
一
阳台
充满生活气息的阳台放置一辆登山自行车,活力满满。功能区域与休闲区域合理利用,休闲与生活两不误。
一
720°VR实景
图片看不够
VR实景带你参观
让你过瘾
一
往期推荐
最新案例丨现代轻奢风格海景大平层
最新案例丨华发广场悦海湾现代轻奢风格
最新案例丨5.0整装套餐现代风格,凸显温馨浪漫情怀!
谢谢翻阅│欢迎分享
·end·
获取更多装修案例资讯
地址
:珠海拱北桂花北路桂花工业村7栋2楼
;
▼有装修需要的朋友,猛戳
“阅读原文”
客服
消息
收藏
下载
最近





















