查看完整案例


收藏

下载
设计公司 Design Team : 翡冷翠装饰集团
主案设计 Design in Charge : 王腾飞
设计团队 Design team:程争辉
项目面积 Project area:480
㎡
项目地点 Location: 洛阳市偃师市
项目造价
Project cost
: 80万
完工时间 Project Year : 2019年8月
文案 CW:袁帅
▬▬▬▬▬▬▬▬ Firenze ▬▬▬▬▬▬▬▬
﹉﹉﹉﹉﹉﹉﹉﹉﹉﹉﹉﹉﹉﹉﹉
❶
◢ 设计建设单位
翡冷翠装饰集团是一家拥有翡冷翠空间设计中心、翡冷翠精装中心、翡冷翠家居软装中心的三大品牌的装饰集团公司,致力于服务中高端家装客户和工装客户。自品牌创立以来,专注于为都市精英阶层提供高品质、一体化的整体室内设计与装修服务。
▬▬▬▬▬▬▬▬ Firenze ▬▬▬▬▬▬▬▬
﹉﹉﹉﹉﹉﹉﹉﹉﹉﹉﹉﹉﹉﹉﹉
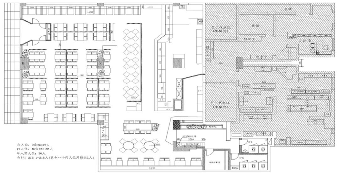
❷
◢ 本案平面布局图
▬▬▬▬▬▬▬▬ Firenze ▬▬▬▬▬▬▬▬
﹉﹉﹉﹉﹉﹉﹉﹉﹉﹉﹉﹉﹉﹉﹉
❸
◢ 设计背景
除了牛肉汤羊肉汤各种汤类,
我们可能在洛阳地区很难找到一家既干净又多样又有规模的早中晚快餐厅,
健康饮食早中晚快餐厅是行业空白,
这是我和众多餐饮人达成的共识。
很有幸结识了和合中的朋友们,
一拍即合之下是和合中偃师店的诞生。
据经营理念我们让休闲、健康、清新、洁净、
一丢丢的中国风成为了设计的主导思想,
本案通过合理的动线规划、厨房设计使空间更加有序;
木色、白色、绿色的搭配运用让整个感受更加清爽;
无意间流露出的中国风让餐厅更具品味。
▬▬▬▬▬▬▬▬ Firenze ▬▬▬▬▬▬▬▬
﹉﹉﹉﹉﹉﹉﹉﹉﹉﹉﹉﹉﹉﹉﹉
❹
◢ 门厅
好的餐厅,除了必备好的厨艺菜品,
若能打造与菜品气质相符的空间环境,
就能使其成为一个真正相互融洽的整体,
让消费者感受一场与空间、菜肴三者间形成视、嗅、味三觉合一的沉浸式就餐体验。
▬▬▬▬▬▬▬▬ Firenze ▬▬▬▬▬▬▬▬
﹉﹉﹉﹉﹉﹉﹉﹉﹉﹉﹉﹉﹉﹉﹉
❺
◢ 大厅
餐厅内一方面使用了质朴的工业风金属材料,
和由地面延伸至顶面的木质方架,
另一方面将浅灰色地砖和石材运用于台面,
二者形成了材质上的鲜明对比。
▬▬▬▬▬▬▬▬ Firenze ▬▬▬▬▬▬▬▬
﹉﹉﹉﹉﹉﹉﹉﹉﹉﹉﹉﹉﹉﹉﹉
❻
◢ 卡座
桌椅只有木色,
不多时便会使人产生视觉疲劳,
因此,在原有的基础上添加绿色,
将卡座分块细化,保留整体,添加细节
❼
◢ 明厨亮灶
顾客可以直观地看到后厨员工的操作是否规范,
卫生是否合格,食材是否新鲜多样,
是顾客对餐饮企业员工的一种监督,
也是和合中对自己的一种自信。
明厨亮灶更是我们的特色,
15米的明档让食材应有尽有。
这是一个尝试,
也是健康早中晚餐厅的趋势。
和合中,我看
中
!
▬▬▬▬▬▬▬▬ Firenze ▬▬▬▬▬▬▬▬
﹉﹉﹉﹉﹉﹉﹉﹉﹉﹉﹉﹉﹉﹉﹉
主案设计师
王腾飞
公司
代表作品:
洛阳九龙酒店、洛阳左岸国际酒店、遵义牡丹大酒店、翡冷翠装饰集团总部、春之木幼儿园、红舞鞋舞蹈培训、遵义牡丹园四季生态展厅、穿越新概念餐厅(洛阳店及伊川店)、燕东天宫食府、百里香尚宴时尚餐厅、菜肴故事、灵山文化度假区四合院、洛阳启明超硬材料有限公司办公楼、洛阳特种材料研究院办公楼、洛阳伍先生网咖、顽主网咖、郑州花园路元素网咖、洛阳W.HOME私人订制美容会所、洛阳建业森林半岛、国宝别墅、中央广场等......
翡冷翠装饰集团2019合作品牌推广
公司地址:
保利 香槟国际15幢
洛阳市洛龙区
古城路与厚载门街交叉口南
空间设计丨VI设计丨品牌策划丨配套产品丨深化施工丨家居软装
翡冷翠
空间魔术师
翡冷翠装饰集团 FIRENZE丨淮阳欧咖啦中西餐厅案例赏析
翡冷翠装饰集团 FIRENZE丨炎黄科技园案例赏析
FIRENZE丨建业凯旋广场“店中店”工装案例赏析
客服
消息
收藏
下载
最近














