查看完整案例


收藏

下载
本案业主是
9
0
后,女业主
知性优雅,
要
有属于
自己独立的衣帽间,可以接受
新鲜事物
;男业主是
金融
工作者,
执行力强。在接触第一面的时候业主对于设计师对户型的改造意见非常认可,了解了设计可以解决咱们家实际存在的问题,就这样开始了愉快的装修之旅
项目风格
:
法式情奢
项目位置:金星园
项目面积:
8
5
项目预算:
10
万
项目设计师:苗茜彦
我们还是先从布局说起
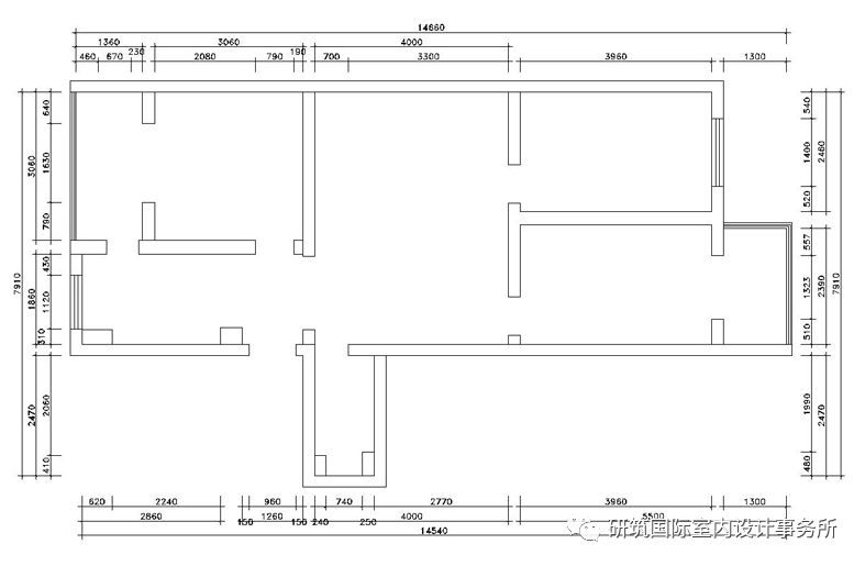
原始户型图
户型缺点
1
.
客厅没有窗户
,
没有光线
,
区域
划分不明确
.
2.进户门正对着卧室门,没有门厅,需要解决储物问题。
3.卫生间没有窗户并且过小没有放洗衣机的位置.
4.原始户型厨房没有放冰箱的位置.
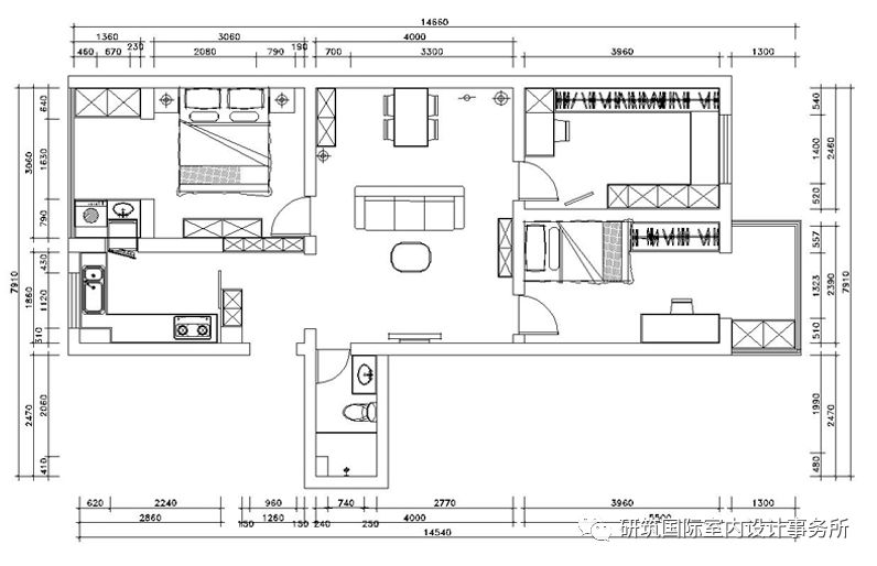
户型改造
1.
把原有阳台的门向后移位
,
并且新建z
字型
薄墙
,
用来放冰箱
。
2.
在物业的允许下
,
专业施工单位
把进户门这边的门砌墙封上
,
在客厅方向开门
,
这样客厅的光线会增加同时也避免进户门正对着卧室门
,
堵上的门变成了门厅,解决入门收纳问题。
3.
由于卫生间没有位置放洗衣机
,
把洗衣机放在主卧室的阳台上
,
并且把冰箱后封上的地方加个洗漱盆
,
这样做可以避免早上同时洗漱的不便
.
4.
在卫生间作独立的洗浴室
,
这样减少卫生间的潮湿
.
5
.
设计师基于原始户型的结构,根据业主的需求增加了衣帽间的区域
色彩搭配
用
金属、宫墙红、壁炉等元素
让设计灵动起来,让家更有自我个性
玄关
入户玄关的位置,
再调整了主卧门的位置之后,入门及玄关,
增加储物功能的同时,
解决风水问题,入门,颜值即正义!
门厅
另一个方向
进门的左手边是厨房的位置
,进入厨房的门用长虹玻璃门加极窄边框的推拉门,不占用空间,在门厅视觉感和透光性都特别不错
客厅
步入室内,开门见山的是客厅布局,在下班后一家人可以在这里享受并度过晚上的时光。在客厅做了壁炉,更能衬托出一家的欢乐
和温馨
。
客厅软装参考
主卧室
设计师运用了具有
现代元素的家具和
金属元素的
小饰品搭配,满足颜值的同时满足舒适感
卧室软装参考
衣帽间
考虑到
女业主想要
独立的衣帽间,
在设计上特意辟出一个
回到家
可以
脱下高跟鞋外套
,
换上轻松的睡衣,
抛去一天的疲惫。
独立的衣帽间化妆间是每一为女性的梦想
,好羡慕
客服
消息
收藏
下载
最近













