查看完整案例


收藏

下载
作品信息
面积:120㎡
风格:日式风
设计师:郑江
项目地点:上海城市公寓
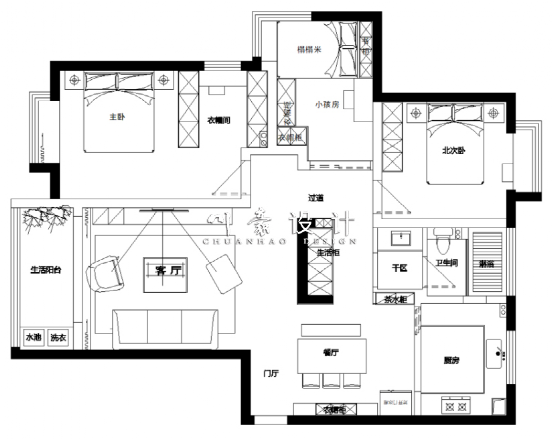
平面布置图
整体装修简洁大方,以原木作为家居底色,让家的感觉更温馨自在。同时增加收纳空间,保证空间颜值在线的同时,还要考虑生活的实用性需求。动线上经过合理的布局,兼具便利性和互动性,保证每个成员在温暖的大家庭中亦有自己的小天地。
1
客厅
把阳光引入室内,整个空间都明亮了起来。木色填充的空间,给整个家居带来温馨自然的色调。阳台地面抬高,通过地面高低的变化进行区域划分。窗外的景色像一幅流动的画,一年四季都会变换出不同的色彩。
客厅收纳柜电视墙,增加公共区的收纳空间,同时投影幕布设计,让生活更丰富多样化。
2
餐厅
入户墙面增加洞洞板,用于收纳家居小物件,日常也可以作为装饰区,可以很好的点缀空间。
简约的原木餐桌椅,质朴自然,温柔的底色,传达着屋主对家温馨舒适的追求。家就是把一家人聚在一起的地方,忙碌了一天这里可以是一家人情感交流的地方。
3
主卧
卧室墙,乳胶墙面和木质板半墙设计,空间层次感更加丰富。衣帽间是每个女主人的梦想,以衣柜隔出一个小型衣帽间,同时增加梳妆台,美好的一天从一个精致的妆容开始。
4
次卧
温柔的家居氛围贯穿了整个空间,在光线的调和下,自显家居温和、美好的气质。
5
榻榻米房
榻榻米设计打造多功能房,无论是作为儿童房还是茶室都是不错的选择,给生活更多可能性。底部的抽屉,可以用来收纳不常用的物品,让家居空间更显整洁有序。
点击文末“
阅读原文
”10秒获取装修预算报价!
往期推荐
充满自然气息的155㎡家,居住体验不输别墅!
200㎡现代风,每一处的设计都藏着屋主对生活的热爱!
235㎡美式风,低调的奢华,高级感满满!
客服
消息
收藏
下载
最近
















