查看完整案例


收藏

下载
本套别墅案例位于广基海悦花园,两位业主装修主要目的是未来可以在这里享受舒适的退休生活,对收纳有着极高的要求,同时还要满足日常的家庭团聚。
设计师首先
对该小区同户型别墅进行
探访
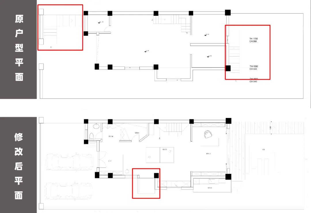
,发现许多数业主由于该户型限制要么没有安装电梯,要么安装的电梯都很小,这对于别墅业主来说使用上会有很多的不便。
鉴于此,设计师在设计上
另辟蹊径
,通过外搭电梯井的方式既保证了别墅套内空间的使用率不变,但又解决了上下楼的难题。
同时设计师在入户方式的设计上也
彻底改变
原户型的思路,不在由二楼入户,而是对一楼进行全面改造后从一口入户。将原本昏暗的一楼车库房改造为通透且贯穿花园的多功能厅,鞋帽间、储物间、客卫间、娱乐区、休闲区、洗衣房、花园统一整合到一楼。
二楼则在设计上布局客餐厨的空间,拆除原户型的入户楼梯后,客厅得以延申整体的空间效果也更开阔。此外,重新整合后的厨房空间也更大,最大可容纳3-4人同时实用。餐厅旁的墙板通过
隐形门
设计,将二楼客卫间藏在其中。
三楼则以卧室为主,左边为子女的主卧,右边为客房。每间卧室都设计成了套房的形式均拥有
独立
的卫浴间。卧室两侧光线明亮充足,房间日照时间长,住居舒适度很高。
四楼是两位业主的主卧以及洗衣房和生活阳台。卧室采用分床设计由
联动门
作为基础的隔断,保证两位业主夜间各自的睡眠质量。
此外,四楼之上还有一个储物的小阁楼,为了把控预算和动线上的完整性,设计师采用伸缩楼梯的设计,可将平日不常用的杂物放置在上方。
本案别墅为
全案设计
,业主张先生在对接过程中曾提到,他们相信中策的标准,只要按中策的
标准
就可以了。面对如此的信任,中策
不仅拿出了业主十分满意的设计方案,也完美实现了
落地后的最终效果。
装修小区:
海悦花园
项目面积:
360㎡
ZHONGCE
客厅还原度
ZHONGCE
客餐厅还原度
ZHONGCE
一楼茶室还原度
ZHONGCE
四楼主卧还原度
预约一位设计师
为你的家做个户型分析吧!
了解干货家居生活指南
扫码关注我们!
客服
消息
收藏
下载
最近






























