查看完整案例


收藏

下载
在房子的原始户型设计中,能够做到采光通风正常,户型方正就算是很不错了,而户型改造则可以在原来户型布局的基础上,进行优化,满足
业主的个性化需求。户型改造也是装修的第一步,它就像一个框架,美人在骨不在皮,户型改造往往也能带来出其不意的效果!
设计师介绍
设计师:饶国良
全案爱特公司
楼盘信息
楼盘:南昌·联泰天悦
面积:150㎡
风格:现代原木
◆
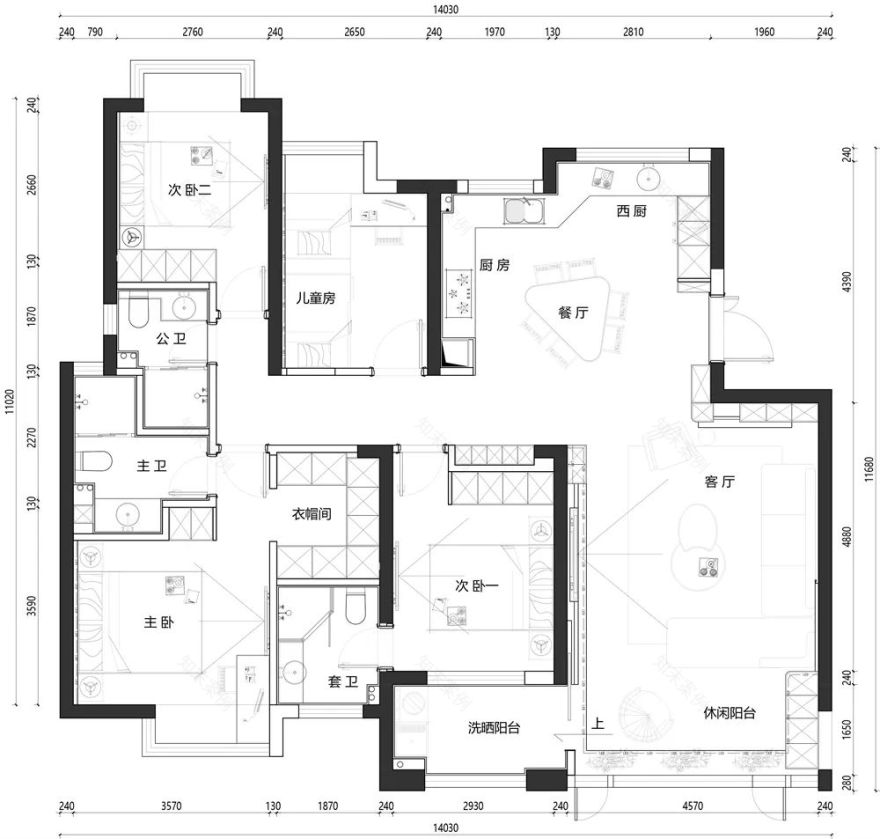
联泰天悦现代原木150㎡
设计亮点
①原来的独立小厨房打开,形成中西厨一体,餐厨一体的大开放格局。
②阳台和客厅打通找平,一道电视背景墙隐形门分隔开了生活阳台和休闲阳台。
③卫生间通过重新规划,保证了每个空间功能齐全,尺度舒适。
户型改造前后对比
01
改造/客厅阳台一体化
L型石阶,由阳台区域延伸至电视背景墙下方,打造了一个高低错落的空间层次,为空间创造更多活动形式的可能。在顶面,以委婉的线条来掩饰横梁的存在,形成起伏节奏,为空间增加了艺术性的感受。一面原木墙,既是阳台的收纳柜,也是沙发背景墙,将两个空间紧密联结在一起,原木与格纹沙发,让空间顿生雅致之感。
02
改造/餐厨一体化
厨房和餐厅原本是相对独立的两个空间,设计师大刀阔斧地拆除了原来
厨房的
非承重隔墙,打造了不仅是中西厨一体,更是餐厨一体的大开放式格局。一块圆形地垫框出餐厅区域,不得不说,半环形的开放式餐厨空间真的非常实用便利,中厨、西厨、蒸烤箱、餐边柜、冰箱都围绕着餐桌,空间利用达到极致,餐厨之间相互交融。餐桌上方的圆形灯带照应着一家人的和和美美。而这一改造,也直接缩短了原本通往卧室的狭长过道,整体空间南北更加通透,无论是采光还是通风,都大大提升。
03
改造/主卧
除了儿童房,其他3间卧室都带有独立的卫生间。设计师通过巧妙的空间划分和布局,使得每一个独立卫生间都功能齐全,并且尺度适宜。例如,在主卧室内,床头的左侧则是一面改造而成的弓形墙体,因为主卧已经有独立的衣帽间,所以在墙体凹处便设计了一个小的开放式衣帽间,方便一些次净衣的收纳。
04
/儿童房
儿童房,集合了学习、睡觉、娱乐等多种功能,可以随心组合的洞洞板,可以攀爬的高低床,足见设计师的用心。在这个空间,整体色彩也更加丰富多样,贴合儿童身份,有利于儿童健康成长。
「精品案例
」
客服
消息
收藏
下载
最近












