查看完整案例

收藏

下载
TSING HORSE DESIGN
丨青马别墅空间设计最新案例丨
PROJECT INFORMATION
建筑户型 ︱ 联排别墅
设计风格丨 简约法式
项目名称 ︱ 龙湖双珑原著
施工面积 ︱ 335 平米
全案产品丨
欧派橱柜
宾图整屋定制
卡硕瓷砖
书香门第木地板
美标卫浴
西蒙灯光
方太
电器
设计师郭天佑:海明威曾说过:“假如你有幸年轻时在巴黎生活过,那么你此后一生不论去到哪里,她都与你同在,因为巴黎,是一席流动的盛宴。”
本案以简约法式为理念,在设计上讲求心灵的自然回归感,以时空为引,以居者为主,加入前瞻性的生活哲思,缔造出现代简约、时尚轻奢的诗意居所。
LIVING ROOM
客 厅
QINGMA DESIGN
ACHIEVE VILLA LIFESTYLE
客厅色彩典雅清新,搭配自然、柔软舒适的陈设,灵活运用材质、线条、色彩与光影的变化。在开敞交互与空间语境设计中,淡化界限,在任何一个角落,都能体会到主人悠然自得的生活,阳光般明媚的心情,谱写出和谐的韵律之美。
KITCHEN AREA
餐厨区
QINGMA DESIGN
ACHIEVE VILLA LIFESTYLE
建筑手法被大胆运用,因地制宜利用大开大合的超大空间,把餐厨和客厅分割开来,使得空间分配更加清晰。大量利用了石膏线与大理石进行搭配,既让空间更加贴切法式元素,又不失稳重。匹配居者兴趣爱好规划出饮茶区,提升居家品质。
RESTAURANT
餐 厅
QINGMA DESIGN
ACHIEVE VILLA LIFESTYLE
餐厅氛围
予人艺术联结与审美熏陶
挑空的结构提升餐厅格调,法式手法与元素延续于此
圆弧与方正对话,加以多样灯光的点缀
无形中增添时尚之感,视觉感官与味蕾的双重盛宴
SECONDARY RECUMBENT
次卧
QINGMA DESIGN
ACHIEVE VILLA LIFESTYLE
法式优雅弧形始终贯穿对品质居所的诠释,融入到每一方寸间。
在格调中寻求宁静,以实现私密领地不受打扰。
精心调和居者、场域与自然的关系。
在空间里演绎无限巧思,拓展更多生活可能性。
MASTERBEDROOM 主 卧
QINGMA DESIGN ACHIEVE VILLA LIFESTYLE
>
主卧无主灯的设计,既不会太压抑,还能让日常打理更轻松一些。
纯白与咖色交织,舒缓的弧形与素净的材质碰撞,在主人房勾勒出几分闲适,呈现安然的理想状态。
AVROOM
影音室
QINGMA DESIGN
ACHIEVE VILLA LIFESTYLE
负一停车入户
是一个手工区,岁月静好,恬淡悠然
规划影音区,智能设备与抬高的舒适沙发让观影无比享受
赋予生活更高品质与仪式感
日
月星辰,最好的风景皆可囊括其中
任时光荏苒灵魂与爱皆有所依
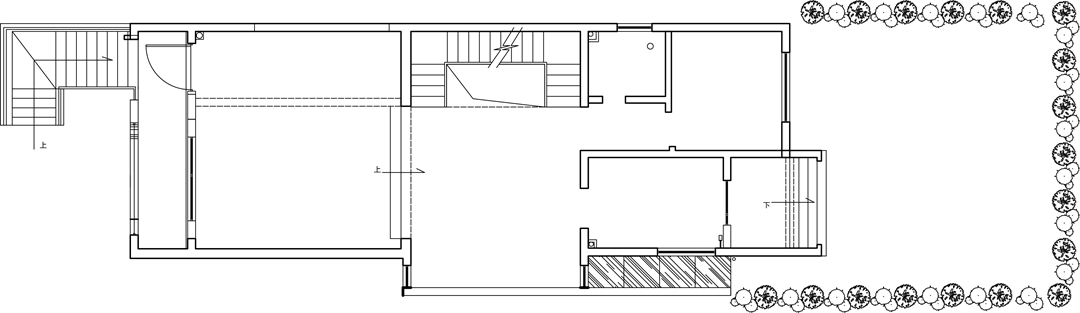
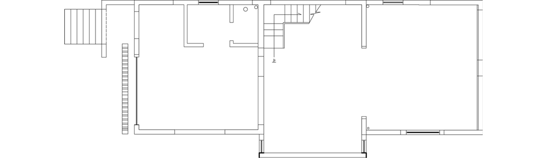
PLANE LAYOUT
平面布局
QINGMA DESIGN
ACHIEVE VILLA LIFESTYLE
1F 平面图
2F 平面图
3F 平面图
4F 平面图
INFO
- 主案设计-郭天佑
- 工程管家-杨明
- 客户经理-武佳丽
- 设计公司-青马别墅设计
DESIGNER OF THIS CASE 设 计 师 QINGMA DESIGN ACHIEVE VILLA LIFESTYLE
郭天佑
青马设计主创设计师
毕业于西安美术学院工艺美术设计系
室内装饰行业从业 17 年以上,专属大宅全案设计
资质
国家注册室内设计师
中国装饰协会注册会员
中国 ICDA 设计师协会会员
中国装潢协会会员
设计理念
追求艺术,用艺术家的眼光创造美好,用“美”来影响生活,追求格调,尊重历史,但从不摒弃流行和普及,致力塑造优雅的居住空间和生活方式。
殊荣
西安市年度设计师优秀奖
作品多次发表于电视台、西安晚报、三秦都市报
西安市家庭装饰协会 TOP50 强
建筑大学特邀设计师
主案设计孙博华院士住宅、建筑设计系刘老师接待性住宅。
北京清华美术学院进修
日本游学 美国游学
案例
深圳波托菲诺纯水岸、西安皇家花园、西安湖滨花园
西安钻石王朝、西安曲池坊、西安紫薇曲江意境
西安雅居乐御宾府、西安龙湖香醍、西安紫汀苑
西安湖城大境、西安莱安逸珲、西安群贤庄、欧雷仕西安总部
西宁国芳健身会所、西安六合舒适家智能体验馆
西安老城根火锅、府谷县陕煤集团办公室等
链接
青馬作品 | 高新诚园 · 平层 法式 圆梦心中浪漫 / 郭天佑
青馬作品 | 龙湖天钜 · 下叠 北欧 生活是家最好的色彩 / 郭天佑
青馬人物 | 郭天佑 · 知行合一,以生活为“师”
青馬作品 | 枫丹丽舍 · 400㎡联排别墅 现代东方 雅室 为雅 / 郭天佑
青馬作品 | 玉泉苑 · 210㎡ 平层 新中式 悦目怡情 / 郭天佑
点击图片
了解更多案例丨人物丨作品
△青馬作品 | 金辉世界城 · 顶复 现代轻奢 沉浸品味慢调中 / 晁阳
△青馬作品 | 海亮唐宁府 · 下叠 新中式 悠然渐入佳境 / 王清玉
△青馬作品 | 金地芙蓉世家 联排别墅 现代 细节设计的精心雕琢 / 马斌
△青馬作品 | 龙湖源著 · 下叠 现代轻奢 界面的高级感 / 冯略嘉
△青馬作品 | 东原印未央 · 下叠 现代轻奢 多元勾画空间艺术性 / 吕韶华
△青馬作品 | 世园大公馆 · 联排别墅 现代美式 描摹家的浪漫 / 李昂
DESIGN COMPANY
设计公司
QINGMA DESIGN
ACHIEVE VILLA LIFESTYLE
青马设计
隶属于北京尚美饰家装饰集团旗下,专注于高端别墅大宅的装饰品牌。由集团精心重资打造,经过多年不断的淬炼升级与创新融合,打破以往客户服务的常规局限,构建全新的大宅别墅全案设计和整装服务平台,专注服务对象涵盖企事业精英人士和高端客户群体,提供大宅别墅装饰的整体规划设计与施工产品整体交付私属定制服务。
青马设计
集结行业内经验丰富的设计大咖、大客户经理、工程大管家、优秀的工程项目经理打造的“大宅别墅工程”管理体系,“多对一”式的整装服务系统,在行业里形成独特 TSING HORSE 系风格的青马设计范式。青马设计不仅是装修服务的提供商,更是大宅别墅生活方式的服务商。青马 - 成就别墅生活。
-END-
生活的格调
就是一个人对自我独特的定义
是生活,是艺术
而家
就是格调的终极表现
青马,只想给你一个格调家
客服
消息
收藏
下载
最近































