查看完整案例

收藏

下载
TSING HORSE DESIGN
丨青马别墅空间设计最新案例丨
PROJECT INFORMATION
建筑户型 ︱ 联排别墅
设计风格丨 新中式
项目名称︱ 绿地城
施工面积 ︱ 360 平米
全案产品丨 大金空调、百朗新风、雷狄尼木作、吉博力、莱伯顿淋浴房、芒果瓷砖、高仪洁具、艾尔西软装
PROGRAMME
设计方案
本案 360㎡联排别墅,设计摒除旧中式繁复笨重的缺点,以更为简洁的新中式将风骨和风韵展现,将居住的舒适宁静呈现的更加生动有层次。行笔灵感打造出寓情于景的宜居之境,流露出静雅闲适的韵律。
by-本案设计师 王海寄语
- 负一层木与石自然元素碰撞出会客区,将专属品茗闲暇空间和互动交流区域贯通。
- 简洁的现代线条与古色家居主题的精心陈列,不以空间丈量生活的尺度,以诗意美学延伸精神的广度,让紧绷疲惫的身心寻回理想的舒适状态。
一层入户回归质感生活本意。
点线面与圆形的相遇。
东方雅致格调让人感知静谧的力量。
空间隔而未隔,让通透感和舒适性渐次而生。
于私享之境,卸下外界厚重感。
于景致中领悟生活诗意的自在流淌。
精心布置的儿童房
空间以代表自由的海蓝色与梦幻皮粉点缀其中
温柔清新的配色带来软萌暖心的氛围
柔和日光洒入,让空间成为捕捉四季流转的容器
安心的环保材质呵护你们健康快乐成长
- 主卧套以
东方式情怀彰显出温和舒适的氛围
在舒适的安全感中,营造一个松弛愉悦的寝居环境
奢足空间套房式设计
让
生活
舒适、独立
置身其中空间给予的品质奢侈感不言而喻
- 源于屋主对当下生活空间的精神探求,打造这个低调的艺术氛围环绕的大气书房。
- 专注于功能性与观赏性共融,营造出一个简朴、自然、返璞归真的氛围。
- 以一种平静的方式与材质交相渗透,释放出温润素朴与含蓄淡雅。
- ANALYSISDIAGRAM
- 分析图
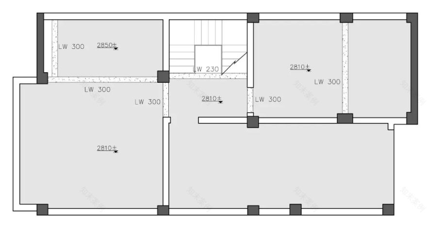
-1F 原始平面图
-1F 平面布局图
1F 原始平面图
1F 平面布局图
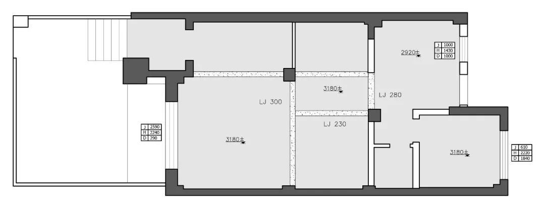
2F 原始平面图
2F 平面布局图
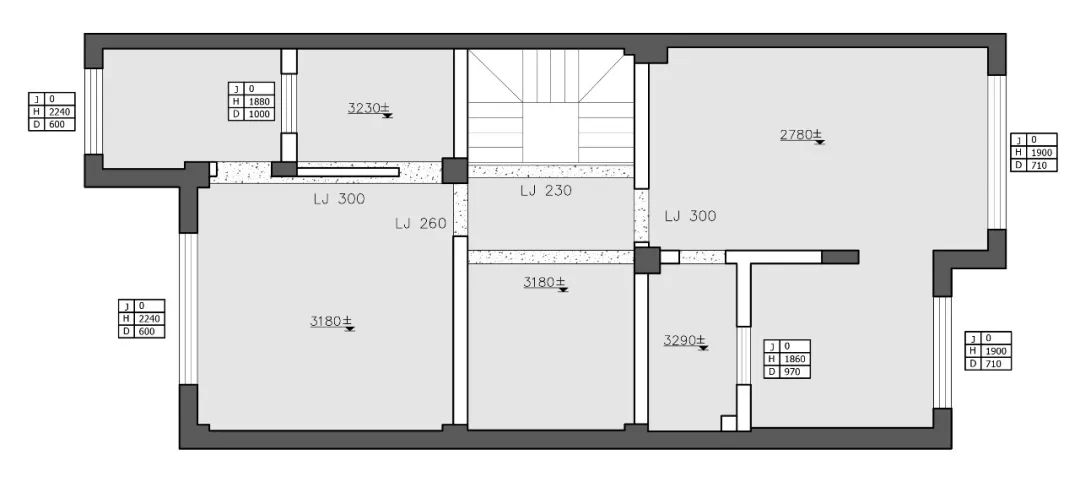
3F 原始平面图
3F 平面布局图
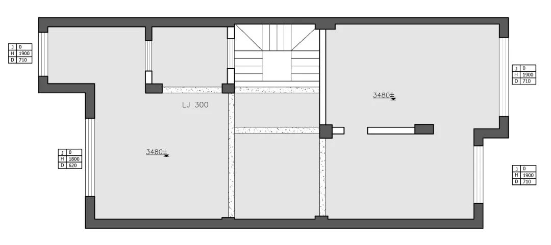
4F 平面布局图
INFO
- 主案设计- 王海
- 工程管家- 韩淋
- 客户经理- 邢阳
- 设计公司- 青马别墅设计
- DESIGNER 主创设计
王海
青马设计主创设计师
毕业于西安建筑科技大学艺术设计专业
室内装饰行业从业 15 年以上,专属大宅全案设计
资质
国际建筑装饰协会注册会员室内设计师
设计理念
我视设计为一种与现实和解的手段
坚持设计的价值性探索、延展、释放有限资源的无限潜能
擅长风格
现代、人文极简、中国风、奢感
殊荣
2012 陕西优秀设计师称号
2013 年荣获中国十佳住宅设计师提名
2014 年荣获室内空间设计筑巢奖优秀奖
2015 年中国室内设计大赛三等奖
2016 年荣获设博会十大影响力设计师
2018 年第二届建筑装饰设计年度新锐设计师
2019 金梁中国设计奖西安站杰出设计师陕西广播电台 98.8《拜托了设计师》栏目特约设计师
2020-2021 40Under40 中国(陕西)设计杰出青年
2021 年中国红棉最美艺术空间设计奖
2022 年中国红棉优秀现代空间设计奖
案例
家装案例:群贤道九号、曲江南苑、曲江皇家花园、金地九玺、天字一号·湖城大境、紫薇花园洲、龙湖香醍天宸、龙湖雁塔天宸、海德堡、蓝光公园华府、国金华府、万科金域东郡、金辉世界城、中铁国际城、自然界望岳、枫林绿洲、曲池东岸、梧桐苑、曲江凤凰池、阳光城壹号、绿城高新诚园、东原印未央、金茂府等
工装案例:天水酌茉餐厅、凯德广场沙拉客、超麦乐活餐吧、小百合艺术培训学校、顽茶茶室、高川商贸有限公司、鼎群装饰工程有限公司等
链接
青馬人物 | 王海 · 脚步不停,与岁月追逐
青馬作品 | 金茂府 · 底跃 现代 宁静诗意的回归 / 王海
青馬作品 | 浐灞半岛朱雀金堤 · 顶跃 人文极简+赛博朋克 黑白新世界 / 王海
青馬作品 | 湖城大境 · 230㎡顶复 现代 格调日常无限温柔 / 王海
青馬作品 | 新城玺樾骊府 · 260㎡上叠 东方美学 感受一器一物自然情思 / 王海
青馬作品 | 万达天玺 · 220㎡平层 现代简约 自由穿行惬意生活 / 王海
青馬作品 | 科为城墅 240㎡ Unico 一生只有这一个家 / 王海
青馬作品 | 荣禾曲池东岸 240㎡ 新中式 清韵满琅函 / 王海
点击图片
了解更多案例丨人物丨作品
△青馬作品 | 金辉世界城 · 顶复 现代轻奢 沉浸品味慢调中 / 晁阳
△青馬作品 | 海亮唐宁府 · 下叠 新中式 悠然渐入佳境 / 王清玉
△青馬作品 | 金地芙蓉世家 联排别墅 现代 细节设计的精心雕琢 / 马斌
△青馬作品 | 龙湖源著 · 下叠 现代轻奢 界面的高级感 / 冯略嘉
△青馬作品 | 东原印未央 · 下叠 现代轻奢 多元勾画空间艺术性 / 吕韶华
△青馬作品 | 世园大公馆 · 联排别墅 现代美式 描摹家的浪漫 / 李昂
COMPANY
设计公司
青马设计
隶属于北京尚美饰家装饰集团旗下,专注于高端别墅大宅的装饰品牌;由集团精心重资打造,经过多年不断的淬炼升级与创新融合,打破以往客户服务的常规局限,构建全新的大宅别墅全案设计和整装服务平台,专注服务对象涵盖企事业精英人士和高端客户群体,提供大宅别墅装饰的整体规划设计与施工产品整体交付私属定制服务。
青马设计
集结行业内经验丰富的设计大咖、大客户经理、工程大管家、优秀的工程项目经理打造的“大宅别墅工程”管理体系,“多对一”式的整装服务系统,在行业里形成独特 TSING HORSE 系风格的青马设计范式。青马设计不仅是装修服务的提供商,更是大宅别墅生活方式的的服务商。青马 - 成就别墅生活。
-END-
生活的格调
就是一个人对自我独特的定义
是生活,是艺术
而家
就是格调的终极表现
青马,只想给你一个格调家
客服
消息
收藏
下载
最近































